Log In/Sign Up
Your email has been sent.
1811 Caspers Cove Rd
Lufkin, TX 75904
Specialty Property For Sale
·
4,751 SF


Investment Highlights
- Corporate Retreat
- Church Retreat
Executive Summary
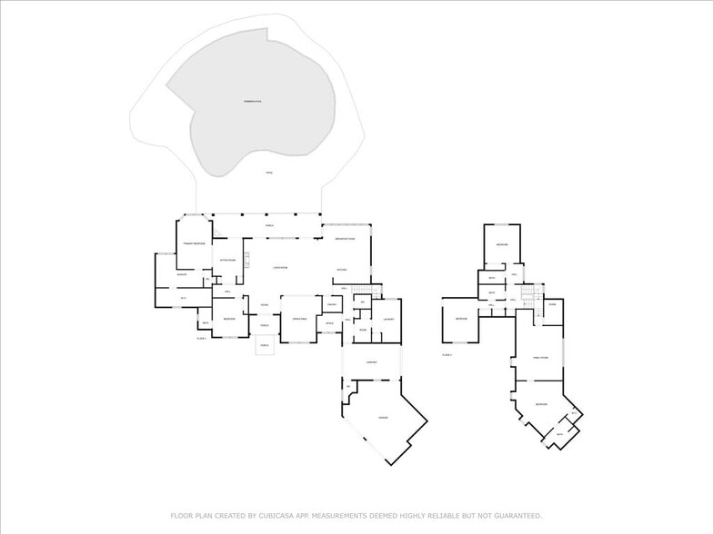
It's the peace you feel when you pull up to the gate and it opens to that view and the winding driveway. 5 bedrooms- 2 bedrooms downstairs including the primary suite and 3 bedrooms upstairs. Flowing, open floor plan. Expansive views of the rolling 203 acres! Impeccably maintained, many updates throughout. Downstairs office. Upstairs gameroom. Unbelievable backyard setting. Outdoor fireplace, heated infinity pool, spa, 2 water slides. 1 large pond with a pier and 2 additional smaller ponds. Barn for storage. Experience the awe of nature exploring creeks, walking trails, watching the deer, foxes and other wildlife from the house. Partially fenced. This is not a home, it's an experience.
Property Facts
| Sale Type | Owner User | Building Size | 4,751 SF |
| Property Type | Specialty | No. Stories | 2 |
| Lot Size | 216.02 AC | Year Built | 2004 |
| Sale Type | Owner User |
| Property Type | Specialty |
| Lot Size | 216.02 AC |
| Building Size | 4,751 SF |
| No. Stories | 2 |
| Year Built | 2004 |
1 of 77
Videos
Matterport 3D Exterior
Matterport 3D Tour
Photos
Street View
Street
Map
