Log In/Sign Up
Your email has been sent.
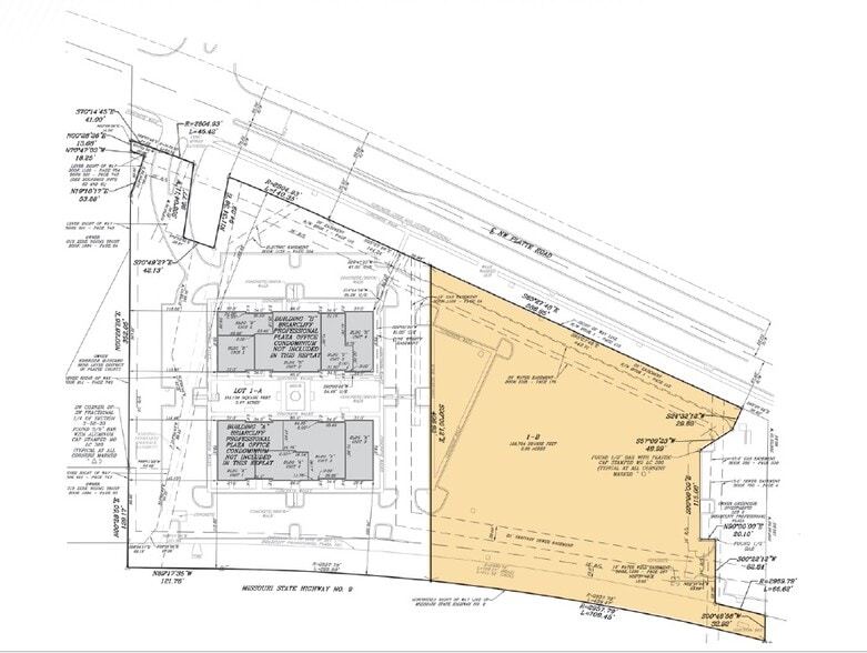
1812 NW Platte Dr
Kansas City, MO 64150
Land For Sale
·
2.98 AC


Investment Highlights
- Exceptional line of site overlooking the Downtown Skyline of Kansas City
- Excellent location - 8 minutes to CBD/ Executive Airport and 15 minutes to the new Kansas City International Airport
- Great access to Interstates 29 and 635 and Highways 169 and 9
- A premier mixed-use destination, Briarcliff is a well-established Live, Work, Play Kansas City development
Executive Summary
Site can accommodate from 25,000 to 52,000 SF of build-to suit office space.
Property Facts
1 Lot Available
Lot
| Price | $1,721,875 CAD | Lot Size | 2.98 AC |
| Price Per AC | $577,810.43 CAD |
| Price | $1,721,875 CAD |
| Price Per AC | $577,810.43 CAD |
| Lot Size | 2.98 AC |
2.98 Acres of Briarcliff Development land - pad site ready for development in Riverside, Missouri
Property Taxes
| Parcel Number | 23-20-03-000-004-002-000 | Improvements Assessment | $0 CAD |
| Land Assessment | $71,503 CAD | Total Assessment | $71,503 CAD |
Property Taxes
Parcel Number
23-20-03-000-004-002-000
Land Assessment
$71,503 CAD
Improvements Assessment
$0 CAD
Total Assessment
$71,503 CAD
1 of 5
Videos
Matterport 3D Exterior
Matterport 3D Tour
Photos
Street View
Street
Map
