Your email has been sent.
Aliana Grand Plaza 18303 W. Airport Blvd. 2,307 - 5,788 SF of Retail Space Available in Richmond, TX 77407



HIGHLIGHTS
- New construction
- Excellent visibility and a prime location in Aliana Richmond, Texas
- 2026 Delivery
SPACE AVAILABILITY (2)
Display Rental Rate as
- SPACE
- SIZE
- TERM
- RENTAL RATE
- RENT TYPE
| Space | Size | Term | Rental Rate | Rent Type | ||
| 1st Floor | 2,307 SF | 5 Years | Upon Request Upon Request Upon Request Upon Request | Triple Net (NNN) | ||
| 1st Floor | 3,481 SF | 5 Years | Upon Request Upon Request Upon Request Upon Request | Triple Net (NNN) |
1st Floor
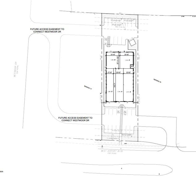
Aliana Grand Plaza – New Retail Center in Richmond, TX Aliana Grand Plaza is a premier multi-tenant retail center coming to Richmond, Fort Bend County, Texas, with an expected delivery in 2026. Strategically positioned on W. Airport Blvd., between W. Aliana Trace Dr. and Westmoor Dr., this new development presents an excellent opportunity to establish a presence in the rapidly growing Aliana market. Aliana, a thriving master-planned community, has experienced a 45% increase in housing since 2020, driving strong demand for retail and commercial services. The area features a diverse selection of new-home styles from top Houston builders, earning national recognition for its sustained growth and desirability. The average home value in Aliana Richmond is $589,236. As a well-established retail hub, Aliana is home to major national and regional brands such as Costco, Burlington, Ross, Petco, and Ulta Beauty, with continued expansion in the area. Its prime location along the Grand Parkway provides seamless access to the greater Houston area, making it a key destination for residents and businesses alike. With affordable rents, excellent visibility, and a prime location, Aliana Grand Plaza offers a unique opportunity to enter this growing retail and medical market. Secure your space today and be part of Richmond’s next major retail destination!
- Lease rate does not include utilities, property expenses or building services
- New construction
- 2026 Delivery
- Average home value in Aliana Richmond is $589,236
1st Floor
Aliana Grand Plaza – New Retail Center in Richmond, TX Aliana Grand Plaza is a premier multi-tenant retail center coming to Richmond, Fort Bend County, Texas, with an expected delivery in 2026. Strategically positioned on W. Airport Blvd., between W. Aliana Trace Dr. and Westmoor Dr., this new development presents an excellent opportunity to establish a presence in the rapidly growing Aliana market. Aliana, a thriving master-planned community, has experienced a 45% increase in housing since 2020, driving strong demand for retail and commercial services. The area features a diverse selection of new-home styles from top Houston builders, earning national recognition for its sustained growth and desirability. The average home value in Aliana Richmond is $589,236. As a well-established retail hub, Aliana is home to major national and regional brands such as Costco, Burlington, Ross, Petco, and Ulta Beauty, with continued expansion in the area. Its prime location along the Grand Parkway provides seamless access to the greater Houston area, making it a key destination for residents and businesses alike. With affordable rents, excellent visibility, and a prime location, Aliana Grand Plaza offers a unique opportunity to enter this growing retail and medical market. Secure your space today and be part of Richmond’s next major retail destination!
- Lease rate does not include utilities, property expenses or building services
Rent Types
The rent amount and type that the tenant (lessee) will be responsible to pay to the landlord (lessor) throughout the lease term is negotiated prior to both parties signing a lease agreement. The rent type will vary depending upon the services provided. For example, triple net rents are typically lower than full service rents due to additional expenses the tenant is required to pay in addition to the base rent. Contact the listing broker for a full understanding of any associated costs or additional expenses for each rent type.
1. Full Service: A rental rate that includes normal building standard services as provided by the landlord within a base year rental.
2. Double Net (NN): Tenant pays for only two of the building expenses; the landlord and tenant determine the specific expenses prior to signing the lease agreement.
3. Triple Net (NNN): A lease in which the tenant is responsible for all expenses associated with their proportional share of occupancy of the building.
4. Modified Gross: Modified Gross is a general type of lease rate where typically the tenant will be responsible for their proportional share of one or more of the expenses. The landlord will pay the remaining expenses. See the below list of common Modified Gross rental rate structures: 4. Plus All Utilities: A type of Modified Gross Lease where the tenant is responsible for their proportional share of utilities in addition to the rent. 4. Plus Cleaning: A type of Modified Gross Lease where the tenant is responsible for their proportional share of cleaning in addition to the rent. 4. Plus Electric: A type of Modified Gross Lease where the tenant is responsible for their proportional share of the electrical cost in addition to the rent. 4. Plus Electric & Cleaning: A type of Modified Gross Lease where the tenant is responsible for their proportional share of the electrical and cleaning cost in addition to the rent. 4. Plus Utilities and Char: A type of Modified Gross Lease where the tenant is responsible for their proportional share of the utilities and cleaning cost in addition to the rent. 4. Industrial Gross: A type of Modified Gross lease where the tenant pays one or more of the expenses in addition to the rent. The landlord and tenant determine these prior to signing the lease agreement.
5. Tenant Electric: The landlord pays for all services and the tenant is responsible for their usage of lights and electrical outlets in the space they occupy.
6. Negotiable or Upon Request: Used when the leasing contact does not provide the rent or service type.
7. TBD: To be determined; used for buildings for which no rent or service type is known, commonly utilized when the buildings are not yet built.
PROPERTY FACTS
| Total Space Available | 5,788 SF | Gross Leasable Area | 7,003 SF |
| Property Type | Retail | Construction Status | Proposed |
| Property Subtype | Storefront Retail/Office | Cross Streets | Westmoor Rd. |
| Total Space Available | 5,788 SF |
| Property Type | Retail |
| Property Subtype | Storefront Retail/Office |
| Gross Leasable Area | 7,003 SF |
| Construction Status | Proposed |
| Cross Streets | Westmoor Rd. |
ABOUT THE PROPERTY
Aliana Grand Plaza – New Retail Center in Richmond, TX Aliana Grand Plaza is a premier multi-tenant retail center coming to Richmond, Fort Bend County, Texas, with an expected delivery in 2026. Strategically positioned on W. Airport Blvd., between W. Aliana Trace Dr. and Westmoor Dr., this new development presents an excellent opportunity to establish a presence in the rapidly growing Aliana market. Aliana, a thriving master-planned community, has experienced a 45% increase in housing since 2020, driving strong demand for retail and commercial services. The area features a diverse selection of new-home styles from top Houston builders, earning national recognition for its sustained growth and desirability. The average home value in Aliana Richmond is $589,236. As a well-established retail hub, Aliana is home to major national and regional brands such as Costco, Burlington, Ross, Petco, and Ulta Beauty, with continued expansion in the area. Its prime location along the Grand Parkway provides seamless access to the greater Houston area, making it a key destination for residents and businesses alike. With affordable rents, excellent visibility, and a prime location, Aliana Grand Plaza offers a unique opportunity to enter this growing retail and medical market. Secure your space today and be part of Richmond’s next major retail destination!
NEARBY MAJOR RETAILERS
Presented by
Aliana Grand Plaza | 18303 W. Airport Blvd.
Hmm, there seems to have been an error sending your message. Please try again.
Thanks! Your message was sent.
