Your email has been sent.
185 Forester St - Dollarton Business Park 1,375 SF Industrial Condo Unit Offered at $1,340,000 CAD in North Vancouver District, BC V7H 2M9



Investment Highlights
- Flexible zoning accommodates a variety of business uses.
- Large windows throughout the unit provide abundant natural light.
- Convenient access to Highway 1, Dollarton Highway, and Second Narrows Bridge.
- Open-concept floor plan with modern HVAC systems.
- Corner unit offers excellent visibility for branding and signage.
- Close to retail, dining, and service amenities including Parkgate Village and Maplewood Village Centre.
Executive Summary
The property is a strata light industrial unit located at 185 Forester Street in North Vancouver’s Dollarton Business Park. It was built in 2010 and offers 1,375 square feet of space with three parking stalls. The site is situated near major transportation routes including Highway 1 and Dollarton Highway, providing connectivity to Vancouver and Burnaby. Nearby amenities include Parkgate Village, Maplewood Village Centre, and Capilano University.
Property Facts
| Total Building Size | 22,160 SF | Typical Floor Size | 11,080 SF |
| Property Type | Industrial (Condo) | Year Built | 2010 |
| Property Subtype | Warehouse | Lot Size | 2.95 AC |
| Building Class | B | Parking Ratio | 0.17/1,000 SF |
| Floors | 2 | ||
| Zoning | CD-33 - Comprehensive Development | ||
| Total Building Size | 22,160 SF |
| Property Type | Industrial (Condo) |
| Property Subtype | Warehouse |
| Building Class | B |
| Floors | 2 |
| Typical Floor Size | 11,080 SF |
| Year Built | 2010 |
| Lot Size | 2.95 AC |
| Parking Ratio | 0.17/1,000 SF |
| Zoning | CD-33 - Comprehensive Development |
Amenities
- Bus Line
- Signage
Utilities
- Lighting - Fluorescent
1 Unit Available
Unit 101
| Unit Size | 1,375 SF | Sale Type | Owner User |
| Price | $1,340,000 CAD | No. Parking Spaces | 3 |
| Price Per SF | $974.55 CAD | APN/Parcel ID | 028-362-781 |
| Condo Use | Industrial |
| Unit Size | 1,375 SF |
| Price | $1,340,000 CAD |
| Price Per SF | $974.55 CAD |
| Condo Use | Industrial |
| Sale Type | Owner User |
| No. Parking Spaces | 3 |
| APN/Parcel ID | 028-362-781 |
Sale Notes
This well-maintained strata unit offers a rare opportunity for owner-occupiers or investors seeking a versatile industrial space in North Vancouver’s thriving Dollarton Business Park. Featuring a flexible open-concept layout, modern HVAC systems, and abundant natural light through large windows, the property is designed to accommodate a range of uses including industrial, warehousing, office, or showroom functions.
Positioned just minutes from the Second Narrows Bridge, the property provides seamless connectivity to Vancouver, Burnaby, and the broader Lower Mainland via major routes such as Highway 1 and Dollarton Highway. The surrounding area offers a strong mix of retail, dining, and service amenities, including Parkgate Village, Maplewood Village Centre, and Capilano University. With three dedicated parking stalls and excellent corner visibility, this asset combines functionality with accessibility, making it a compelling long-term investment in a high-demand industrial node.
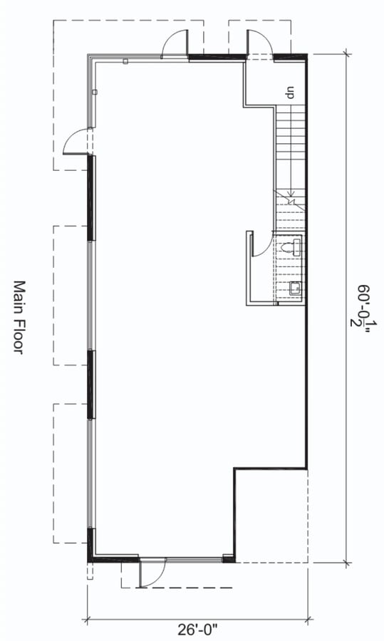
Floor Plan
Interior Photo
Interior Photo
Interior Photo
Interior Photo
Interior Photo
Interior Photo
Presented by
185 Forester St - Dollarton Business Park
Hmm, there seems to have been an error sending your message. Please try again.
Thanks! Your message was sent.

