Log In/Sign Up
Your email has been sent.
INVESTMENT HIGHLIGHTS
- 2025 Gut-Renovations
- Stainless Steel appliances
- Subway access at Utica Ave Station for A and C trains
- Hardwood Floors
- Ground floor and 3rd floor duplexes
- Subway access at Crown Heights-Utica Ave Station for 1,2,3 and 4 trains
EXECUTIVE SUMMARY
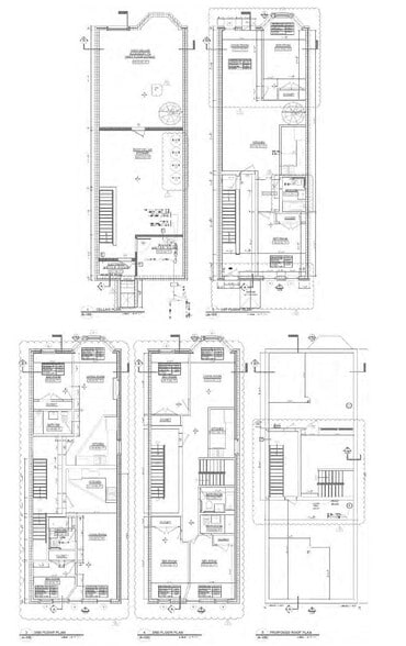
Cushman & Wakefield is pleased to present to market 185 Utica Avenue, in Crown Heights, Brooklyn. The 4,050 SF 4-family property is located on Utica Avenue between Park Place and Prospect Place. Renovated to the studs in 2025, the building underwent an Alteration-1 and is brand new bar the exteriors walls. The property boasts a large 2BR ground-floor duplex with a private backyard and 9-foot ceilings. Floor two holds two 1BR units and floor three is a 3BR 2BA unit with a duplex to an extra BR/Office on the roof. All units have mini-split A/C and Washer/Dryers. The offering will be delivered fully vacant and with TCO, allowing for investors or Users to occupy and place their own tenants. Shared basement space holds three storage units for the 2nd and 3rd floor apartments. Please direct all inquiries to Cushman & Wakefield.
PROPERTY FACTS
| Price | $3,280,412 CAD | Building Class | C |
| Price Per Unit | $820,103 CAD | Lot Size | 0.04 AC |
| Sale Type | Investment | Building Size | 4,050 SF |
| No. Units | 4 | Average Occupancy | 0% |
| Property Type | Multifamily | No. Stories | 3 |
| Property Subtype | Apartment | Year Built | 2025 |
| Apartment Style | Low-Rise | Opportunity Zone |
Yes
|
| Zoning | R6, C1-3 - Medium density residential district | ||
| Price | $3,280,412 CAD |
| Price Per Unit | $820,103 CAD |
| Sale Type | Investment |
| No. Units | 4 |
| Property Type | Multifamily |
| Property Subtype | Apartment |
| Apartment Style | Low-Rise |
| Building Class | C |
| Lot Size | 0.04 AC |
| Building Size | 4,050 SF |
| Average Occupancy | 0% |
| No. Stories | 3 |
| Year Built | 2025 |
| Opportunity Zone |
Yes |
| Zoning | R6, C1-3 - Medium density residential district |
AMENITIES
UNIT AMENITIES
- Air Conditioning
- Storage Space
- Hardwood Floors
- Stainless Steel Appliances
- Yard
- Basement
UNIT MIX INFORMATION
| DESCRIPTION | NO. UNITS | AVG. RENT/MO | SF |
|---|---|---|---|
| 1+1 | 2 | - | 525 |
| 2+1 | 1 | - | 1,350 |
| 3+2 | 1 | - | 1,050 |
1 1
Walk Score®
Walker's Paradise (96)
Transit Score®
Rider's Paradise (100)
Bike Score®
Very Bikeable (82)
PROPERTY TAXES
| Parcel Number | 01367-0002 | Improvements Assessment | $75,971 CAD |
| Land Assessment | $11,876 CAD | Total Assessment | $87,847 CAD |
PROPERTY TAXES
Parcel Number
01367-0002
Land Assessment
$11,876 CAD
Improvements Assessment
$75,971 CAD
Total Assessment
$87,847 CAD
1 of 3
VIDEOS
MATTERPORT 3D EXTERIOR
MATTERPORT 3D TOUR
PHOTOS
STREET VIEW
STREET
MAP
1 of 1
Presented by
185 Utica Ave
Already a member? Log In
Hmm, there seems to have been an error sending your message. Please try again.
Thanks! Your message was sent.


