Your email has been sent.
1872 Tamiami Trl S 1,147 SF Office/Medical Condo Unit Offered at $542,441 CAD in Venice, FL 34293



Investment Highlights
- Heavy daytime vehicle traffic
- Updated
- Lots of natural light
Executive Summary
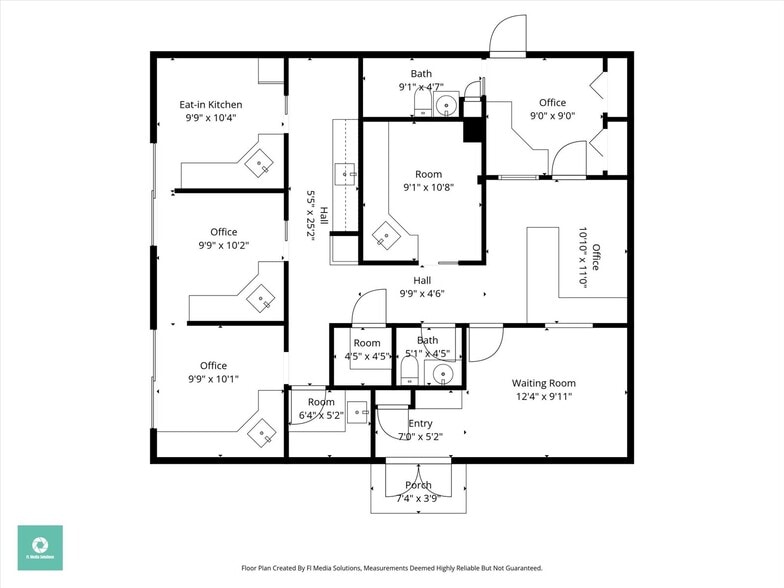
Located on high-visibility S. Tamiami Trail (US-41) in Venice, this office unit offers excellent exposure and easy access to I-75, Center Road, and Downtown Venice. Surrounded by professional offices, medical users, retail services, and dense residential neighborhoods, the location supports strong daily traffic and long-term demand for office users. Professional, End Unit Office Condominium Unit located on Tamiami Trail in Venice with exposure to over 45,500 vehicles per day. Suite could be used for General Office and features a storefront entrance into a reception/waiting room, administrative office, 5 private offices/treatment rooms, 2 private restrooms and plenty of storage. Previous use was a medical office and each treatment room features cabinetry and counters with sinks.
1 Unit Available
Unit A
| Unit Size | 1,147 SF | Sale Type | Investment or Owner User |
| Price | $542,441 CAD | No. Parking Spaces | 44 |
| Price Per SF | $472.92 CAD | APN/Parcel ID | 0451-01-1001 |
| Condo Use | Office/Medical |
| Unit Size | 1,147 SF |
| Price | $542,441 CAD |
| Price Per SF | $472.92 CAD |
| Condo Use | Office/Medical |
| Sale Type | Investment or Owner User |
| No. Parking Spaces | 44 |
| APN/Parcel ID | 0451-01-1001 |
Description
Professional, End Unit Office Condominium Unit located on Tamiami Trail in Venice with exposure to over 45,500 vehicles per day. Suite could be used for General Office and features a storefront entrance into a reception/waiting room, administrative office, 5 private offices/treatment rooms, 2 private restrooms and plenty of storage. Previous use was a dental office and treatment rooms feature cabinetry, counters with sinks and additional plumbing.
Sale Notes
This end-unit office condominium offers a prominent location on South Tamiami Trail (US-41) in Venice, Florida, delivering strong visibility with traffic volumes exceeding 45,500 vehicles daily. The property provides convenient access to I-75, Center Road, and Downtown Venice, enabling businesses to benefit from the area’s established professional, medical, and retail networks.
Previously utilized as a medical office, the space is designed for immediate functionality with a reception area, administrative office, five private offices or treatment rooms, two restrooms, and storage space. Each treatment room is equipped with cabinetry, countertops, and sinks, making the unit well-suited for medical practices, professional services, or flexible office uses.
The surrounding environment features dense residential neighborhoods, supporting consumer-facing businesses, along with a robust professional community. With ample parking and CG (General Commercial) zoning, this property positions owner-users or investors for long-term value in an accessible, high-demand corridor of Sarasota County.
1872 S Tamiami Trl A - Floor Plan
Interior Photo
Interior Photo
Lobby
Lobby
Interior Photo
Interior Photo
Interior Photo
Interior Photo
Interior Photo
Interior Photo
Interior Photo
Interior Photo
Interior Photo
Interior Photo
Interior Photo
Interior Photo
Interior Photo
Interior Photo
Interior Photo
Interior Photo
Interior Photo
Interior Photo
Property Facts
| Total Building Size | 11,270 SF | Typical Floor Size | 1,147 SF |
| Property Type | Year Built | 1980 | |
| Building Class | B | Lot Size | 1.12 AC |
| Floors | 1 | Parking Ratio | 38.36/1,000 SF |
| Zoning | CG - General Commercial | ||
| Total Building Size | 11,270 SF |
| Property Type | |
| Building Class | B |
| Floors | 1 |
| Typical Floor Size | 1,147 SF |
| Year Built | 1980 |
| Lot Size | 1.12 AC |
| Parking Ratio | 38.36/1,000 SF |
| Zoning | CG - General Commercial |
Amenities
- Bus Line
- Signage
- Reception
- Wi-Fi
- Air Conditioning
Presented by
1872 Tamiami Trl S
Hmm, there seems to have been an error sending your message. Please try again.
Thanks! Your message was sent.


