Your email has been sent.
Campus Commons - Campus South 1875 Campus Commons Dr 1,688 - 16,296 SF of Office Space Available in Reston, VA 20191



Highlights
- Ready To Occupy Plug'n Play Space With Furniture, Glass Double Door Elevator Lobby Entry Into The Reception Area, Multiple Glass Conference Rooms, Upgraded Lighting Throughout The Suite, High 10' Finished Ceiling, IT Room With Supplemental HVAC, Combinati
All Available Spaces(4)
Display Rental Rate as
- Space
- Size
- Term
- Rental Rate
- Space Use
- Build-Out
- Available
Elevator Lobby Exposure, Kitchen, 4 Windowed Offices, Open Area Please contact broker for brochure and floor plans
- Rate includes utilities, building services and property expenses
- Open Floor Plan Layout
- 1 Conference Room
- Fully Built-Out as Standard Office
- 4 Private Offices
- Kitchen
Contiguous with suite 220.
- Rate includes utilities, building services and property expenses
- Can be combined with additional space(s) for up to 7,879 SF of adjacent space
Nice Small Space, Mostly Open Plan, Conference Room, Kitchen Please contact broker for brochure an floor plans.
- Rate includes utilities, building services and property expenses
- Open Floor Plan Layout
- Can be combined with additional space(s) for up to 7,879 SF of adjacent space
- Fully Built-Out as Standard Office
- 1 Private Office
- Mostly open plan
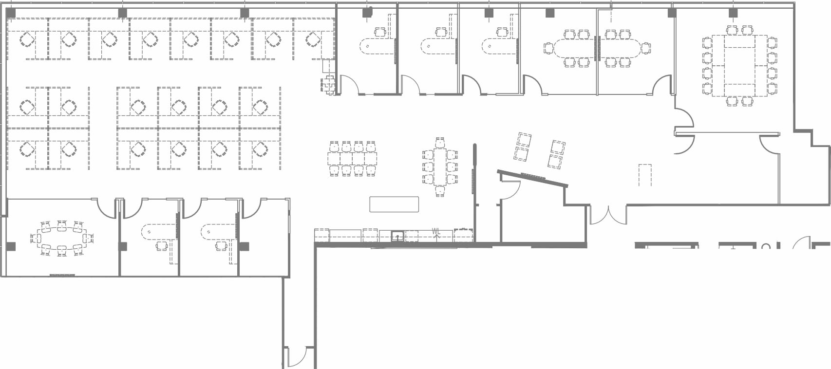
Elevator Lobby Double Door Exposure Multiple Conference Rooms Kitchen Expansive Window Line PLEASE CONTACT BROKER FOR PROPERTY FLYER AND FLOOR PLANS.
- Rate includes utilities, building services and property expenses
- Mostly Open Floor Plan Layout
- 4 Conference Rooms
- Space is in Excellent Condition
- Fully Built-Out as Standard Office
- 5 Private Offices
- 20 Workstations
- Multiple Conference Rooms
| Space | Size | Term | Rental Rate | Space Use | Build-Out | Available |
| 2nd Floor, Ste 200 | 1,917 SF | 3-10 Years | $34.88 CAD/SF/YR $2.91 CAD/SF/MO $66,865 CAD/YR $5,572 CAD/MO | Office | Full Build-Out | Now |
| 2nd Floor, Ste 210 | 6,191 SF | Negotiable | $34.88 CAD/SF/YR $2.91 CAD/SF/MO $215,942 CAD/YR $17,995 CAD/MO | Office | - | Now |
| 2nd Floor, Ste 220 | 1,688 SF | 3-10 Years | $34.88 CAD/SF/YR $2.91 CAD/SF/MO $58,877 CAD/YR $4,906 CAD/MO | Office | Full Build-Out | Now |
| 3rd Floor, Ste 304 | 6,500 SF | Negotiable | $36.59 CAD/SF/YR $3.05 CAD/SF/MO $237,833 CAD/YR $19,819 CAD/MO | Office | Full Build-Out | Now |
2nd Floor, Ste 200
| Size |
| 1,917 SF |
| Term |
| 3-10 Years |
| Rental Rate |
| $34.88 CAD/SF/YR $2.91 CAD/SF/MO $66,865 CAD/YR $5,572 CAD/MO |
| Space Use |
| Office |
| Build-Out |
| Full Build-Out |
| Available |
| Now |
2nd Floor, Ste 210
| Size |
| 6,191 SF |
| Term |
| Negotiable |
| Rental Rate |
| $34.88 CAD/SF/YR $2.91 CAD/SF/MO $215,942 CAD/YR $17,995 CAD/MO |
| Space Use |
| Office |
| Build-Out |
| - |
| Available |
| Now |
2nd Floor, Ste 220
| Size |
| 1,688 SF |
| Term |
| 3-10 Years |
| Rental Rate |
| $34.88 CAD/SF/YR $2.91 CAD/SF/MO $58,877 CAD/YR $4,906 CAD/MO |
| Space Use |
| Office |
| Build-Out |
| Full Build-Out |
| Available |
| Now |
3rd Floor, Ste 304
| Size |
| 6,500 SF |
| Term |
| Negotiable |
| Rental Rate |
| $36.59 CAD/SF/YR $3.05 CAD/SF/MO $237,833 CAD/YR $19,819 CAD/MO |
| Space Use |
| Office |
| Build-Out |
| Full Build-Out |
| Available |
| Now |
2nd Floor, Ste 200
| Size | 1,917 SF |
| Term | 3-10 Years |
| Rental Rate | $34.88 CAD/SF/YR |
| Space Use | Office |
| Build-Out | Full Build-Out |
| Available | Now |
Elevator Lobby Exposure, Kitchen, 4 Windowed Offices, Open Area Please contact broker for brochure and floor plans
- Rate includes utilities, building services and property expenses
- Fully Built-Out as Standard Office
- Open Floor Plan Layout
- 4 Private Offices
- 1 Conference Room
- Kitchen
2nd Floor, Ste 210
| Size | 6,191 SF |
| Term | Negotiable |
| Rental Rate | $34.88 CAD/SF/YR |
| Space Use | Office |
| Build-Out | - |
| Available | Now |
Contiguous with suite 220.
- Rate includes utilities, building services and property expenses
- Can be combined with additional space(s) for up to 7,879 SF of adjacent space
2nd Floor, Ste 220
| Size | 1,688 SF |
| Term | 3-10 Years |
| Rental Rate | $34.88 CAD/SF/YR |
| Space Use | Office |
| Build-Out | Full Build-Out |
| Available | Now |
Nice Small Space, Mostly Open Plan, Conference Room, Kitchen Please contact broker for brochure an floor plans.
- Rate includes utilities, building services and property expenses
- Fully Built-Out as Standard Office
- Open Floor Plan Layout
- 1 Private Office
- Can be combined with additional space(s) for up to 7,879 SF of adjacent space
- Mostly open plan
3rd Floor, Ste 304
| Size | 6,500 SF |
| Term | Negotiable |
| Rental Rate | $36.59 CAD/SF/YR |
| Space Use | Office |
| Build-Out | Full Build-Out |
| Available | Now |
Elevator Lobby Double Door Exposure Multiple Conference Rooms Kitchen Expansive Window Line PLEASE CONTACT BROKER FOR PROPERTY FLYER AND FLOOR PLANS.
- Rate includes utilities, building services and property expenses
- Fully Built-Out as Standard Office
- Mostly Open Floor Plan Layout
- 5 Private Offices
- 4 Conference Rooms
- 20 Workstations
- Space is in Excellent Condition
- Multiple Conference Rooms
Property Overview
* Elegant interior finishes* Premier office building with high profile reflective blue glass exterior, featuring polished stainless mullion grid* Convenient Dulles Toll Road location between Hunter Mill Rd and Wiehle Avenue Exit. Common area Showers and lockers on each floor.* Equipped with variable air volume (VAV) HVAC system with zones controlled by wall mounted thermostats * Kastle Card Key Access security system*Fitness Provider/Personal Training On Site.This building has been Wired Certified Gold. Wired Certified Gold means a building provides tenants with access to multiple high-quality internet service providers and a variety of cabling types including fiber. The infrastructure measures in place ensure connectivity sources are protected, redundant, and prepared for connectivity needs of future tenants as well. Internet Service Providers available:Verizon-Copper, Verizon-Fiber, Comcast Business-Fiber, Cox-Coaxial, Cox-Fiber, Verizon FiOS-Fiber
- Security System
Property Facts
Presented by
Campus Commons - Campus South | 1875 Campus Commons Dr
Hmm, there seems to have been an error sending your message. Please try again.
Thanks! Your message was sent.









