Your email has been sent.
Investment Highlights
- Great Location
- Quality Build
- Custumizable space
- Commercial Flex-Office Condominium
Executive Summary
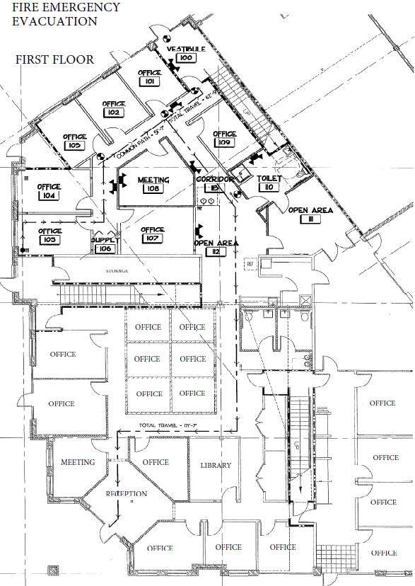
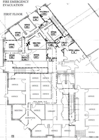
1880 West Oak Parkway, Unit 106 is a 15,720 square foot, 2-story office condominium with 548 square feet of warehouse space featuring 20’ clear ceiling height and one (1) 9’ x 10’ grade level, roll-updoor. The unit being offered is the largest and best located within the building, and comes with approximately 40 parking spaces outside right outside its four doors. As seen in the floor plan, the unit is built out with approximately 40 offices, 5 meeting rooms, 8 bathrooms, and two large cubical spaces. The steal frame building provides for easy customization to fit buyer or lessee's needs. Built in 2006 with Planned Industrial Development zoning, the property is located in a commercial condominium united located in North Point Business Park approximately 1 mile from I-75 and consists of two buildings, 12 units in Building 1 and 6 in Building 1 with ample parking and easy access.
1 Unit Available
Unit 106
| Unit Size | 15,720 SF | Sale Type | Investment or Owner User |
| Condo Use | Flex | No. Parking Spaces | 40 |
| Unit Size | 15,720 SF |
| Condo Use | Flex |
| Sale Type | Investment or Owner User |
| No. Parking Spaces | 40 |
Description
Unit 106 is a 15,720 SF, 2-story office condominium with approximately 45-50 offices, 4-5 large meeting/conference/training spaces, and approximately 600 SF of warehouse space featuring 20’ clear ceiling height and a 9’ x 10’ grade level, roll-up door. The unit being offered is the largest and best located within the building, and comes with ample parking. With 4 access doors, the unit can also be subdivided in a number of configurations and the steal frame building provides for easy customization to fit your needs.
First Floor Floor Plan
First Floor Floor Plan
Unit 106
Entrance
Conference
Conference Room
Warehouse
Warehouse
Office
Office
Office
Interior Photo
Interior Photo
Interior Photo
Extra Parking
Property Facts
Amenities
- Signage
- Wheelchair Accessible
- Air Conditioning
Utilities
- Lighting
- Gas - Natural
- Water - City
- Sewer - City
- Heating - Gas
Presented by
1880 W Oak Pky - Unit 106
Hmm, there seems to have been an error sending your message. Please try again.
Thanks! Your message was sent.





