Log In/Sign Up
Your email has been sent.
19 Belmont Rd 3,367 SF Retail Building Erith DA8 1JY $1,155,361 CAD ($343.14 CAD/SF)



Investment Highlights
- Attractive situation
- Close to local amenties
- Transport links
Executive Summary
The site currently consists of a building, with a footprint measuring approx. 3,367 SqFt that has been used as a Nursery. Situated in the heart of local amenties such as restaurants, health centres, shops. There is also Barnehurst trainline close for transport links
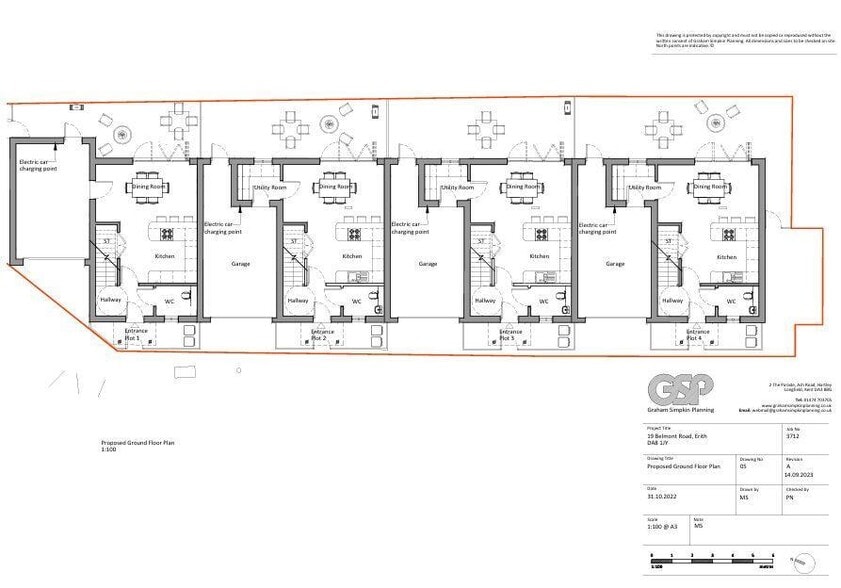
A development site with planning permission for 4 x 3 bedroom dwellings with integrated garages. Planning permission approved by London Borough of Bexley. Full details can be found under the reference - 22/02978/FUL Planning expires in October 2026
A development site with planning permission for 4 x 3 bedroom dwellings with integrated garages. Planning permission approved by London Borough of Bexley. Full details can be found under the reference - 22/02978/FUL Planning expires in October 2026
Property Facts
Sale Type
Owner User
Sale Condition
Auction Sale
Property Type
Retail
Tenure
Freehold
Property Subtype
Day Care Center
Building Size
3,367 SF
Building Class
B
Year Built
1971
Price
$1,155,361 CAD
Price Per SF
$343.14 CAD
Tenancy
Single
Building Height
1 Story
Parking
5 Spaces (1.72 Spaces per 1,000 SF Leased)
Frontage
Amenities
- Bus Line
- Signage
1 1
Nearby Major Retailers
1 of 12
Videos
Matterport 3D Exterior
Matterport 3D Tour
Photos
Street View
Street
Map
1 of 1
Presented by
19 Belmont Rd
Already a member? Log In
Hmm, there seems to have been an error sending your message. Please try again.
Thanks! Your message was sent.
