Your email has been sent.
Investment Highlights
- Visibility on Matlock Road
- Includes monument and building signage
Executive Summary
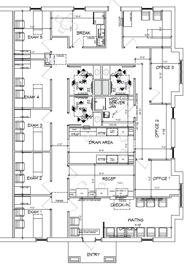
The property is a well-appointed medical office condominium designed to accommodate various healthcare practices. The interior layout includes multiple exam rooms, private offices, and supporting spaces, providing a ready-to-use environment for medical professionals. Monument and building signage enhance visibility along Matlock Road, a major thoroughfare with significant daily traffic. The location is surrounded by retail centers and residential communities, offering convenience for patients and staff.
Property Facts
| Total Building Size | 4,728 SF | Typical Floor Size | 4,728 SF |
| Property Type | Office (Condo) | Year Built | 2019 |
| Property Subtype | Lot Size | 4.66 AC | |
| Building Class | B | Parking Ratio | 3.5/1,000 SF |
| Floors | 1 | ||
| Zoning | C-1 | ||
| Total Building Size | 4,728 SF |
| Property Type | Office (Condo) |
| Property Subtype | |
| Building Class | B |
| Floors | 1 |
| Typical Floor Size | 4,728 SF |
| Year Built | 2019 |
| Lot Size | 4.66 AC |
| Parking Ratio | 3.5/1,000 SF |
| Zoning | C-1 |
Amenities
- Signage
- Wheelchair Accessible
- Reception
- Monument Signage
- Air Conditioning
1 Unit Available
Unit 304
| Unit Size | 2,506 SF | Sale Type | Investment or Owner User |
| Condo Use | Medical |
| Unit Size | 2,506 SF |
| Condo Use | Medical |
| Sale Type | Investment or Owner User |
Description
Well-appointed medical office condominium designed to accommodate various healthcare practices. The interior layout includes multiple exam rooms, private offices, and supporting spaces, providing a ready-to-use environment for medical professionals. Monument and building signage enhance visibility along Matlock Road, a major thoroughfare with significant daily traffic. The location is surrounded by retail centers and residential communities, offering convenience for patients and staff.
Sale Notes
This modern medical office condominium offers a rare opportunity for healthcare professionals and investors seeking a well-designed, turnkey space in a thriving corridor. Constructed in 2018, the property features an efficient layout with multiple exam rooms and private offices, supporting a variety of medical specialties and operational needs.
Positioned along Matlock Road, the site provides outstanding visibility and accessibility, complemented by both monument and building signage to maximize exposure. The surrounding area is characterized by strong residential density and proximity to numerous retail centers, creating a convenient and highly trafficked location for patients and staff alike.
With its contemporary design, functional floor plan, and prominent location, this asset delivers long-term value and operational efficiency in one of the area’s most active medical and commercial hubs.
Suite 304 Floor Plan
Suite 304
Suite 304
Suite 304
Suite 304
Presented by
1900 Matlock Rd - Building 3
Hmm, there seems to have been an error sending your message. Please try again.
Thanks! Your message was sent.




