Log In/Sign Up
Your email has been sent.
Highlights
- Affordable pricing for in town office space
- Private access to the Atlanta Beltline
- Free, surface parking
- Great layout with offices, bull pen and break area
All Available Space(1)
Display Rental Rate as
- Space
- Size
- Term
- Rental Rate
- Space Use
- Condition
- Available
- Rate includes utilities, building services and property expenses
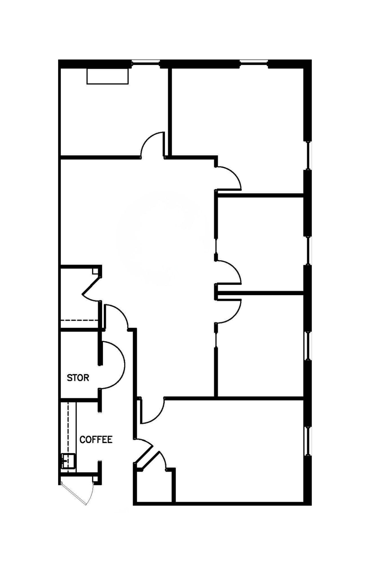
- Office intensive layout
- Fully Built-Out as Standard Office
- Fits 5 - 15 People
| Space | Size | Term | Rental Rate | Space Use | Condition | Available |
| 2nd Floor, Ste 240 | 1,794 SF | 1-10 Years | $41.00 CAD/SF/YR $3.42 CAD/SF/MO $73,547 CAD/YR $6,129 CAD/MO | Office | Full Build-Out | Now |
2nd Floor, Ste 240
| Size |
| 1,794 SF |
| Term |
| 1-10 Years |
| Rental Rate |
| $41.00 CAD/SF/YR $3.42 CAD/SF/MO $73,547 CAD/YR $6,129 CAD/MO |
| Space Use |
| Office |
| Condition |
| Full Build-Out |
| Available |
| Now |
1 of 4
Videos
Matterport 3D Exterior
Matterport 3D Tour
Photos
Street View
Street
Map
2nd Floor, Ste 240
| Size | 1,794 SF |
| Term | 1-10 Years |
| Rental Rate | $41.00 CAD/SF/YR |
| Space Use | Office |
| Condition | Full Build-Out |
| Available | Now |
- Rate includes utilities, building services and property expenses
- Fully Built-Out as Standard Office
- Office intensive layout
- Fits 5 - 15 People
Property Overview
Centrally located, value oriented move-in ready office suite. Great for professional service firms. Two corner offices or conference rooms
- 24 Hour Access
- Bus Line
Property Facts
Building Type
Office
Year Built
1960
Building Height
2 Stories
Building Size
19,500 SF
Building Class
B
Typical Floor Size
9,750 SF
Unfinished Ceiling Height
12’
Parking
63 Surface Parking Spaces
1 1
Fairly walkable
50/100
Exceptionally drivable
100/100
Some public transit
40/100
Not bikeable
10/100
1 of 9
Videos
Matterport 3D Exterior
Matterport 3D Tour
Photos
Street View
Street
Map
1 of 1
Presented by
1904 Monroe Drive | 1904 Monroe Dr NE
Already a member? Log In
Hmm, there seems to have been an error sending your message. Please try again.
Thanks! Your message was sent.






