Log In/Sign Up
Your email has been sent.
Investment Highlights
- +/- 10,124 office building
- Excellent visibility and accessibility
- Multiple private offices throughout both floors
Executive Summary
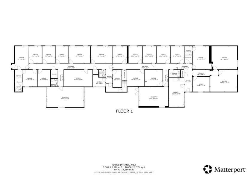
Located along highly traveled Warm Springs Road, this +/- 10,124 square foot, two-story office building offers an exceptional opportunity for investors or owner-users seeking a well-configured office property in the heart of Columbus.
The property features a functional layout with numerous private offices of varying sizes, multiple storage rooms, restrooms on both floors, and a mix of standard and oversized offices suitable for executive suites or conference rooms. The flexible floor plan supports a variety of uses including professional services, medical, counseling, education, or general office occupancy.
Matterport Tour: https://my.matterport.com/show/?m=3ej4s2HHea1
Member(s) of the property ownership are licensed real estate professionals in the State of Georgia, and hold an ownership interest in the property being advertised.
The property features a functional layout with numerous private offices of varying sizes, multiple storage rooms, restrooms on both floors, and a mix of standard and oversized offices suitable for executive suites or conference rooms. The flexible floor plan supports a variety of uses including professional services, medical, counseling, education, or general office occupancy.
Matterport Tour: https://my.matterport.com/show/?m=3ej4s2HHea1
Member(s) of the property ownership are licensed real estate professionals in the State of Georgia, and hold an ownership interest in the property being advertised.
Property Facts
Sale Type
Investment or Owner User
Property Type
Office
Property Subtype
Medical
Building Size
10,124 SF
Building Class
B
Year Built
1996
Tenancy
Single
Building Height
1 Story
Typical Floor Size
10,124 SF
Building FAR
0.35
Lot Size
0.66 AC
Zoning
RO - RO- Residential Office. Could be used as daycare/ adult daycare or medical office.
Parking
32 Spaces (3.16 Spaces per 1,000 SF Leased)
Amenities
- Air Conditioning
1 1
Moderately walkable
60/100
Exceptionally drivable
90/100
Very bikeable
80/100
Property Taxes
| Parcel Number | 036-009-001 | Improvements Assessment | $512,109 CAD |
| Land Assessment | $64,828 CAD | Total Assessment | $576,937 CAD |
Property Taxes
Parcel Number
036-009-001
Land Assessment
$64,828 CAD
Improvements Assessment
$512,109 CAD
Total Assessment
$576,937 CAD
1 of 36
Videos
Matterport 3D Exterior
Matterport 3D Tour
Photos
Street View
Street
Map
1 of 1
Presented by
1906 Warm Springs Rd
Already a member? Log In
Hmm, there seems to have been an error sending your message. Please try again.
Thanks! Your message was sent.



