Your email has been sent.
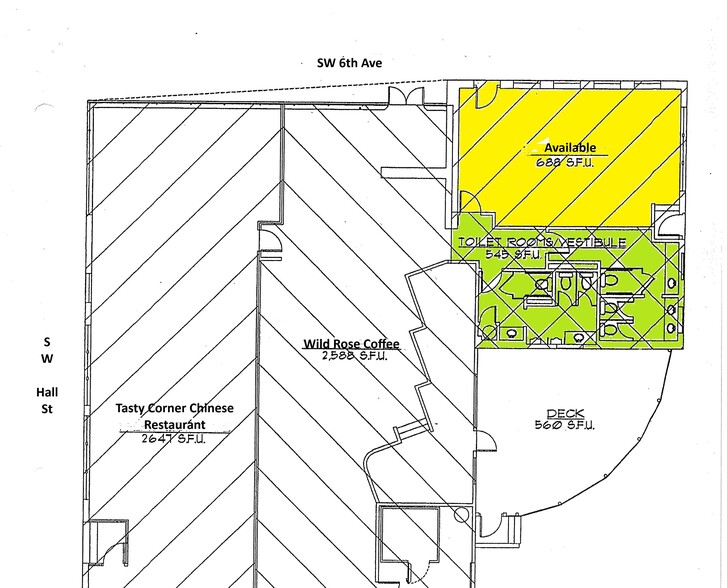
688 sq ft Retail Space Available- 1915 SW 6th 1915 SW 6th Ave 688 SF of Retail Space Available in Portland, OR 97201



HIGHLIGHTS
- Heavy foot traffic
- Manager parking
- Visability
SPACE AVAILABILITY (1)
Display Rental Rate as
- SPACE
- SIZE
- TERM
- RENTAL RATE
- RENT TYPE
| Space | Size | Term | Rental Rate | Rent Type | ||
| 1st Floor | 688 SF | Negotiable | $36.29 CAD/SF/YR $3.02 CAD/SF/MO $24,970 CAD/YR $2,081 CAD/MO | Triple Net (NNN) |
1st Floor
High foot traffic count, visibility in the heart of PSU and national brands. The space is being updated with new interior and exterior paint, and commercial carpets. Conveniently located on NE corner of SW Hall St and SW 6th Ave in Portland Oregon. Portland State University has over 28,000 students, 6000 professors, managers, and administrative staff. This retail space benefits from heavy walking traffic to and from the various colleges, University Center and a multi-level student parking garage across street. The 688 sq. ft. space includes one on-site management parking spot. Adjacent is a restaurant, boutique coffee shop, and other businesses that serve the University population. Bring your national brand or small business dream. Terms and options are negotiable. Call or email listing broker for details.
- Lease rate does not include utilities, property expenses or building services
- Central Air Conditioning
- Fully Carpeted
- Corner Space
- Drop Ceilings
Rent Types
The rent amount and type that the tenant (lessee) will be responsible to pay to the landlord (lessor) throughout the lease term is negotiated prior to both parties signing a lease agreement. The rent type will vary depending upon the services provided. For example, triple net rents are typically lower than full service rents due to additional expenses the tenant is required to pay in addition to the base rent. Contact the listing broker for a full understanding of any associated costs or additional expenses for each rent type.
1. Full Service: A rental rate that includes normal building standard services as provided by the landlord within a base year rental.
2. Double Net (NN): Tenant pays for only two of the building expenses; the landlord and tenant determine the specific expenses prior to signing the lease agreement.
3. Triple Net (NNN): A lease in which the tenant is responsible for all expenses associated with their proportional share of occupancy of the building.
4. Modified Gross: Modified Gross is a general type of lease rate where typically the tenant will be responsible for their proportional share of one or more of the expenses. The landlord will pay the remaining expenses. See the below list of common Modified Gross rental rate structures: 4. Plus All Utilities: A type of Modified Gross Lease where the tenant is responsible for their proportional share of utilities in addition to the rent. 4. Plus Cleaning: A type of Modified Gross Lease where the tenant is responsible for their proportional share of cleaning in addition to the rent. 4. Plus Electric: A type of Modified Gross Lease where the tenant is responsible for their proportional share of the electrical cost in addition to the rent. 4. Plus Electric & Cleaning: A type of Modified Gross Lease where the tenant is responsible for their proportional share of the electrical and cleaning cost in addition to the rent. 4. Plus Utilities and Char: A type of Modified Gross Lease where the tenant is responsible for their proportional share of the utilities and cleaning cost in addition to the rent. 4. Industrial Gross: A type of Modified Gross lease where the tenant pays one or more of the expenses in addition to the rent. The landlord and tenant determine these prior to signing the lease agreement.
5. Tenant Electric: The landlord pays for all services and the tenant is responsible for their usage of lights and electrical outlets in the space they occupy.
6. Negotiable or Upon Request: Used when the leasing contact does not provide the rent or service type.
7. TBD: To be determined; used for buildings for which no rent or service type is known, commonly utilized when the buildings are not yet built.
PROPERTY FACTS
| Total Space Available | 688 SF | Gross Leasable Area | 688 SF |
| Property Type | Retail | Year Built | 1953 |
| Property Subtype | Storefront | Parking Ratio | 1.45/1,000 SF |
| Total Space Available | 688 SF |
| Property Type | Retail |
| Property Subtype | Storefront |
| Gross Leasable Area | 688 SF |
| Year Built | 1953 |
| Parking Ratio | 1.45/1,000 SF |
ABOUT THE PROPERTY
High foot traffic count, visibility in the heart of PSU and national brands. The space is being updated with new interior and exterior paint, and commercial carpets. Conveniently located on NE corner of SW Hall St and SW 6th Ave in Portland Oregon. Portland State University has over 28,000 students, 6000 professors, managers, and administrative staff. This retail space benefits from heavy walking traffic to and from the various colleges, University Center and a multi-level student parking garage across street. The 688 sq. ft. space includes one on-site management parking spot. Adjacent is a restaurant, boutique coffee shop, and other businesses that serve the University population. Bring your national brand or small business dream. Terms and options are negotiable. Call or email listing broker for details.
- Bus Line
- Commuter Rail
- Metro/Subway
- Signage
- Signalized Intersection
NEARBY MAJOR RETAILERS
Presented by
688 sq ft Retail Space Available- 1915 SW 6th | 1915 SW 6th Ave
Hmm, there seems to have been an error sending your message. Please try again.
Thanks! Your message was sent.
