Log In/Sign Up
Your email has been sent.
1919 Sherman Ave - North Chicago Special Use Investment 23,638 SF Specialty Building Offered at $1,369,710 CAD in North Chicago, IL 60064



Investment Highlights
- Equipped for 21 plus Residents
- 13 Bathrooms
- Gym/Rec Center
- Commercial Kitchen
Executive Summary
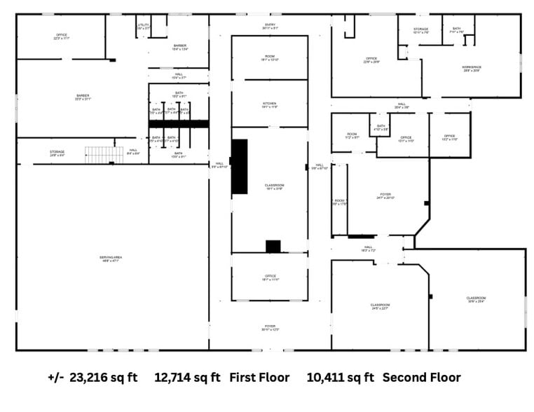
FOR SALE: 23,216 SQ FT TURNKEY COMMERCIAL FACILITY – ENDLESS POTENTIAL USES?? Ideal for Group Home, Transitional Living, Vocational School, or Care Facility
Unlock the potential of this expansive 23,216 sq ft commercial property (R3 Zoning) situated on .75 acres with 40 dedicated parking spaces. This multi-purpose facility offers two full floors of thoughtfully designed space, tailored to accommodate a wide range of uses including for-profit and non-profit group residential living, nursing center, vocational or transitional housing programs, and more.
?? First Floor – 12,714 SQ FT
Gym / Recreation Room with 22-ft Ceilings for wellness, physical therapy, or group activities
Fully Equipped Commercial Kitchen:
Triple basin sink, range hood, grease interceptor
Multiple Bathrooms:
Two hallway bathrooms with 3 stalls each
Three private half baths
Office Space & Specialized Rooms:
Dedicated Salon / Training Room with 3 plumbed sinks
Multiple private offices, laundry, and mechanical rooms
?? Second Floor – 10,411 SQ FT
10 Bedrooms / 9 Bathrooms / 24 Closets – perfect for transitional living or staff housing
Common Kitchen with stove, hood, and sink
2 Staff Rooms & Multiple Utility Rooms
Includes slop sink and furnace rooms
Equipped with 7 Furnaces for zoned comfort and climate control
?? Property Features
Roof replaced in 2022
Fire safety sprinkler system throughout
Ample plumbing and HVAC infrastructure for institutional or residential use
Clean, well-maintained and move-in ready
This property presents a rare opportunity for investors, mission-driven organizations, or developers to repurpose a versatile facility with significant square footage, ideal infrastructure, and convenient parking.
Unlock the potential of this expansive 23,216 sq ft commercial property (R3 Zoning) situated on .75 acres with 40 dedicated parking spaces. This multi-purpose facility offers two full floors of thoughtfully designed space, tailored to accommodate a wide range of uses including for-profit and non-profit group residential living, nursing center, vocational or transitional housing programs, and more.
?? First Floor – 12,714 SQ FT
Gym / Recreation Room with 22-ft Ceilings for wellness, physical therapy, or group activities
Fully Equipped Commercial Kitchen:
Triple basin sink, range hood, grease interceptor
Multiple Bathrooms:
Two hallway bathrooms with 3 stalls each
Three private half baths
Office Space & Specialized Rooms:
Dedicated Salon / Training Room with 3 plumbed sinks
Multiple private offices, laundry, and mechanical rooms
?? Second Floor – 10,411 SQ FT
10 Bedrooms / 9 Bathrooms / 24 Closets – perfect for transitional living or staff housing
Common Kitchen with stove, hood, and sink
2 Staff Rooms & Multiple Utility Rooms
Includes slop sink and furnace rooms
Equipped with 7 Furnaces for zoned comfort and climate control
?? Property Features
Roof replaced in 2022
Fire safety sprinkler system throughout
Ample plumbing and HVAC infrastructure for institutional or residential use
Clean, well-maintained and move-in ready
This property presents a rare opportunity for investors, mission-driven organizations, or developers to repurpose a versatile facility with significant square footage, ideal infrastructure, and convenient parking.
Property Facts
| Price | $1,369,710 CAD | Building Class | C |
| Price Per SF | $57.95 CAD | Lot Size | 0.75 AC |
| Sale Type | Investment or Owner User | Building Size | 23,638 SF |
| Property Type | Specialty | No. Stories | 2 |
| Property Subtype | Schools | Year Built | 1970 |
| Zoning | R-3 | ||
| Price | $1,369,710 CAD |
| Price Per SF | $57.95 CAD |
| Sale Type | Investment or Owner User |
| Property Type | Specialty |
| Property Subtype | Schools |
| Building Class | C |
| Lot Size | 0.75 AC |
| Building Size | 23,638 SF |
| No. Stories | 2 |
| Year Built | 1970 |
| Zoning | R-3 |
1 1
Fairly walkable
50/100
Moderately drivable
70/100
Limited public transit
20/100
Fairly bikeable
50/100
Property Taxes
| Parcel Number | 12-05-106-042 | Improvements Assessment | $321,579 CAD |
| Land Assessment | $43,507 CAD | Total Assessment | $365,086 CAD |
Property Taxes
Parcel Number
12-05-106-042
Land Assessment
$43,507 CAD
Improvements Assessment
$321,579 CAD
Total Assessment
$365,086 CAD
1 of 19
Videos
Matterport 3D Exterior
Matterport 3D Tour
Photos
Street View
Street
Map
1 of 1
Presented by
1919 Sherman Ave - North Chicago Special Use Investment
Already a member? Log In
Hmm, there seems to have been an error sending your message. Please try again.
Thanks! Your message was sent.
