Log In/Sign Up
Your email has been sent.
192-206 Broad Street Rd - Manakin Crossing 10 Acres of Commercial Land Offered at $5,001,996 CAD in Manakin Sabot, VA 23103



Investment Highlights
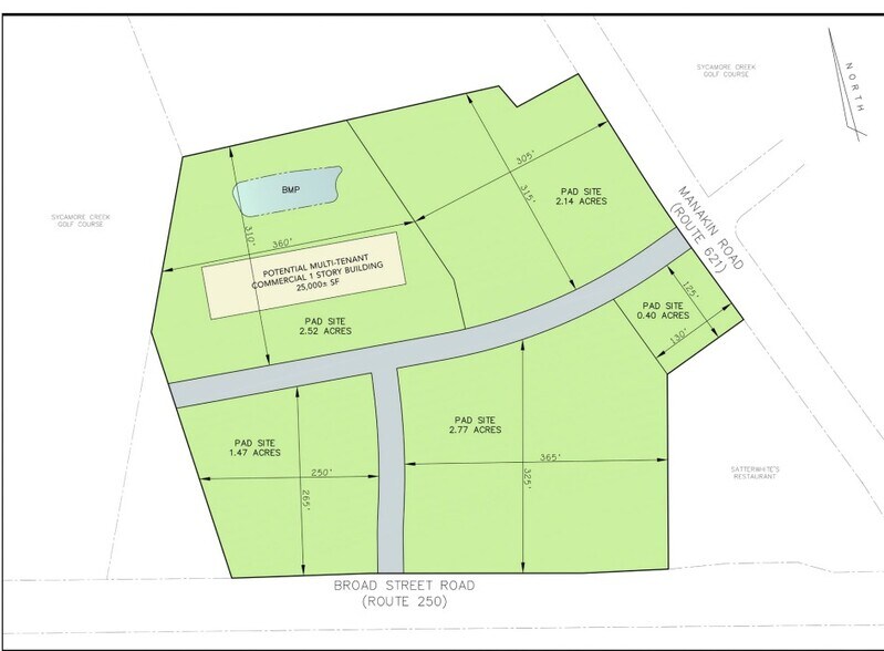
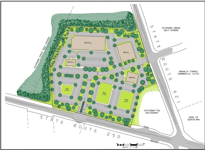
- Zoned B-1 - 10 Acres
- Ready for development
- Sewer and Water on West Broad St and Manakin Road (Route 250/621)
- Joint Venture Proposals Considered
Executive Summary
Water/sewer stubs. Storm sewer and drainage.
Property Facts
1 Lot Available
Lot
| Price | $5,001,996 CAD | Lot Size | 10.00 AC |
| Price Per AC | $500,199.64 CAD |
| Price | $5,001,996 CAD |
| Price Per AC | $500,199.64 CAD |
| Lot Size | 10.00 AC |
This site is in fast growing Goochland County, VA ready for development. 10+/- acres priced at $3,650,000, zoned B-1 and utilities to site as well. . POD & VDOT is ready for approval or can be changed. Also zoned for Nursing Homes
Description
Located off of Broad St (Rt 250) and Manakin road, this property has stubs available to connect to water and sewer utilities. Storm sewer and drainage are already on site. All 10 acres zoned for B-1.
1 1
Somewhat walkable
20/100
Exceptionally drivable
100/100
Somewhat bikeable
30/100
1 of 4
Videos
Matterport 3D Exterior
Matterport 3D Tour
Photos
Street View
Street
Map
1 of 1
Presented by
192-206 Broad Street Rd - Manakin Crossing
Already a member? Log In
Hmm, there seems to have been an error sending your message. Please try again.
Thanks! Your message was sent.
