Log In/Sign Up
Your email has been sent.
1938 Phillips Way - 1938 & 1942 Phillips Way 0.13 Acres of Commercial Land Offered at $812,910 CAD in Los Angeles, CA 90042



INVESTMENT HIGHLIGHTS
- Two Side-by-Side Hillside Lots – Ideal for building two custom homes or a private compound
- Strong Development Potential – Perfect for builders, investors, or end-users
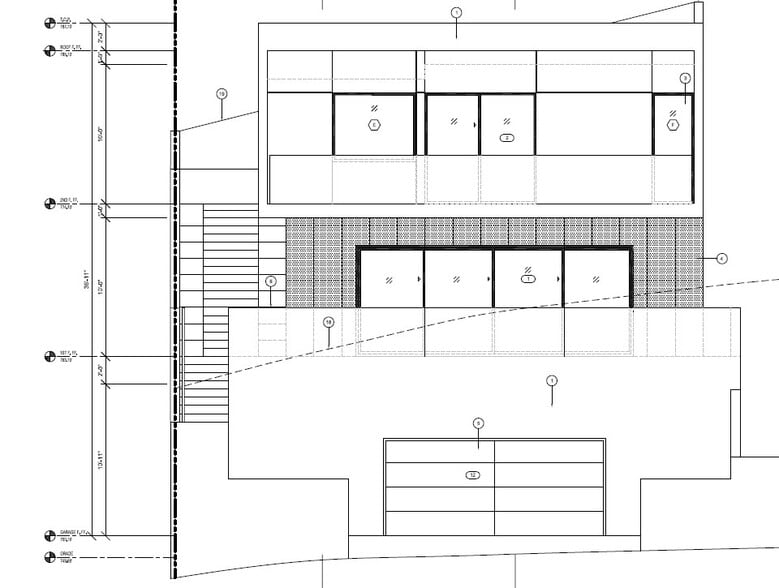
- Conceptual Plans Included (Not yet submitted):
EXECUTIVE SUMMARY
Scenic Hillside Development Opportunity – 1938 & 1942 Phillips Way, Highland Park
Seller may carry financing for up to 50% of the purchase price, subject to Buyer’s creditworthiness and Seller’s approval.
A prime opportunity for a developer or owner-user to build two custom homes in one of Northeast LA’s most picturesque hillside communities. Located in the desirable Highland Park area near Eagle Rock, 1938 and 1942 Phillips Way offer panoramic views stretching from Downtown Los Angeles to Palos Verdes—delivering a rare blend of serenity, privacy, and proximity to the city.
The seller has conceptual drawings available for each parcel. 1938 Phillips Way is designed as a 3-bedroom, 3.5-bathroom home with a study room, attached 2-car garage, and approximately 1,800 square feet of living space. 1942 Phillips Way is envisioned as a 2-bedroom, 2.5-bathroom residence with an attached 2-car garage and approximately 1,280 square feet. Please note that these plans have not been submitted to or approved by the City of Los Angeles, allowing flexibility for customization or redesign.
Whether you’re looking to build a private hillside compound or two striking single-family homes, this dual-lot offering provides an exceptional canvas with scale, views, and development potential in one of LA’s most sought-after neighborhoods.y.
Seller may carry financing for up to 50% of the purchase price, subject to Buyer’s creditworthiness and Seller’s approval.
A prime opportunity for a developer or owner-user to build two custom homes in one of Northeast LA’s most picturesque hillside communities. Located in the desirable Highland Park area near Eagle Rock, 1938 and 1942 Phillips Way offer panoramic views stretching from Downtown Los Angeles to Palos Verdes—delivering a rare blend of serenity, privacy, and proximity to the city.
The seller has conceptual drawings available for each parcel. 1938 Phillips Way is designed as a 3-bedroom, 3.5-bathroom home with a study room, attached 2-car garage, and approximately 1,800 square feet of living space. 1942 Phillips Way is envisioned as a 2-bedroom, 2.5-bathroom residence with an attached 2-car garage and approximately 1,280 square feet. Please note that these plans have not been submitted to or approved by the City of Los Angeles, allowing flexibility for customization or redesign.
Whether you’re looking to build a private hillside compound or two striking single-family homes, this dual-lot offering provides an exceptional canvas with scale, views, and development potential in one of LA’s most sought-after neighborhoods.y.
DATA ROOM Click Here to Access
PROPERTY FACTS
| Price | $812,910 CAD | Property Type | Land |
| Sale Type | Investment or Owner User | Property Subtype | Commercial |
| No. Lots | 1 | Total Lot Size | 0.13 AC |
| Zoning | LARE11 - Residential Estate | ||
| Price | $812,910 CAD |
| Sale Type | Investment or Owner User |
| No. Lots | 1 |
| Property Type | Land |
| Property Subtype | Commercial |
| Total Lot Size | 0.13 AC |
| Zoning | LARE11 - Residential Estate |
1 LOT AVAILABLE
Lot 8
| Price | $812,910 CAD | Lot Size | 0.13 AC |
| Price Per AC | $6,331,173.62 CAD |
| Price | $812,910 CAD |
| Price Per AC | $6,331,173.62 CAD |
| Lot Size | 0.13 AC |
Scenic Hillside Development Opportunity – 1938 & 1942 Phillips Way, Highland Park A prime opportunity for a developer or owner-user to build two custom homes in the desirable Highland Park area near Eagle Rock Seller may carry financing for up to 50%
1 1
PROPERTY TAXES
| Parcel Number | 5479-006-002 | Improvements Assessment | $0 CAD |
| Land Assessment | $144,335 CAD | Total Assessment | $144,335 CAD |
PROPERTY TAXES
Parcel Number
5479-006-002
Land Assessment
$144,335 CAD
Improvements Assessment
$0 CAD
Total Assessment
$144,335 CAD
1 of 22
VIDEOS
MATTERPORT 3D EXTERIOR
MATTERPORT 3D TOUR
PHOTOS
STREET VIEW
STREET
MAP
1 of 1
Presented by
1938 Phillips Way - 1938 & 1942 Phillips Way
Already a member? Log In
Hmm, there seems to have been an error sending your message. Please try again.
Thanks! Your message was sent.
