Your email has been sent.
Highlights
- +/- 6,897 SF freestanding medical office building
- Ideal location for physicians, specialists, or healthcare providers
- Available for occupancy June 2026
All Available Space(1)
Display Rental Rate as
- Space
- Size
- Term
- Rental Rate
- Space Use
- Build-Out
- Available
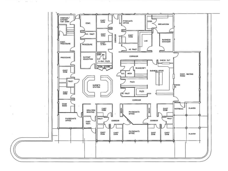
This freestanding medical office building, totaling approximately 6,897 square feet, is currently occupied, but will be available for occupancy by June 2026. The building is well configured for medical use with an efficient clinical layout centered around a large nurses’ station and multiple patient care areas. The floor plan includes numerous exam rooms, procedure rooms, physicians’ offices, a lab area, X-ray space, patient education room, transcription/work areas, file storage, and administrative offices, including a business office and manager’s office. The facility also provides multiple restrooms, a staff breakroom, and ample storage areas, allowing for efficient patient flow and staff operations. The property features a dedicated patient waiting area with reception and check-out, along with several interior corridors that separate clinical, administrative, and patient circulation areas. Strategically located in Midtown Columbus, the building sits within walking distance of Piedmont Columbus Regional Midtown Hospital and directly across from the hospital’s emergency department, making it an ideal location for physicians, specialists, or healthcare providers seeking close proximity to the hospital campus. The landlord is open to discussing tenant improvement allowances or modifications to allow a new tenant to update or reconfigure the space to meet their specific operational needs.
- Listed rate may not include certain utilities, building services and property expenses
- Fits 17 - 53 People
| Space | Size | Term | Rental Rate | Space Use | Build-Out | Available |
| 1st Floor | 6,897 SF | Negotiable | Upon Request Upon Request Upon Request Upon Request | Office | - | 2026-06-01 |
1st Floor
| Size |
| 6,897 SF |
| Term |
| Negotiable |
| Rental Rate |
| Upon Request Upon Request Upon Request Upon Request |
| Space Use |
| Office |
| Build-Out |
| - |
| Available |
| 2026-06-01 |
1st Floor
| Size | 6,897 SF |
| Term | Negotiable |
| Rental Rate | Upon Request |
| Space Use | Office |
| Build-Out | - |
| Available | 2026-06-01 |
This freestanding medical office building, totaling approximately 6,897 square feet, is currently occupied, but will be available for occupancy by June 2026. The building is well configured for medical use with an efficient clinical layout centered around a large nurses’ station and multiple patient care areas. The floor plan includes numerous exam rooms, procedure rooms, physicians’ offices, a lab area, X-ray space, patient education room, transcription/work areas, file storage, and administrative offices, including a business office and manager’s office. The facility also provides multiple restrooms, a staff breakroom, and ample storage areas, allowing for efficient patient flow and staff operations. The property features a dedicated patient waiting area with reception and check-out, along with several interior corridors that separate clinical, administrative, and patient circulation areas. Strategically located in Midtown Columbus, the building sits within walking distance of Piedmont Columbus Regional Midtown Hospital and directly across from the hospital’s emergency department, making it an ideal location for physicians, specialists, or healthcare providers seeking close proximity to the hospital campus. The landlord is open to discussing tenant improvement allowances or modifications to allow a new tenant to update or reconfigure the space to meet their specific operational needs.
- Listed rate may not include certain utilities, building services and property expenses
- Fits 17 - 53 People
Property Overview
Strategically located in Midtown Columbus, the building sits within walking distance of Piedmont Columbus Regional Midtown Hospital and directly across from the hospital’s emergency department, making it an ideal location for physicians, specialists, or healthcare providers seeking close proximity to the hospital campus.
- Banking
- Bus Line
- Convenience Store
- Restaurant
Property Facts
Select Tenants
- Floor
- Tenant Name
- Industry
- 1st
- Internal Medicine Assoc
- Health Care and Social Assistance
Presented by
1942 North Ave
Hmm, there seems to have been an error sending your message. Please try again.
Thanks! Your message was sent.



