Your email has been sent.
Park Highlights
- Prime industrial location near Aventura, North Miami Beach, and Downtown Miami, with seamless access to Interstate 95 and Florida’s Turnpike.
- Ideal for e-commerce, contractor storage, specialty wholesalers, showrooms, and service-based users seeking functional, attractive workspaces.
- Surrounded by thriving residential neighborhoods and local amenities, providing a built-in customer base and strong regional synergy.
- Efficient warehouse units with a mix of dock-high and street-level access points are accessible from Ives Diary Road and NE 10th Avenue.
- Renovated three-story office building offers flexible modern suites in various layouts, ranging from 500 to 4,000+ SF, with assigned parking.
- Connectivity is unmatched, 15 miles from Downtown Miami and minutes from Port Everglades and Fort Lauderdale–Hollywood International Airport.
Park Facts
| Total Space Available | 33,294 SF | Max. Contiguous | 15,926 SF |
| Min. Divisible | 1,840 SF | Park Type | Industrial Park |
| Total Space Available | 33,294 SF |
| Min. Divisible | 1,840 SF |
| Max. Contiguous | 15,926 SF |
| Park Type | Industrial Park |
Display Rental Rate as
- Space
- Size
- Term
- Rental Rate
- Space Use
- Build-Out
- Available
Great Warehouse Unit within a fully secured park. 16 clear and oversize street level door.
- Listed rate may not include certain utilities, building services and property expenses
- 1 Drive Bay
- Includes 322 SF of dedicated office space
- Space is in Excellent Condition
Fully air-conditioned warehouse space. Ready for immediate occupancy within a secure business park.
- Lease rate does not include utilities, property expenses or building services
- Space is in Excellent Condition
- 1 Drive Bay
| Space | Size | Term | Rental Rate | Space Use | Build-Out | Available |
| 1st Floor - 3C | 3,225 SF | Negotiable | $34.44 CAD/SF/YR $2.87 CAD/SF/MO $111,061 CAD/YR $9,255 CAD/MO | Industrial | Full Build-Out | Now |
| 1st Floor - B | 3,368-6,593 SF | 1-10 Years | $26.17 CAD/SF/YR $2.18 CAD/SF/MO $172,555 CAD/YR $14,380 CAD/MO | Industrial | Full Build-Out | Now |
19591 NE 10th Ave - 1st Floor - 3C
19591 NE 10th Ave - 1st Floor - B
- Space
- Size
- Term
- Rental Rate
- Space Use
- Build-Out
- Available
Both Dock High and Street Level loading doors. Rare +/-20' clear warehouse in North Miami, new office renovations, within a fully secure park.
- Lease rate does not include utilities, property expenses or building services
- 2 Drive Ins
- Can be combined with additional space(s) for up to 15,926 SF of adjacent space
- Includes 1,441 SF of dedicated office space
- Space is in Excellent Condition
- 1 Loading Dock
- Listed rate may not include certain utilities, building services and property expenses
- 1 Drive Bay
- Can be combined with additional space(s) for up to 15,926 SF of adjacent space
- Includes 1,500 SF of dedicated office space
- Space is in Excellent Condition
- 1 Loading Dock
| Space | Size | Term | Rental Rate | Space Use | Build-Out | Available |
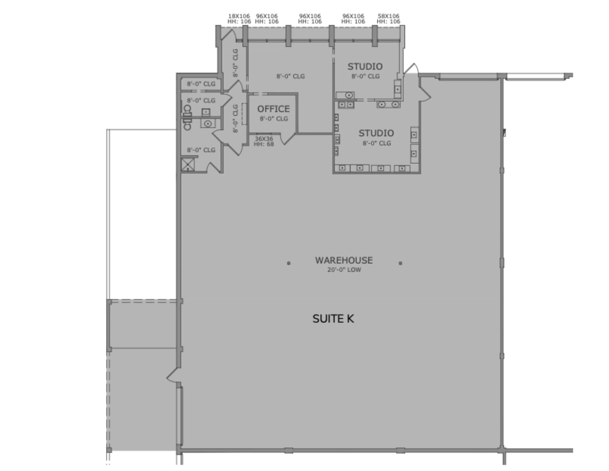
| 1st Floor - G | 9,658 SF | 3 Years | $24.80 CAD/SF/YR $2.07 CAD/SF/MO $239,470 CAD/YR $19,956 CAD/MO | Industrial | Full Build-Out | Now |
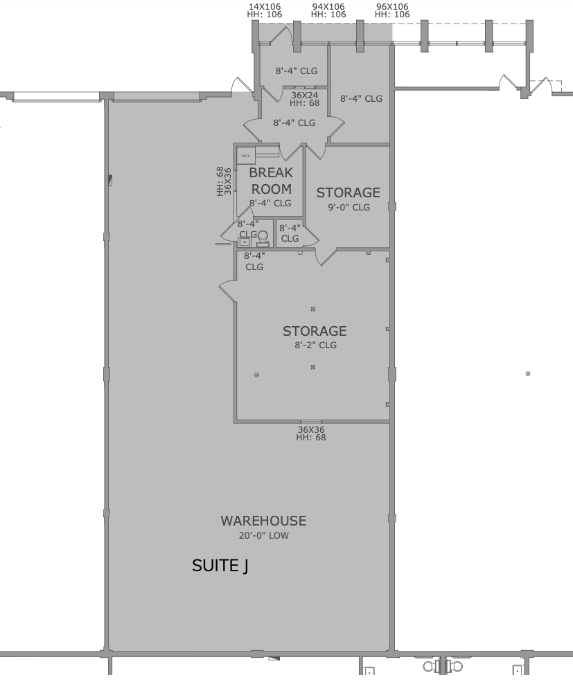
| 1st Floor - K | 6,268 SF | Negotiable | $34.44 CAD/SF/YR $2.87 CAD/SF/MO $215,854 CAD/YR $17,988 CAD/MO | Industrial | Full Build-Out | Now |
19597 NE 10th Ave - 1st Floor - G
19597 NE 10th Ave - 1st Floor - K
- Space
- Size
- Term
- Rental Rate
- Space Use
- Build-Out
- Available
- Listed rate may not include certain utilities, building services and property expenses
- 1 Drive Bay
| Space | Size | Term | Rental Rate | Space Use | Build-Out | Available |
| 1st Floor - H | 3,200 SF | 3 Years | $34.44 CAD/SF/YR $2.87 CAD/SF/MO $110,200 CAD/YR $9,183 CAD/MO | Industrial | Full Build-Out | Now |
19599 NE 10th Ave - 1st Floor - H
- Space
- Size
- Term
- Rental Rate
- Space Use
- Build-Out
- Available
Great Warehouse Unit within a fully secured park. 16 clear and oversize street level door.
- Listed rate may not include certain utilities, building services and property expenses
- 1 Drive Bay
- Includes 322 SF of dedicated office space
- Space is in Excellent Condition
Fully air-conditioned warehouse space. Ready for immediate occupancy within a secure business park.
- Lease rate does not include utilities, property expenses or building services
- Space is in Excellent Condition
- 1 Drive Bay
| Space | Size | Term | Rental Rate | Space Use | Build-Out | Available |
| 1st Floor - 3C | 3,225 SF | Negotiable | $34.44 CAD/SF/YR $2.87 CAD/SF/MO $111,061 CAD/YR $9,255 CAD/MO | Industrial | Full Build-Out | Now |
| 1st Floor - B | 3,368-6,593 SF | 1-10 Years | $26.17 CAD/SF/YR $2.18 CAD/SF/MO $172,555 CAD/YR $14,380 CAD/MO | Industrial | Full Build-Out | Now |
19591 NE 10th Ave - 1st Floor - 3C
19591 NE 10th Ave - 1st Floor - B
- Space
- Size
- Term
- Rental Rate
- Space Use
- Build-Out
- Available
Both Dock High and Street Level loading doors. Rare +/-20' clear warehouse in North Miami, new office renovations, within a fully secure park.
- Lease rate does not include utilities, property expenses or building services
- 2 Drive Ins
- Can be combined with additional space(s) for up to 15,926 SF of adjacent space
- Includes 1,441 SF of dedicated office space
- Space is in Excellent Condition
- 1 Loading Dock
- Listed rate may not include certain utilities, building services and property expenses
- 1 Drive Bay
- Can be combined with additional space(s) for up to 15,926 SF of adjacent space
- Includes 1,500 SF of dedicated office space
- Space is in Excellent Condition
- 1 Loading Dock
| Space | Size | Term | Rental Rate | Space Use | Build-Out | Available |
| 1st Floor - G | 9,658 SF | 3 Years | $24.80 CAD/SF/YR $2.07 CAD/SF/MO $239,470 CAD/YR $19,956 CAD/MO | Industrial | Full Build-Out | Now |
| 1st Floor - K | 6,268 SF | Negotiable | $34.44 CAD/SF/YR $2.87 CAD/SF/MO $215,854 CAD/YR $17,988 CAD/MO | Industrial | Full Build-Out | Now |
19597 NE 10th Ave - 1st Floor - G
19597 NE 10th Ave - 1st Floor - K
- Space
- Size
- Term
- Rental Rate
- Space Use
- Build-Out
- Available
- Listed rate may not include certain utilities, building services and property expenses
- 1 Drive Bay
| Space | Size | Term | Rental Rate | Space Use | Build-Out | Available |
| 1st Floor - H | 3,200 SF | 3 Years | $34.44 CAD/SF/YR $2.87 CAD/SF/MO $110,200 CAD/YR $9,183 CAD/MO | Industrial | Full Build-Out | Now |
19599 NE 10th Ave - 1st Floor - H
- Space
- Size
- Term
- Rental Rate
- Space Use
- Build-Out
- Available
Interior bathroom, kitchenette, large conference rooms, and offices.
- Fully Built-Out as Standard Office
- Fits 5 - 15 People
- Mostly Open Floor Plan Layout
Office space totaling 2,510 square feet. Within Aventura Industrial Park, these 3rd-floor spaces offer ample parking, private restrooms, reception, conference rooms, and private offices. In the process of a full remodel, space is available immediately for occupancy.
- Listed rate may not include certain utilities, building services and property expenses
- Mostly Open Floor Plan Layout
- Conference Rooms
- Central Air Conditioning
- Balcony
- Corner Space
- Fully Built-Out as Standard Office
- Fits 7 - 21 People
- Space is in Excellent Condition
- Reception Area
- Private Restrooms
- Drop Ceilings
| Space | Size | Term | Rental Rate | Space Use | Build-Out | Available |
| 2nd Floor, Ste 200 | 1,840 SF | 1-10 Years | Upon Request Upon Request Upon Request Upon Request | Office | Full Build-Out | Now |
| 3rd Floor, Ste 300 | 2,510 SF | 1-10 Years | $36.50 CAD/SF/YR $3.04 CAD/SF/MO $91,624 CAD/YR $7,635 CAD/MO | Office | Full Build-Out | Now |
19501 NE 10th Ave - 2nd Floor - Ste 200
19501 NE 10th Ave - 3rd Floor - Ste 300
19591 NE 10th Ave - 1st Floor - 3C
| Size | 3,225 SF |
| Term | Negotiable |
| Rental Rate | $34.44 CAD/SF/YR |
| Space Use | Industrial |
| Build-Out | Full Build-Out |
| Available | Now |
Great Warehouse Unit within a fully secured park. 16 clear and oversize street level door.
- Listed rate may not include certain utilities, building services and property expenses
- Includes 322 SF of dedicated office space
- 1 Drive Bay
- Space is in Excellent Condition
19591 NE 10th Ave - 1st Floor - B
| Size | 3,368-6,593 SF |
| Term | 1-10 Years |
| Rental Rate | $26.17 CAD/SF/YR |
| Space Use | Industrial |
| Build-Out | Full Build-Out |
| Available | Now |
Fully air-conditioned warehouse space. Ready for immediate occupancy within a secure business park.
- Lease rate does not include utilities, property expenses or building services
- 1 Drive Bay
- Space is in Excellent Condition
19597 NE 10th Ave - 1st Floor - G
| Size | 9,658 SF |
| Term | 3 Years |
| Rental Rate | $24.80 CAD/SF/YR |
| Space Use | Industrial |
| Build-Out | Full Build-Out |
| Available | Now |
Both Dock High and Street Level loading doors. Rare +/-20' clear warehouse in North Miami, new office renovations, within a fully secure park.
- Lease rate does not include utilities, property expenses or building services
- Includes 1,441 SF of dedicated office space
- 2 Drive Ins
- Space is in Excellent Condition
- Can be combined with additional space(s) for up to 15,926 SF of adjacent space
- 1 Loading Dock
19597 NE 10th Ave - 1st Floor - K
| Size | 6,268 SF |
| Term | Negotiable |
| Rental Rate | $34.44 CAD/SF/YR |
| Space Use | Industrial |
| Build-Out | Full Build-Out |
| Available | Now |
- Listed rate may not include certain utilities, building services and property expenses
- Includes 1,500 SF of dedicated office space
- 1 Drive Bay
- Space is in Excellent Condition
- Can be combined with additional space(s) for up to 15,926 SF of adjacent space
- 1 Loading Dock
19599 NE 10th Ave - 1st Floor - H
| Size | 3,200 SF |
| Term | 3 Years |
| Rental Rate | $34.44 CAD/SF/YR |
| Space Use | Industrial |
| Build-Out | Full Build-Out |
| Available | Now |
- Listed rate may not include certain utilities, building services and property expenses
- 1 Drive Bay
19501 NE 10th Ave - 2nd Floor - Ste 200
| Size | 1,840 SF |
| Term | 1-10 Years |
| Rental Rate | Upon Request |
| Space Use | Office |
| Build-Out | Full Build-Out |
| Available | Now |
Interior bathroom, kitchenette, large conference rooms, and offices.
- Fully Built-Out as Standard Office
- Mostly Open Floor Plan Layout
- Fits 5 - 15 People
19501 NE 10th Ave - 3rd Floor - Ste 300
| Size | 2,510 SF |
| Term | 1-10 Years |
| Rental Rate | $36.50 CAD/SF/YR |
| Space Use | Office |
| Build-Out | Full Build-Out |
| Available | Now |
Office space totaling 2,510 square feet. Within Aventura Industrial Park, these 3rd-floor spaces offer ample parking, private restrooms, reception, conference rooms, and private offices. In the process of a full remodel, space is available immediately for occupancy.
- Listed rate may not include certain utilities, building services and property expenses
- Fully Built-Out as Standard Office
- Mostly Open Floor Plan Layout
- Fits 7 - 21 People
- Conference Rooms
- Space is in Excellent Condition
- Central Air Conditioning
- Reception Area
- Balcony
- Private Restrooms
- Corner Space
- Drop Ceilings
Matterport 3D Tour
Park Overview
Aventura Industrial Park is a versatile multi-building business center at 19951–19599 Northeast 10th Avenue. Offering dynamic workspaces to meet the needs of today’s growing businesses, the property is near some of Miami’s top commercial neighborhoods, including Aventura, Miami Gardens, and North Miami Beach. Dedicated small-bay warehouse buildings offer flexible units ranging from 500 to 20,000+ square feet. Many include built-in office or showroom spaces ideal for e-commerce operations, contractor storage, specialty wholesalers, and service-based businesses. Units come stocked with a 3-phase power supply, and tenants benefit from dock-high and street-level loading options for maximum logistical efficiency. Moreover, the property features a recently renovated three-story office building at the park’s entrance, offering professional spaces ranging from 500 to over 4,000 square feet. With multiple layout options, fresh interior buildouts, and assigned parking, these office suites are ideal for businesses seeking a polished and functional environment in a high-visibility location. Aventura Industrial Park offers abundant on-site parking and is surrounded by large residential communities, creating a built-in customer base. With nearby amenities, including shopping, dining, and everyday services, tenants enjoy convenience inside and outside the workplace. This well-connected campus provides seamless access to Interstate 95 and Florida’s Turnpike, just 15 miles from Downtown Miami and minutes from Port Everglades and Fort Lauderdale-Hollywood International Airport (FLL). Whether launching, relocating, or expanding a business, Aventura Industrial Park offers the flexibility and access that operations need to thrive.
Park Brochure
About Miami Gardens
Well connected by the Florida Turnpike and Interstate 95, Miami Gardens is a dynamic industrial area in South Florida. Almost all of Miami-Dade and Broward counties are within an hour’s drive of Miami Gardens, making the area popular for logistics occupiers. Large industrial tenants include Amazon, UPS, and GLB Trucking.
Because the area is central to the region and has available developable land, construction of new industrial space has been prominent here in the past decade, keeping the area affordable. Miami Gardens offers a significant discount to its northern neighbor, Southeast Broward County, one of the most expensive industrial submarkets in the region.
Demographics
Regional Accessibility
Nearby Amenities
Retail |
||
|---|---|---|
| Bank of America | Bank | 16 min walk |
Hotels |
|
|---|---|
| aloft Hotel |
207 rooms
8 min drive
|
| Hilton |
208 rooms
10 min drive
|
| JW Marriott |
685 rooms
10 min drive
|
| SpringHill Suites |
168 rooms
14 min drive
|
| Le Meridien |
245 rooms
15 min drive
|
Leasing Team
Sebastian Juncadella, CEO
In recent years, Sebastian has and continues to represent many institutional landlords such as USAA, ARA, Seagis, Terreno, Lincoln Property, PGIM, TA Realty, Everwest, Longpoint, and Foundry, among others. A few of his most notable transactions of over 100,000 SF completed between 2020 and 2022 include
With regard to new industrial development, Sebastian has been involved in over 3 million square feet of speculative products across South Florida. He has also dedicated his efforts to second-generation leasing, having completed over 115 Class B & C transactions since 2017. On the office side, Sebastian has represented notable tenants such as Facebook for their Latin American headquarters and office landlords such as TA Realty.
Between 2013 and 2016, Sebastian was involved in several notable transactions including the seller representation of the $28 million sale of 44 acres in Hialeah and the $54 million sale of two acres in Miami’s Edgewater neighborhood. Sebastian also participated in the deal that resulted in the first Amazon.com lease in Miami, for 336,000 SF on behalf of KTR Capital Partners. He also worked on two of Prudential’s successful development projects, Transal Logistics in Doral and Centergate in Hialeah, totaling close to 1 million SF of state-of-the-art industrial space.
In 2022, Sebastian achieved the coveted SIOR industrial designation awarded by the Society of Industrial and Office Realtors® to top global producers in the field of industrial real estate from among brokers in 29 countries. Sebastian was the 2021 President of CIASF (Commercial Industrial Association of South Florida) founded in 1980, being the youngest leader in the organization’s history. As Director of Membership in 2015-2016, Sebastian helped double CIASF’s membership. He currently sits on the association’s Board of Directors.
Sebastian graduated with distinction from Boston College with dual majors in Finance and Philosophy, having completed his international business studies at Universitat Pompei Fabra in Barcelona, Spain. After graduation, Sebastian volunteered for a year in Kosrae, Micronesia, teaching English, math, and science to high school students with WorldTeach, Harvard University’s student-run volunteer service program in developing countries.
Sebastian is a volunteer and supporter of Habitat for Humanity of Greater Miami, joining its efforts in providing affordable housing to deserving heads of households in our local community. Sebastian is a member of the Belen Jesuit Preparatory Alumni Association, Class of 2008.
Fluent in English and Spanish, Sebastian is an avid angler, and member of the Proficient Fishing Team and Coral Reef Yacht Club in Coconut Grove, where he lives with his wife.
Richard Sanz, Sales Associate/Advisor
About the Owner
Other Properties in the EAST CAPITAL PARTNERS Portfolio
Presented by
Aventura Industrial Park | Miami, FL 33179
Hmm, there seems to have been an error sending your message. Please try again.
Thanks! Your message was sent.
















