Log In/Sign Up
Your email has been sent.
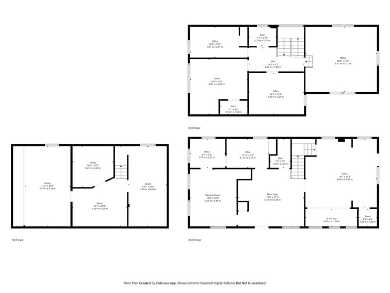
196 King St 3,527 SF 100% Leased Office Building St Catharines, ON L2R 3J7 $699,900 CAD ($198.44 CAD/SF)



Investment Highlights
- 8 on site parking spots
- Downtown St. Catharines - High traffic flow
- M2 Zoning
Executive Summary
Prime opportunity to acquire a downtown property offering a modern, turn-key mixed-use building with exceptional street exposure, rare private
on-site parking (8 spaces), and outstanding long-term development potential. Ideally suited for investors or owner-operators, this versatile asset combines
strong commercial and residential components with flexible M2 zoning, supporting a wide range of uses including commercial, residential, or
mixed-use development. The property features a welcoming wrap-around porch that enhances curb appeal, while the main level offers a functional, adaptable layout suitable for a variety of professional uses. Multiple exterior entrances provide excellent flexibility for single or multi-tenant configurations, offering exceptional accessibility and future adaptability. Positioned on a high-traffic downtown corridor surrounded by established businesses, restaurants, cafes, and local amenities, the property benefits from consistent exposure and strong foot traffic. Just steps from the Meridian Centre, FirstOntario Performing Arts Centre, transit hub, GO Station, and with quick access to Highway 406 and the QEW, the location offers unmatched connectivity across the region. Whether expanding an investment portfolio or securing a strategic location for a growing business, this property delivers exceptional visibility, versatility, and future development potential in one of the city's most desirable downtown settings.
on-site parking (8 spaces), and outstanding long-term development potential. Ideally suited for investors or owner-operators, this versatile asset combines
strong commercial and residential components with flexible M2 zoning, supporting a wide range of uses including commercial, residential, or
mixed-use development. The property features a welcoming wrap-around porch that enhances curb appeal, while the main level offers a functional, adaptable layout suitable for a variety of professional uses. Multiple exterior entrances provide excellent flexibility for single or multi-tenant configurations, offering exceptional accessibility and future adaptability. Positioned on a high-traffic downtown corridor surrounded by established businesses, restaurants, cafes, and local amenities, the property benefits from consistent exposure and strong foot traffic. Just steps from the Meridian Centre, FirstOntario Performing Arts Centre, transit hub, GO Station, and with quick access to Highway 406 and the QEW, the location offers unmatched connectivity across the region. Whether expanding an investment portfolio or securing a strategic location for a growing business, this property delivers exceptional visibility, versatility, and future development potential in one of the city's most desirable downtown settings.
Property Facts
Sale Type
Investment or Owner User
Property Type
Building Size
3,527 SF
Building Class
C
Year Built
1870
Price
$699,900 CAD
Price Per SF
$198.44 CAD
Percent Leased
100%
Building Height
2 Stories
Typical Floor Size
1,764 SF
Building FAR
0.62
Lot Size
0.13 AC
Zoning
M2 - M2 zoning, supporting a wide range of uses including commercial, residential, or mixed-use development.
Parking
8 Spaces (2.27 Spaces per 1,000 SF Leased)
1 1
Exceptionally walkable
90/100
Very drivable
80/100
Exceptional public transit
100/100
Moderately bikeable
60/100
1 of 33
Videos
Matterport 3D Exterior
Matterport 3D Tour
Photos
Street View
Street
Map
1 of 1
Presented by
196 King St
Already a member? Log In
Hmm, there seems to have been an error sending your message. Please try again.
Thanks! Your message was sent.
