Log In/Sign Up
Your email has been sent.
1A Rickmansworth Rd 2,875 SF Retail Building Pinner HA5 3TE $3,073,945 CAD ($1,069.20 CAD/SF)



Investment Highlights
- Prominent Roadside Location.
- Fully Fitted Bar / Restaurant.
- Residential Apartment at First Floor (3 Bed).
- Situated in Pinner Green between the affluent areas of Pinner & Northwood.
- Car Park to Rear (16 Parking Spaces).
- Suitable for a variety of potential uses subject to planning.
Executive Summary
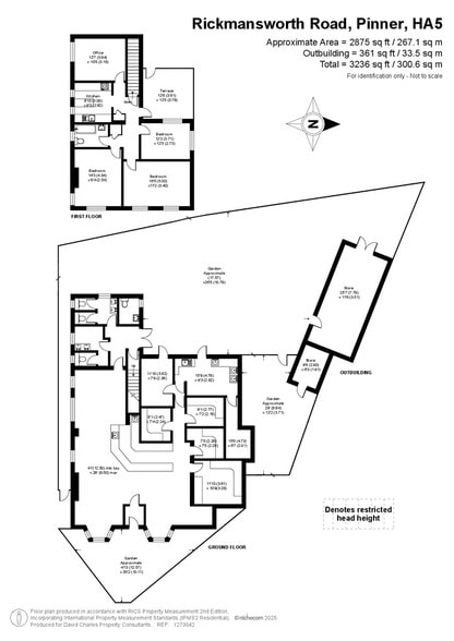
The site comprises of 7,804 sqft apex-shaped site with the existing building being situated to the front of the apex and a car park to the rear. The premises were a well-known local destination known as The Starling until 2008, after which the premises changed into a karaoke bar/restaurant that ceased trading in April 2025. Internally, the building comprises a fully fitted bar/restaurant with a kitchen and storeroom. The first floor is comprised of a 3-bedroom apartment.
The site is situated at the junction of Rickmansworth Road A404 and Cuckoo Hill B466, a main road interlinking Pinner to Northwood and Ruislip to Pinner. The property is opposite a secondary parade of shops to the north and is neighboured by residential to the east and south of the site.
Pinner Underground Station is 1.2 miles from the property, and Northwood Hills Underground Station is 0.9 miles away, providing links into central London in 38 minutes. By road, the A40 Western Avenue is 4.4 miles from the site, providing easy access to the M25 / M40.
The site presents various development / repurposing angles to suit a purchaser's needs. Subject to planning the site may be suited for intensified use as a restaurant/bar with an increased footprint to the rear of the site. The site may also suit residential use with several similar sites being developed in the vicinity in recent years. Our client's preference is for an unconditional sale and purchasers should take their independent advice in respect of the potential of the site.
Guide Price of £1,650,000.00 is sought for the freehold interest in the site.
It is envisaged that the site falls within the Sui Generis use class, although it has been trading as a restaurant since 2008. Prospective purchasers are likely to require planning consent for a change of use, subject to their proposed scheme. The site is not located within a conservation area and is neither locally nor nationally listed, potentially making it well-suited for redevelopment, subject to the necessary consents.
The site is situated at the junction of Rickmansworth Road A404 and Cuckoo Hill B466, a main road interlinking Pinner to Northwood and Ruislip to Pinner. The property is opposite a secondary parade of shops to the north and is neighboured by residential to the east and south of the site.
Pinner Underground Station is 1.2 miles from the property, and Northwood Hills Underground Station is 0.9 miles away, providing links into central London in 38 minutes. By road, the A40 Western Avenue is 4.4 miles from the site, providing easy access to the M25 / M40.
The site presents various development / repurposing angles to suit a purchaser's needs. Subject to planning the site may be suited for intensified use as a restaurant/bar with an increased footprint to the rear of the site. The site may also suit residential use with several similar sites being developed in the vicinity in recent years. Our client's preference is for an unconditional sale and purchasers should take their independent advice in respect of the potential of the site.
Guide Price of £1,650,000.00 is sought for the freehold interest in the site.
It is envisaged that the site falls within the Sui Generis use class, although it has been trading as a restaurant since 2008. Prospective purchasers are likely to require planning consent for a change of use, subject to their proposed scheme. The site is not located within a conservation area and is neither locally nor nationally listed, potentially making it well-suited for redevelopment, subject to the necessary consents.
Taxes & Operating Expenses (Actual - 2026) Click Here to Access |
Annual (CAD) | Annual Per SF (CAD) |
|---|---|---|
| Taxes |
-
|
-
|
| Operating Expenses |
-
|
-
|
| Total Expenses |
$99,999
|
$9.99
|
Taxes & Operating Expenses (Actual - 2026) Click Here to Access
| Taxes (CAD) | |
|---|---|
| Annual | - |
| Annual Per SF | - |
| Operating Expenses (CAD) | |
|---|---|
| Annual | - |
| Annual Per SF | - |
| Total Expenses (CAD) | |
|---|---|
| Annual | $99,999 |
| Annual Per SF | $9.99 |
Property Facts
Sale Type
Owner User
Property Type
Retail
Tenure
Freehold
Property Subtype
Bar
Building Size
2,875 SF
Year Built
1890
Price
$3,073,945 CAD
Price Per SF
$1,069.20 CAD
Tenancy
Single
Building Height
1 Story
Building FAR
0.32
Lot Size
0.21 AC
Parking
14 Spaces (4.87 Spaces per 1,000 SF Leased)
Frontage
33’ on Rickmansworth Road
1 1
Nearby Major Retailers
1 of 10
Videos
Matterport 3D Exterior
Matterport 3D Tour
Photos
Street View
Street
Map
1 of 1
Presented by
1A Rickmansworth Rd
Already a member? Log In
Hmm, there seems to have been an error sending your message. Please try again.
Thanks! Your message was sent.
