Your email has been sent.
2-6 Jefferson Way 4,800 - 10,000 SF of Retail Space Available in Thame OX9 3SZ



Highlights
- Convenience store / Children's Nursery / Trade Counter opportunities.
- Prominent Ring Road Location.
- Trade counter location.
- From 1,970 Sq ft to 10,000 Sq ft GIA.
- New conversion for summer 2026 delivery.
Space Availability (2)
Display Rental Rate as
- Space
- Size
- Term
- Rental Rate
- Type
| Space | Size | Term | Rental Rate | Rent Type | ||
| Ground, Ste Unit 1 | 4,800 SF | Negotiable | Upon Request Upon Request Upon Request Upon Request | TBD | ||
| Ground, Ste Unit 2 | 5,200 SF | Negotiable | Upon Request Upon Request Upon Request Upon Request | TBD |
Ground, Ste Unit 1
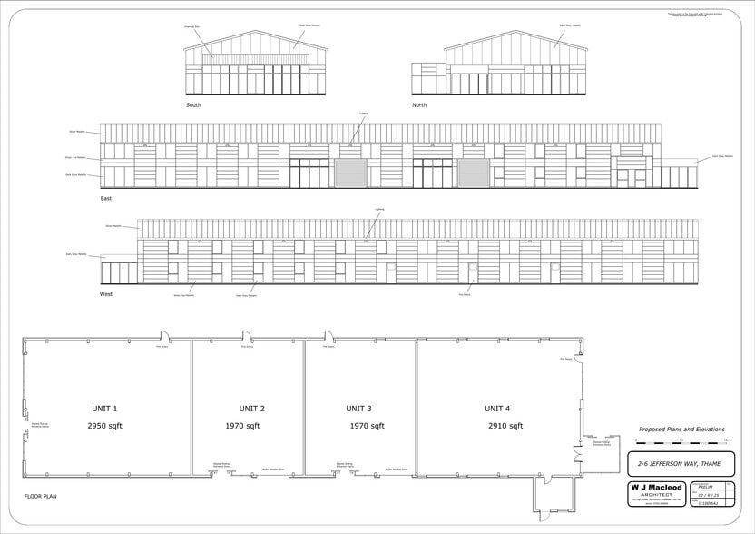
Prominent location on the ring road and the corner of Jefferson Way, on the southern side of Thame, a short distance away from the Town Centre and all its amenities, allowing easy access to Junction 6 of the M40 motorway only approx. 6 miles away. Convenience store / children's nursery / Trade Counter opportunities with planning for summer 2026 delivery in prominent ring road location. Convenience Store / Children's Nursery / Trade Counter opportunities. A new conversion scheme for summer 2026 comprising units of 4,200 Sq ft and 5,800 Sq ft with planning permission granted. Alternative scheme comprising 4 units, 2 units of approx. 1,970 Sq ft and 2 units of approx. 2,950 Sq ft. Portal frame building with insulated composite panels, with scope for mezzanine floor if required. Unit 1 Convenience Store: 4,800 Sq ft approx. & 14 car spaces Unit 2 Children’s Nursery: 5,200 Sq ft approx. & 13 car spaces Convenience store / Children's Nursery / Trade Counter opportunities From 1,970 Sq ft to 10,000 Sq ft GIA Prominent Ring Road Location New conversion for summer 2026 delivery Trade counter location Strictly by appointment with Fields.
- Use Class: E
- Smoke Detector
- Insulated composite panels
- planning permission granted.
- scope for mezzanine floor in Unit 2.
Ground, Ste Unit 2
Convenience Store & Children's Nursery opportunities. A new build scheme for summer 2026 comprising units of 4,800 Sq ft and 5,200 Sq ft with planning permission granted. Steel portal frame building with insulated composite panels subdivided in two, with scope for mezzanine floor in Unit 2. Unit 1 Convenience Store: 4,800 Sq ft approx. & 14 car spaces Unit 2 Children’s Nursery: 5,200 Sq ft approx. & 13 car spaces
- Use Class: E
- Smoke Detector
- Insulated composite panels
- planning permission granted.
- scope for mezzanine floor in Unit 2.
Service Types
The rent amount and service type that the tenant (lessee) will be responsible to pay to the landlord (lessor) throughout the lease term is negotiated prior to both parties signing a lease agreement. The service type will vary depending upon the services provided. Contact the listing broker for a full understanding of any associated costs or additional expenses for each service type.
1. Fully Repairing & Insuring: All obligations for repairing and insuring the property (or their share of the property) both internally and externally.
2. Internal Repairing Only: The tenant is responsible for internal repairs only. The landlord is responsible for structural and external repairs.
3. Internal Repairing & Insuring: The tenant is responsible for internal repairs and insurance for internal parts of the property only. The landlord is responsible for structural and external repairs.
4. Negotiable or TBD: This is used when the leasing contact does not provide the service type.
Property Facts
| Total Space Available | 10,000 SF | Gross Leasable Area | 10,000 SF |
| Property Type | Retail | Construction Status | Proposed |
| Total Space Available | 10,000 SF |
| Property Type | Retail |
| Gross Leasable Area | 10,000 SF |
| Construction Status | Proposed |
About the Property
Prominent location on the ring road and the corner of Jefferson Way, on the southern side of Thame, a short distance away from the Town Centre and all its amenities, allowing easy access to Junction 6 of the M40 motorway only approx. 6 miles away.
- Smoke Detector
Nearby Major Retailers
Presented by
2-6 Jefferson Way
Hmm, there seems to have been an error sending your message. Please try again.
Thanks! Your message was sent.



