Log In/Sign Up
Your email has been sent.
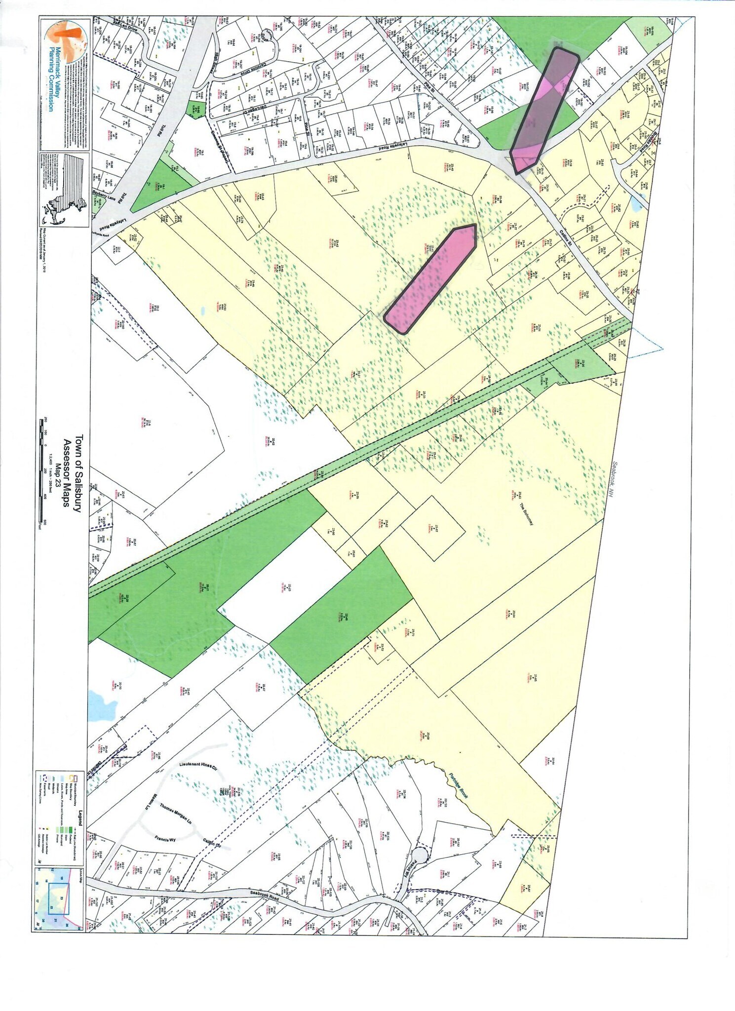
2 Collins St
Salisbury, MA 01952
Land For Sale
·
3.08 AC


Property Facts
| Sale Type | Investment | Property Subtype | Commercial |
| No. Lots | 1 | Total Lot Size | 3.08 AC |
| Property Type | Land | ||
| Zoning | C | ||
| Sale Type | Investment |
| No. Lots | 1 |
| Property Type | Land |
| Property Subtype | Commercial |
| Total Lot Size | 3.08 AC |
| Zoning | C |
1 Lot Available
Lot
| Price | $2,121,531 CAD | Lot Size | 3.08 AC |
| Price Per AC | $688,808.90 CAD |
| Price | $2,121,531 CAD |
| Price Per AC | $688,808.90 CAD |
| Lot Size | 3.08 AC |
1 of 8
Videos
Matterport 3D Exterior
Matterport 3D Tour
Photos
Street View
Street
Map
