Log In/Sign Up
Your email has been sent.
INVESTMENT HIGHLIGHTS
- Heavy Power
- Redevelopment Opportunity
- Flexible Seller
- Unique Location
EXECUTIVE SUMMARY
The Subject Property is a single-tenant industrial building located off Eric Circle in Verdi, Nevada. The property is a ±88,560 square foot facility sitting on ±4.0 acres of land, consisting of lab space built out of cultivation and empty warehouse with the ability to redevelop.
Lot Size ±4.0 AC
Building Size (SF) ±88,560 SF
Sale Type Investment or Owner-User
Cultivation facility currently in operation
Power 4,000 AMP I 480 Volt I 3 Phase
Clear Height 14’ - 20’
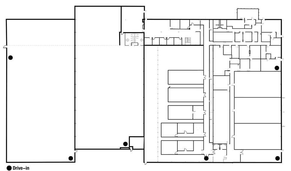
Drive-In Doors 6
Parking 25 Auto
APN 038-060-09
Year Built 1968
Zoning I - Industrial
Lot Size ±4.0 AC
Building Size (SF) ±88,560 SF
Sale Type Investment or Owner-User
Cultivation facility currently in operation
Power 4,000 AMP I 480 Volt I 3 Phase
Clear Height 14’ - 20’
Drive-In Doors 6
Parking 25 Auto
APN 038-060-09
Year Built 1968
Zoning I - Industrial
PROPERTY FACTS
1 1
PROPERTY TAXES
| Parcel Number | 038-060-09 | Improvements Assessment | $1,969,586 CAD |
| Land Assessment | $342,806 CAD | Total Assessment | $2,312,391 CAD |
PROPERTY TAXES
Parcel Number
038-060-09
Land Assessment
$342,806 CAD
Improvements Assessment
$1,969,586 CAD
Total Assessment
$2,312,391 CAD
1 of 34
VIDEOS
MATTERPORT 3D EXTERIOR
MATTERPORT 3D TOUR
PHOTOS
STREET VIEW
STREET
MAP
1 of 1
Presented by
2 Eric Cir
Already a member? Log In
Hmm, there seems to have been an error sending your message. Please try again.
Thanks! Your message was sent.



