Your email has been sent.
20 Missouri Research Park Dr 74,332 SF Vacant 4-Star Office Building Saint Charles, MO 63304 For Sale



Investment Highlights
- Located in a 200-acre research park with over 1.5M SF of R&D space
- Extensive conferencing and collaboration areas throughout
- Easy access to I-64 and St. Louis metro area
- High-capacity electrical and HVAC systems support lab operations
- EV charging stations and walking trails enhance employee experience
- Generator pad and wet-pipe sprinkler system for operational resilience
Executive Summary
The building features robust infrastructure tailored for research and development, including 2,000 Amp electrical capacity, six 999,999 BTU/hr boilers, three 250-ton chillers, and both passenger and freight elevators. Wet-pipe sprinkler systems and a 750-gallon-per-minute fire pump ensure safety and compliance. The site includes a generator pad and 267 parking spaces, supporting both operational resilience and employee convenience.
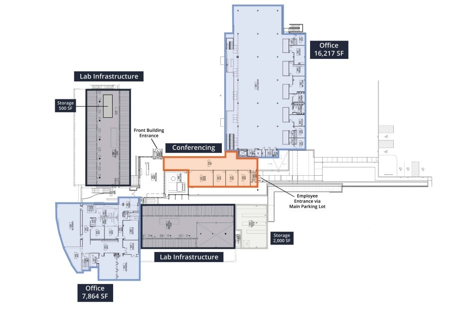
Inside, the facility is designed for flexibility and collaboration, with extensive conferencing areas, hoteling stations, open office layouts, and specialized lab zones. Amenities such as walking trails and electric vehicle charging stations enhance the campus-like environment. Located just off I-64, the property offers seamless access to the greater St. Louis metro and benefits from proximity to a skilled workforce and regional research institutions.
This asset is ideal for life sciences, technology, or advanced manufacturing firms seeking a scalable, infrastructure-rich environment with ownership potential in a proven innovation hub.
Property Facts
Amenities
- Conferencing Facility
- Signage
- Wheelchair Accessible
- Air Conditioning
- Smoke Detector
Sustainability
Sustainability
LEED Certification Developed by the U.S. Green Building Council (USGBC), the Leadership in Energy and Environmental Design (LEED) is a green building certification program focused on the design, construction, operation, and maintenance of green buildings, homes, and neighborhoods, which aims to help building owners and operators be environmentally responsible and use resources efficiently. LEED certification is a globally recognized symbol of sustainability achievement and leadership. To achieve LEED certification, a project earns points by adhering to prerequisites and credits that address carbon, energy, water, waste, transportation, materials, health and indoor environmental quality. Projects go through a verification and review process and are awarded points that correspond to a level of LEED certification: Platinum (80+ points) Gold (60-79 points) Silver (50-59 points) Certified (40-49 points)
Space Availability
- Space
- Size
- Space Use
- Build-Out
- Available
Asking Rate: -Office: $23.00/SF, Full Service -Lab: $22.00/SF, NNN
Asking Rate: -Office: $23.00/SF, Full Service -Lab: $22.00/SF, NNN
| Space | Size | Space Use | Build-Out | Available |
| 1st Floor | 1,500-50,251 SF | Office | Partial Build-Out | Now |
| 2nd Floor | 1,500-24,081 SF | Office | Full Build-Out | Now |
1st Floor
| Size |
| 1,500-50,251 SF |
| Space Use |
| Office |
| Build-Out |
| Partial Build-Out |
| Available |
| Now |
2nd Floor
| Size |
| 1,500-24,081 SF |
| Space Use |
| Office |
| Build-Out |
| Full Build-Out |
| Available |
| Now |
1st Floor
| Size | 1,500-50,251 SF |
| Space Use | Office |
| Build-Out | Partial Build-Out |
| Available | Now |
Asking Rate: -Office: $23.00/SF, Full Service -Lab: $22.00/SF, NNN
2nd Floor
| Size | 1,500-24,081 SF |
| Space Use | Office |
| Build-Out | Full Build-Out |
| Available | Now |
Asking Rate: -Office: $23.00/SF, Full Service -Lab: $22.00/SF, NNN
Property Taxes
| Parcel Number | 3-157G-A793-00-0020.0000000 | Improvements Assessment | $0 CAD |
| Land Assessment | $0 CAD | Total Assessment | $1,843,073 CAD |
Property Taxes
Presented by
20 Missouri Research Park Dr
Hmm, there seems to have been an error sending your message. Please try again.
Thanks! Your message was sent.





