Your email has been sent.
Reflections II 200 Golden Oak Ct 1,100 - 7,525 SF of Office Space Available in Virginia Beach, VA 23452



Sublease Highlights
- Located just off I-264 with quick access to Town Center and Oceanfront
- Access to on-site fitness center, café, and nature trail
- Energy Star certified building with signage opportunities
- Ample parking with overflow availability throughout the park
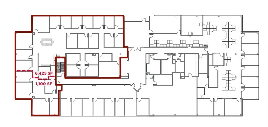
All Available Space(1)
Display Rental Rate as
- Space
- Size
- Term
- Rental Rate
- Space Use
- Build-Out
- Available
This Class A office space is available through May 31, 2029, and offers a plug-and-play setup with a mix of open workspaces and private offices. The suite can be subdivided to accommodate a range of tenant needs, making it ideal for growing teams or regional operations.
- Sublease space available from current tenant
- Fully Built-Out as Professional Services Office
- 20 Private Offices
- Plug & Play
- Rate includes utilities, building services and property expenses
- Fits 3 - 61 People
- 3 Conference Rooms
- Plug and play opportunity, furniture can remain
| Space | Size | Term | Rental Rate | Space Use | Build-Out | Available |
| 3rd Floor, Ste 300 | 1,100-7,525 SF | May 2029 | $26.51 CAD/SF/YR $2.21 CAD/SF/MO $199,490 CAD/YR $16,624 CAD/MO | Office | Full Build-Out | 30 Days |
3rd Floor, Ste 300
| Size |
| 1,100-7,525 SF |
| Term |
| May 2029 |
| Rental Rate |
| $26.51 CAD/SF/YR $2.21 CAD/SF/MO $199,490 CAD/YR $16,624 CAD/MO |
| Space Use |
| Office |
| Build-Out |
| Full Build-Out |
| Available |
| 30 Days |
3rd Floor, Ste 300
| Size | 1,100-7,525 SF |
| Term | May 2029 |
| Rental Rate | $26.51 CAD/SF/YR |
| Space Use | Office |
| Build-Out | Full Build-Out |
| Available | 30 Days |
This Class A office space is available through May 31, 2029, and offers a plug-and-play setup with a mix of open workspaces and private offices. The suite can be subdivided to accommodate a range of tenant needs, making it ideal for growing teams or regional operations.
- Sublease space available from current tenant
- Rate includes utilities, building services and property expenses
- Fully Built-Out as Professional Services Office
- Fits 3 - 61 People
- 20 Private Offices
- 3 Conference Rooms
- Plug & Play
- Plug and play opportunity, furniture can remain
Property Overview
The building is Energy Star certified and features prominent signage opportunities, all within a beautifully landscaped campus overlooking West Neck Creek. Tenants enjoy access to a robust amenity package including a fitness center, café, shared conference room, and a one-mile nature trail that enhances workplace wellness. With a parking ratio of 5.0 spaces per 1,000 SF and overflow parking throughout the park, convenience is built into the experience. Strategically located just 1,600 feet from the I-264/Lynnhaven Interchange, the property offers exceptional regional connectivity. It is minutes from Virginia Beach Town Center, Lynnhaven Mall, and the Oceanfront, and benefits from proximity to Naval Air Station Oceana and the Port of Virginia. The surrounding Hampton Roads MSA supports a population of 1.8 million, with a strong economic base in defense, tourism, and logistics.
- Atrium
- Controlled Access
- Conferencing Facility
- Fitness Center
- Food Court
- Food Service
- Waterfront
- Natural Light
Property Facts
Select Tenants
- Floor
- Tenant Name
- Industry
- 4th
- Anderson Legal Group, PC
- Professional, Scientific, and Technical Services
- 4th
- Banks Nutrition Center
- Health Care and Social Assistance
- 1st
- Edward Jones
- Finance and Insurance
- 1st
- Equity Title Company
- Professional, Scientific, and Technical Services
- 1st
- Flora's Cafe
- Accommodation and Food Services
- 3rd
- Ironclad Technology Services, LLC
- Professional, Scientific, and Technical Services
- 4th
- Issuetrak, Inc
- Professional, Scientific, and Technical Services
- 4th
- Pashm Global
- Professional, Scientific, and Technical Services
- Multiple
- Tidewater Mortgage Services, Inc.
- Finance and Insurance
Sustainability
Sustainability
LEED Certification Developed by the U.S. Green Building Council (USGBC), the Leadership in Energy and Environmental Design (LEED) is a green building certification program focused on the design, construction, operation, and maintenance of green buildings, homes, and neighborhoods, which aims to help building owners and operators be environmentally responsible and use resources efficiently. LEED certification is a globally recognized symbol of sustainability achievement and leadership. To achieve LEED certification, a project earns points by adhering to prerequisites and credits that address carbon, energy, water, waste, transportation, materials, health and indoor environmental quality. Projects go through a verification and review process and are awarded points that correspond to a level of LEED certification: Platinum (80+ points) Gold (60-79 points) Silver (50-59 points) Certified (40-49 points)
Presented by
Reflections II | 200 Golden Oak Ct
Hmm, there seems to have been an error sending your message. Please try again.
Thanks! Your message was sent.


