Your email has been sent.
Highlights
- In the heart of Chicago’s central business district.
All Available Spaces(16)
Display Rental Rate as
- Space
- Size
- Term
- Rental Rate
- Space Use
- Build-Out
- Available
Inspired by the nearby Quincy ‘L’ Stop, this brand new 11,435 RSF spec suite pays homage to one of Chicago’s last original train stations through its finishes and furniture. Features 4 conference rooms, 1 board room, and 5 private offices with numerous collaboration areas and open space. View the virtual tour here: https://nam02.safelinks.protection.outlook.com/?url=https%3A%2F%2Fshoootin.com%2Fen_us%2Fscan%2F6554bd35e06d91732c44cfb8&data=05%7C02%7CKim.Doyle%40jll.com%7C224f98eddcb547aa125108dbfdbcd80d%7Cbfef2b06d2564f8ebd038d3687987063%7C0%7C0%7C638382759740652961%7CUnknown%7CTWFpbGZsb3d8eyJWIjoiMC4wLjAwMDAiLCJQIjoiV2luMzIiLCJBTiI6Ik1haWwiLCJXVCI6Mn0%3D%7C3000%7C%7C%7C&sdata=1mHWn3Z0uhInrK%2BjQ194dAl8D8n0DfHNsNINmJWKFi0%3D&reserved=0
- Mostly Open Floor Plan Layout
- 5 Conference Rooms
- High End Trophy Space
- 5 Private Offices
- 68 Workstations
Great existing conditions for law firm/professional services firm. Furnished and wired.
- Fully Built-Out as Professional Services Office
- Space is in Excellent Condition
- Smoke Detector
- Mostly Open Floor Plan Layout
- Central Air Conditioning
- Furnished and wired.
Full glass elevator ID, great existing conditions. 4 offices, 1 conference room, kitchen + open area
- Fully Built-Out as Professional Services Office
- 4 Private Offices
- Space is in Excellent Condition
- Elevator Access
- Full glass elevator ID.
- Mostly Open Floor Plan Layout
- 1 Conference Room
- Central Air Conditioning
- Smoke Detector
- Kitchen and an open area.
This space has existing conditions with a reception, café area, 2 PO, 3 huddle rooms, 1 large (14 people) and 1 small (6 people) conference room, IT room, and an open area with around 43 workstations. View virtual tour here: https://nam02.safelinks.protection.outlook.com/?url=https%3A%2F%2Fshoootin.com%2Fen_us%2Fscans%2F654bcb71c1993639668635d4&data=05%7C02%7CKim.Doyle%40jll.com%7C224f98eddcb547aa125108dbfdbcd80d%7Cbfef2b06d2564f8ebd038d3687987063%7C0%7C0%7C638382759740652961%7CUnknown%7CTWFpbGZsb3d8eyJWIjoiMC4wLjAwMDAiLCJQIjoiV2luMzIiLCJBTiI6Ik1haWwiLCJXVCI6Mn0%3D%7C3000%7C%7C%7C&sdata=0IJGvWH9JpGiQci9wA0jBs%2FAvohLGhFNhEJjwgOx8mg%3D&reserved=0
- Fully Built-Out as Standard Office
- Central Air Conditioning
- Space is in Excellent Condition
- Smoke Detector
Largely open plan with good existing conditions.
- Fully Built-Out as Standard Office
- Space is in Excellent Condition
- Smoke Detector
- Open Floor Plan Layout
- Central Air Conditioning
Mix of private and open offices. Good views and light.
- Fully Built-Out as Standard Office
- Space is in Excellent Condition
- Smoke Detector
- Mostly Open Floor Plan Layout
- Central Air Conditioning
Largely open plan with good existing conditions.
- Fully Built-Out as Standard Office
- Space is in Excellent Condition
- Smoke Detector
- Open Floor Plan Layout
- Central Air Conditioning
This space is fully furnished and wired spec suite with reception, café area, 7 private offices, 5 conference/meeting rooms, and open area with just under 80 workstations. Matterport link: https://shoootin.com/en_us/scan/63eb6f8abb956e2ede5672a6
- Fully Built-Out as Standard Office
- Central Air Conditioning
- Space is in Excellent Condition
- Smoke Detector
Full floor availability with existing conditions and furniture. Features interior offices with glass office fronts and workstation along the perimeter. Large cafe and generous conference rooms throughout. View the virtual tour here: https://my.matterport.com/show/?m=GxUYvrefs5U
- Partially Built-Out as Standard Office
- Central Air Conditioning
- Mostly Open Floor Plan Layout
- Smoke Detector
8 large offices, open area + kitchen. Unfurnished.
- Fully Built-Out as Standard Office
- 8 Private Offices
- Central Air Conditioning
- Open Floor Plan Layout
- Space is in Excellent Condition
- Smoke Detector
Great new suite: 4 exam rooms with sinks/millwork, storage room, private bathroom, reception + lab/doctors’ office.
- Fully Built-Out as Standard Medical Space
- Space is in Excellent Condition
- New medical space with complete build out.
- Office intensive layout
- Central Air and Heating
Fantastic full floor spec suite suite with open and creative plan. Upgraded finishes with a modern aesthetic, furnished.
- Fully Built-Out as Standard Office
- Space is in Excellent Condition
- Mostly Open Floor Plan Layout
- Central Air and Heating
Existing law firm conditions with 7 private offices, 2 conferences rooms, and a kitchenette. View the virtual tour here: https://nam02.safelinks.protection.outlook.com/?url=https%3A%2F%2Fmy.matterport.com%2Fshow%2F%3Fm%3DTfy4kSewoDK&data=05%7C02%7CKim.Doyle%40jll.com%7Cdec6a024c14540cc998008dc21c37f13%7Cbfef2b06d2564f8ebd038d3687987063%7C0%7C0%7C638422370733962795%7CUnknown%7CTWFpbGZsb3d8eyJWIjoiMC4wLjAwMDAiLCJQIjoiV2luMzIiLCJBTiI6Ik1haWwiLCJXVCI6Mn0%3D%7C0%7C%7C%7C&sdata=%2BhL%2BXDxAMdZZpoB4rSOMGRdl95mBu5qUCNo94paj8eI%3D&reserved=0
- Partially Built-Out as Standard Office
- Can be combined with additional space(s) for up to 5,835 SF of adjacent space
- Smoke Detector
- Office intensive layout
- Central Air Conditioning
older existing conditions, great NE corner with lots of light. Space can be joined with adjacent Suite 1300 to create 5,835 RSF contiguous.
- Fully Built-Out as Standard Office
- Conference Rooms
- Central Air Conditioning
- Office intensive layout
- Can be combined with additional space(s) for up to 5,835 SF of adjacent space
- Smoke Detector
Great existing conditions with 9 private offices, 1 conference room, IT closet, board room, bathroom in suite, storage. View virtual walkthrough here: https://nam02.safelinks.protection.outlook.com/?url=https%3A%2F%2Fmy.matterport.com%2Fshow%2F%3Fm%3DYALWtczDxqt&data=05%7C02%7CKim.Doyle%40jll.com%7Cdec6a024c14540cc998008dc21c37f13%7Cbfef2b06d2564f8ebd038d3687987063%7C0%7C0%7C638422370733954813%7CUnknown%7CTWFpbGZsb3d8eyJWIjoiMC4wLjAwMDAiLCJQIjoiV2luMzIiLCJBTiI6Ik1haWwiLCJXVCI6Mn0%3D%7C0%7C%7C%7C&sdata=WpilBV36p%2By7XnVgCX6hHb0d21G5fQVMWtvuA5nuYpU%3D&reserved=0
- Partially Built-Out as Standard Office
- Central Air Conditioning
- Mostly Open Floor Plan Layout
- Smoke Detector
Great SW & SE views and natural light, full glass elevator ID, large glass board room, 11 po’s, kitchen/storage and room for approximately 35 work stations.
- Fully Built-Out as Standard Office
- 11 Private Offices
- Central Air Conditioning
- Mostly Open Floor Plan Layout
- 35 Workstations
- Smoke Detector
| Space | Size | Term | Rental Rate | Space Use | Build-Out | Available |
| 2nd Floor, Ste 200 | 11,435 SF | Negotiable | Upon Request Upon Request Upon Request Upon Request | Office | Spec Suite | Now |
| 4th Floor, Ste 400 | 2,313 SF | Negotiable | Upon Request Upon Request Upon Request Upon Request | Office | Full Build-Out | Now |
| 4th Floor, Ste 425 | 3,824 SF | Negotiable | Upon Request Upon Request Upon Request Upon Request | Office | Full Build-Out | Now |
| 4th Floor, Ste 475 | 7,830-8,469 SF | 5 Years | Upon Request Upon Request Upon Request Upon Request | Office | Full Build-Out | Now |
| 5th Floor, Ste 500 | 9,473 SF | Negotiable | Upon Request Upon Request Upon Request Upon Request | Office | Full Build-Out | Now |
| 5th Floor, Ste 550 | 8,047 SF | Negotiable | Upon Request Upon Request Upon Request Upon Request | Office | Full Build-Out | Now |
| 6th Floor, Ste 600 | 17,289-17,544 SF | Negotiable | Upon Request Upon Request Upon Request Upon Request | Office | Full Build-Out | Now |
| 7th Floor, Ste 700 | 10,310 SF | Negotiable | Upon Request Upon Request Upon Request Upon Request | Office | Full Build-Out | Now |
| 9th Floor, Ste 900 | 17,392 SF | Negotiable | Upon Request Upon Request Upon Request Upon Request | Office | Partial Build-Out | Now |
| 10th Floor, Ste 1045 | 4,405 SF | Negotiable | Upon Request Upon Request Upon Request Upon Request | Office | Full Build-Out | Now |
| 10th Floor, Ste 1060 | 1,662 SF | Negotiable | Upon Request Upon Request Upon Request Upon Request | Office/Medical | Full Build-Out | Now |
| 11th Floor, Ste 1100 | 17,403 SF | Negotiable | Upon Request Upon Request Upon Request Upon Request | Office | Full Build-Out | Now |
| 13th Floor, Ste 1300 | 3,133 SF | Negotiable | Upon Request Upon Request Upon Request Upon Request | Office | Partial Build-Out | Now |
| 13th Floor, Ste 1315 | 2,702 SF | Negotiable | Upon Request Upon Request Upon Request Upon Request | Office | Full Build-Out | Now |
| 13th Floor, Ste 1340 | 5,669 SF | Negotiable | Upon Request Upon Request Upon Request Upon Request | Office | Partial Build-Out | Now |
| 20th Floor, Ste 2000 | 10,117 SF | Negotiable | Upon Request Upon Request Upon Request Upon Request | Office | Full Build-Out | Now |
2nd Floor, Ste 200
| Size |
| 11,435 SF |
| Term |
| Negotiable |
| Rental Rate |
| Upon Request Upon Request Upon Request Upon Request |
| Space Use |
| Office |
| Build-Out |
| Spec Suite |
| Available |
| Now |
4th Floor, Ste 400
| Size |
| 2,313 SF |
| Term |
| Negotiable |
| Rental Rate |
| Upon Request Upon Request Upon Request Upon Request |
| Space Use |
| Office |
| Build-Out |
| Full Build-Out |
| Available |
| Now |
4th Floor, Ste 425
| Size |
| 3,824 SF |
| Term |
| Negotiable |
| Rental Rate |
| Upon Request Upon Request Upon Request Upon Request |
| Space Use |
| Office |
| Build-Out |
| Full Build-Out |
| Available |
| Now |
4th Floor, Ste 475
| Size |
| 7,830-8,469 SF |
| Term |
| 5 Years |
| Rental Rate |
| Upon Request Upon Request Upon Request Upon Request |
| Space Use |
| Office |
| Build-Out |
| Full Build-Out |
| Available |
| Now |
5th Floor, Ste 500
| Size |
| 9,473 SF |
| Term |
| Negotiable |
| Rental Rate |
| Upon Request Upon Request Upon Request Upon Request |
| Space Use |
| Office |
| Build-Out |
| Full Build-Out |
| Available |
| Now |
5th Floor, Ste 550
| Size |
| 8,047 SF |
| Term |
| Negotiable |
| Rental Rate |
| Upon Request Upon Request Upon Request Upon Request |
| Space Use |
| Office |
| Build-Out |
| Full Build-Out |
| Available |
| Now |
6th Floor, Ste 600
| Size |
| 17,289-17,544 SF |
| Term |
| Negotiable |
| Rental Rate |
| Upon Request Upon Request Upon Request Upon Request |
| Space Use |
| Office |
| Build-Out |
| Full Build-Out |
| Available |
| Now |
7th Floor, Ste 700
| Size |
| 10,310 SF |
| Term |
| Negotiable |
| Rental Rate |
| Upon Request Upon Request Upon Request Upon Request |
| Space Use |
| Office |
| Build-Out |
| Full Build-Out |
| Available |
| Now |
9th Floor, Ste 900
| Size |
| 17,392 SF |
| Term |
| Negotiable |
| Rental Rate |
| Upon Request Upon Request Upon Request Upon Request |
| Space Use |
| Office |
| Build-Out |
| Partial Build-Out |
| Available |
| Now |
10th Floor, Ste 1045
| Size |
| 4,405 SF |
| Term |
| Negotiable |
| Rental Rate |
| Upon Request Upon Request Upon Request Upon Request |
| Space Use |
| Office |
| Build-Out |
| Full Build-Out |
| Available |
| Now |
10th Floor, Ste 1060
| Size |
| 1,662 SF |
| Term |
| Negotiable |
| Rental Rate |
| Upon Request Upon Request Upon Request Upon Request |
| Space Use |
| Office/Medical |
| Build-Out |
| Full Build-Out |
| Available |
| Now |
11th Floor, Ste 1100
| Size |
| 17,403 SF |
| Term |
| Negotiable |
| Rental Rate |
| Upon Request Upon Request Upon Request Upon Request |
| Space Use |
| Office |
| Build-Out |
| Full Build-Out |
| Available |
| Now |
13th Floor, Ste 1300
| Size |
| 3,133 SF |
| Term |
| Negotiable |
| Rental Rate |
| Upon Request Upon Request Upon Request Upon Request |
| Space Use |
| Office |
| Build-Out |
| Partial Build-Out |
| Available |
| Now |
13th Floor, Ste 1315
| Size |
| 2,702 SF |
| Term |
| Negotiable |
| Rental Rate |
| Upon Request Upon Request Upon Request Upon Request |
| Space Use |
| Office |
| Build-Out |
| Full Build-Out |
| Available |
| Now |
13th Floor, Ste 1340
| Size |
| 5,669 SF |
| Term |
| Negotiable |
| Rental Rate |
| Upon Request Upon Request Upon Request Upon Request |
| Space Use |
| Office |
| Build-Out |
| Partial Build-Out |
| Available |
| Now |
20th Floor, Ste 2000
| Size |
| 10,117 SF |
| Term |
| Negotiable |
| Rental Rate |
| Upon Request Upon Request Upon Request Upon Request |
| Space Use |
| Office |
| Build-Out |
| Full Build-Out |
| Available |
| Now |
2nd Floor, Ste 200
| Size | 11,435 SF |
| Term | Negotiable |
| Rental Rate | Upon Request |
| Space Use | Office |
| Build-Out | Spec Suite |
| Available | Now |
Inspired by the nearby Quincy ‘L’ Stop, this brand new 11,435 RSF spec suite pays homage to one of Chicago’s last original train stations through its finishes and furniture. Features 4 conference rooms, 1 board room, and 5 private offices with numerous collaboration areas and open space. View the virtual tour here: https://nam02.safelinks.protection.outlook.com/?url=https%3A%2F%2Fshoootin.com%2Fen_us%2Fscan%2F6554bd35e06d91732c44cfb8&data=05%7C02%7CKim.Doyle%40jll.com%7C224f98eddcb547aa125108dbfdbcd80d%7Cbfef2b06d2564f8ebd038d3687987063%7C0%7C0%7C638382759740652961%7CUnknown%7CTWFpbGZsb3d8eyJWIjoiMC4wLjAwMDAiLCJQIjoiV2luMzIiLCJBTiI6Ik1haWwiLCJXVCI6Mn0%3D%7C3000%7C%7C%7C&sdata=1mHWn3Z0uhInrK%2BjQ194dAl8D8n0DfHNsNINmJWKFi0%3D&reserved=0
- Mostly Open Floor Plan Layout
- 5 Private Offices
- 5 Conference Rooms
- 68 Workstations
- High End Trophy Space
4th Floor, Ste 400
| Size | 2,313 SF |
| Term | Negotiable |
| Rental Rate | Upon Request |
| Space Use | Office |
| Build-Out | Full Build-Out |
| Available | Now |
Great existing conditions for law firm/professional services firm. Furnished and wired.
- Fully Built-Out as Professional Services Office
- Mostly Open Floor Plan Layout
- Space is in Excellent Condition
- Central Air Conditioning
- Smoke Detector
- Furnished and wired.
4th Floor, Ste 425
| Size | 3,824 SF |
| Term | Negotiable |
| Rental Rate | Upon Request |
| Space Use | Office |
| Build-Out | Full Build-Out |
| Available | Now |
Full glass elevator ID, great existing conditions. 4 offices, 1 conference room, kitchen + open area
- Fully Built-Out as Professional Services Office
- Mostly Open Floor Plan Layout
- 4 Private Offices
- 1 Conference Room
- Space is in Excellent Condition
- Central Air Conditioning
- Elevator Access
- Smoke Detector
- Full glass elevator ID.
- Kitchen and an open area.
4th Floor, Ste 475
| Size | 7,830-8,469 SF |
| Term | 5 Years |
| Rental Rate | Upon Request |
| Space Use | Office |
| Build-Out | Full Build-Out |
| Available | Now |
This space has existing conditions with a reception, café area, 2 PO, 3 huddle rooms, 1 large (14 people) and 1 small (6 people) conference room, IT room, and an open area with around 43 workstations. View virtual tour here: https://nam02.safelinks.protection.outlook.com/?url=https%3A%2F%2Fshoootin.com%2Fen_us%2Fscans%2F654bcb71c1993639668635d4&data=05%7C02%7CKim.Doyle%40jll.com%7C224f98eddcb547aa125108dbfdbcd80d%7Cbfef2b06d2564f8ebd038d3687987063%7C0%7C0%7C638382759740652961%7CUnknown%7CTWFpbGZsb3d8eyJWIjoiMC4wLjAwMDAiLCJQIjoiV2luMzIiLCJBTiI6Ik1haWwiLCJXVCI6Mn0%3D%7C3000%7C%7C%7C&sdata=0IJGvWH9JpGiQci9wA0jBs%2FAvohLGhFNhEJjwgOx8mg%3D&reserved=0
- Fully Built-Out as Standard Office
- Space is in Excellent Condition
- Central Air Conditioning
- Smoke Detector
5th Floor, Ste 500
| Size | 9,473 SF |
| Term | Negotiable |
| Rental Rate | Upon Request |
| Space Use | Office |
| Build-Out | Full Build-Out |
| Available | Now |
Largely open plan with good existing conditions.
- Fully Built-Out as Standard Office
- Open Floor Plan Layout
- Space is in Excellent Condition
- Central Air Conditioning
- Smoke Detector
5th Floor, Ste 550
| Size | 8,047 SF |
| Term | Negotiable |
| Rental Rate | Upon Request |
| Space Use | Office |
| Build-Out | Full Build-Out |
| Available | Now |
Mix of private and open offices. Good views and light.
- Fully Built-Out as Standard Office
- Mostly Open Floor Plan Layout
- Space is in Excellent Condition
- Central Air Conditioning
- Smoke Detector
6th Floor, Ste 600
| Size | 17,289-17,544 SF |
| Term | Negotiable |
| Rental Rate | Upon Request |
| Space Use | Office |
| Build-Out | Full Build-Out |
| Available | Now |
Largely open plan with good existing conditions.
- Fully Built-Out as Standard Office
- Open Floor Plan Layout
- Space is in Excellent Condition
- Central Air Conditioning
- Smoke Detector
7th Floor, Ste 700
| Size | 10,310 SF |
| Term | Negotiable |
| Rental Rate | Upon Request |
| Space Use | Office |
| Build-Out | Full Build-Out |
| Available | Now |
This space is fully furnished and wired spec suite with reception, café area, 7 private offices, 5 conference/meeting rooms, and open area with just under 80 workstations. Matterport link: https://shoootin.com/en_us/scan/63eb6f8abb956e2ede5672a6
- Fully Built-Out as Standard Office
- Space is in Excellent Condition
- Central Air Conditioning
- Smoke Detector
9th Floor, Ste 900
| Size | 17,392 SF |
| Term | Negotiable |
| Rental Rate | Upon Request |
| Space Use | Office |
| Build-Out | Partial Build-Out |
| Available | Now |
Full floor availability with existing conditions and furniture. Features interior offices with glass office fronts and workstation along the perimeter. Large cafe and generous conference rooms throughout. View the virtual tour here: https://my.matterport.com/show/?m=GxUYvrefs5U
- Partially Built-Out as Standard Office
- Mostly Open Floor Plan Layout
- Central Air Conditioning
- Smoke Detector
10th Floor, Ste 1045
| Size | 4,405 SF |
| Term | Negotiable |
| Rental Rate | Upon Request |
| Space Use | Office |
| Build-Out | Full Build-Out |
| Available | Now |
8 large offices, open area + kitchen. Unfurnished.
- Fully Built-Out as Standard Office
- Open Floor Plan Layout
- 8 Private Offices
- Space is in Excellent Condition
- Central Air Conditioning
- Smoke Detector
10th Floor, Ste 1060
| Size | 1,662 SF |
| Term | Negotiable |
| Rental Rate | Upon Request |
| Space Use | Office/Medical |
| Build-Out | Full Build-Out |
| Available | Now |
Great new suite: 4 exam rooms with sinks/millwork, storage room, private bathroom, reception + lab/doctors’ office.
- Fully Built-Out as Standard Medical Space
- Office intensive layout
- Space is in Excellent Condition
- Central Air and Heating
- New medical space with complete build out.
11th Floor, Ste 1100
| Size | 17,403 SF |
| Term | Negotiable |
| Rental Rate | Upon Request |
| Space Use | Office |
| Build-Out | Full Build-Out |
| Available | Now |
Fantastic full floor spec suite suite with open and creative plan. Upgraded finishes with a modern aesthetic, furnished.
- Fully Built-Out as Standard Office
- Mostly Open Floor Plan Layout
- Space is in Excellent Condition
- Central Air and Heating
13th Floor, Ste 1300
| Size | 3,133 SF |
| Term | Negotiable |
| Rental Rate | Upon Request |
| Space Use | Office |
| Build-Out | Partial Build-Out |
| Available | Now |
Existing law firm conditions with 7 private offices, 2 conferences rooms, and a kitchenette. View the virtual tour here: https://nam02.safelinks.protection.outlook.com/?url=https%3A%2F%2Fmy.matterport.com%2Fshow%2F%3Fm%3DTfy4kSewoDK&data=05%7C02%7CKim.Doyle%40jll.com%7Cdec6a024c14540cc998008dc21c37f13%7Cbfef2b06d2564f8ebd038d3687987063%7C0%7C0%7C638422370733962795%7CUnknown%7CTWFpbGZsb3d8eyJWIjoiMC4wLjAwMDAiLCJQIjoiV2luMzIiLCJBTiI6Ik1haWwiLCJXVCI6Mn0%3D%7C0%7C%7C%7C&sdata=%2BhL%2BXDxAMdZZpoB4rSOMGRdl95mBu5qUCNo94paj8eI%3D&reserved=0
- Partially Built-Out as Standard Office
- Office intensive layout
- Can be combined with additional space(s) for up to 5,835 SF of adjacent space
- Central Air Conditioning
- Smoke Detector
13th Floor, Ste 1315
| Size | 2,702 SF |
| Term | Negotiable |
| Rental Rate | Upon Request |
| Space Use | Office |
| Build-Out | Full Build-Out |
| Available | Now |
older existing conditions, great NE corner with lots of light. Space can be joined with adjacent Suite 1300 to create 5,835 RSF contiguous.
- Fully Built-Out as Standard Office
- Office intensive layout
- Conference Rooms
- Can be combined with additional space(s) for up to 5,835 SF of adjacent space
- Central Air Conditioning
- Smoke Detector
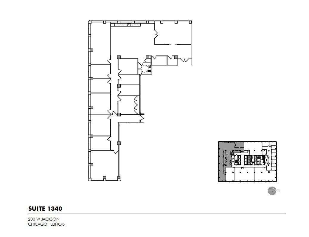
13th Floor, Ste 1340
| Size | 5,669 SF |
| Term | Negotiable |
| Rental Rate | Upon Request |
| Space Use | Office |
| Build-Out | Partial Build-Out |
| Available | Now |
Great existing conditions with 9 private offices, 1 conference room, IT closet, board room, bathroom in suite, storage. View virtual walkthrough here: https://nam02.safelinks.protection.outlook.com/?url=https%3A%2F%2Fmy.matterport.com%2Fshow%2F%3Fm%3DYALWtczDxqt&data=05%7C02%7CKim.Doyle%40jll.com%7Cdec6a024c14540cc998008dc21c37f13%7Cbfef2b06d2564f8ebd038d3687987063%7C0%7C0%7C638422370733954813%7CUnknown%7CTWFpbGZsb3d8eyJWIjoiMC4wLjAwMDAiLCJQIjoiV2luMzIiLCJBTiI6Ik1haWwiLCJXVCI6Mn0%3D%7C0%7C%7C%7C&sdata=WpilBV36p%2By7XnVgCX6hHb0d21G5fQVMWtvuA5nuYpU%3D&reserved=0
- Partially Built-Out as Standard Office
- Mostly Open Floor Plan Layout
- Central Air Conditioning
- Smoke Detector
20th Floor, Ste 2000
| Size | 10,117 SF |
| Term | Negotiable |
| Rental Rate | Upon Request |
| Space Use | Office |
| Build-Out | Full Build-Out |
| Available | Now |
Great SW & SE views and natural light, full glass elevator ID, large glass board room, 11 po’s, kitchen/storage and room for approximately 35 work stations.
- Fully Built-Out as Standard Office
- Mostly Open Floor Plan Layout
- 11 Private Offices
- 35 Workstations
- Central Air Conditioning
- Smoke Detector
Property Overview
Located in Chicago’s West Loop, 200 West Jackson is in the heart of Chicago’s central business district. An abundance of hotels, accessibility to public transportation and a new vision to a redefined office building make this new 24-hour neighborhood the premier office address. New ownership, Nightingale, brings a new vision with a multi-million dollar extensive property renovation. 200 W Jackson has bike parking, a fitness center, conferencing facility, tenant lounge and indoor/outdoor space with accordion windows called The Notch. Common Area Matterports: • Bike Room: https://shoootin.com/en_us/scan/63e7e9aabb956e13b8b2e974 • Main Lobby: https://shoootin.com/en_us/scan/63e7e84fbb956e13b8b2e95f • WiFi Lounge: https://shoootin.com/en_us/scan/63e7e539bb956e13b8b2e91c • TheNotch: https://shoootin.com/en_us/scan/63e7e3b6bb956e13b8b2e900 • Fitness Center: https://shoootin.com/en_us/scan/63eb6f11bb956e2ede567254 • Conference Center: https://shoootin.com/en_us/scan/63e7e0edbb956e13b8b2e896
- Atrium
- Conferencing Facility
- Convenience Store
- Fitness Center
- Property Manager on Site
- Security System
- Signage
- Roof Terrace
- Bicycle Storage
- Wi-Fi
- Air Conditioning
- Smoke Detector
Property Facts
Select Tenants
- Floor
- Tenant Name
- Industry
- 7th
- Asher, Gittler & D’Alba, LTD.
- Professional, Scientific, and Technical Services
- Multiple
- Camelot Illinois
- Professional, Scientific, and Technical Services
- 5th
- Integra Credit
- Finance and Insurance
- 12th
- Kelso-Burnett
- Construction
- 9th
- Liquidus Marketing
- Professional, Scientific, and Technical Services
- 14th
- NADEX
- Finance and Insurance
- Multiple
- Nielsen Holdings PLC
- Services
- 5th
- Phys IQ
- Services
- 8th
- Pure Circle USA
- Manufacturing
- 6th
- US Legal Support
- Professional, Scientific, and Technical Services
Presented by
200 W Jackson Blvd
Hmm, there seems to have been an error sending your message. Please try again.
Thanks! Your message was sent.







































