Your email has been sent.
New England Elementary School 2000 Clairton Rd 1,500 SF of Medical Space Available in West Mifflin, PA 15122



Highlights
- Availability includes medical office space and one commercial kitchen
- Common areas include newly renovated entrances and ADA accessible restrooms
- Close to Jefferson Hospital
All Available Space(1)
Display Rental Rate as
- Space
- Size
- Term
- Rental Rate
- Space Use
- Build-Out
- Available
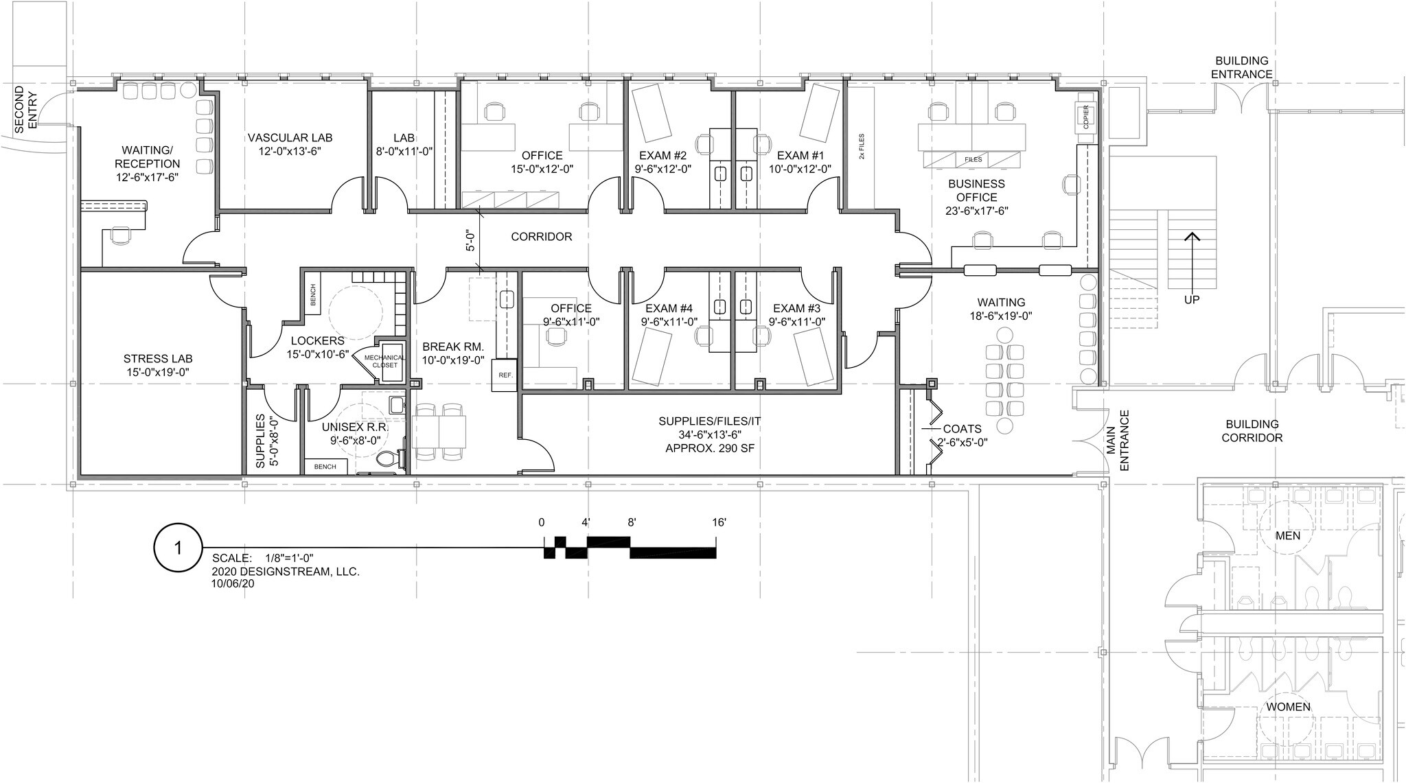
3,872 SF Medical office space with plumbing in exam rooms, private bathroom and is ADA accessible. Close to Jefferson Hospital.
- Listed lease rate plus proportional share of cleaning costs
- Office intensive layout
- Fits 10 - 31 People
- Private bathroom
- Close to Jefferson Hospital
- Partially Built-Out as Standard Medical Space
- Space In Need of Renovation
- Plumbing in exam rooms
- ADA accessible
| Space | Size | Term | Rental Rate | Space Use | Build-Out | Available |
| 1st Floor | 1,500 SF | Negotiable | $24.62 CAD/SF/YR $2.05 CAD/SF/MO $36,928 CAD/YR $3,077 CAD/MO | Medical | Partial Build-Out | Now |
1st Floor
| Size |
| 1,500 SF |
| Term |
| Negotiable |
| Rental Rate |
| $24.62 CAD/SF/YR $2.05 CAD/SF/MO $36,928 CAD/YR $3,077 CAD/MO |
| Space Use |
| Medical |
| Build-Out |
| Partial Build-Out |
| Available |
| Now |
1st Floor
| Size | 1,500 SF |
| Term | Negotiable |
| Rental Rate | $24.62 CAD/SF/YR |
| Space Use | Medical |
| Build-Out | Partial Build-Out |
| Available | Now |
3,872 SF Medical office space with plumbing in exam rooms, private bathroom and is ADA accessible. Close to Jefferson Hospital.
- Listed lease rate plus proportional share of cleaning costs
- Partially Built-Out as Standard Medical Space
- Office intensive layout
- Space In Need of Renovation
- Fits 10 - 31 People
- Plumbing in exam rooms
- Private bathroom
- ADA accessible
- Close to Jefferson Hospital
Property Overview
SVN | Three Rivers Commercial Advisors is pleased to present for lease this unique space located at 2000 Clairton Rd in West Mifflin, PA. Property is located less than 5 minutes to State Route 51 and is in proximity to the proposed UPMC South Hospital in Jefferson Township and AHN Jefferson Hospital. Numerous nearby amenities including national retailers, banks, and medical facilities.
Property Facts
Presented by
New England Elementary School | 2000 Clairton Rd
Hmm, there seems to have been an error sending your message. Please try again.
Thanks! Your message was sent.


