Your email has been sent.
One Alpha Place 201 Resting Tree Dr 2,608 - 125,815 SF of 4-Star Office Space Available in Bristol, VA 24202


Highlights
- One Alpha Place is a 130,000-square-foot Class A office offering move-in-ready suites with building signage and naming rights available.
- Tenants can enjoy a LEED Silver-certified building featuring redundant power, data center capabilities, and an on-site helicopter pad.
- Proximity to Interstate 81 affords broad access, within 1.5 to 4.5 hours of Knoxville, Charlotte, Atlanta, the Research Triangle, and Greenville.
- Fully equipped with executive offices, auditorium-style training rooms, meeting spaces, workstations, and a state-of-the-art board room.
- Desirable address for regional HQs in the Tri-Cities region with access to West Virginia, Kentucky, North Carolina, Tennessee, and Virginia.
All Available Spaces(5)
Display Rental Rate as
- Space
- Size
- Term
- Rental Rate
- Space Use
- Build-Out
- Available
Full floor that can be divided into Suite 1A at 2,608 square feet and Suite 1B at 13,739 square feet, or leased as a whole. It has a wide open space for workstations, versatile rooms, restrooms, and lobby exposure.
- Fully Built-Out as Standard Office
- Fits 7 - 257 People
- Can be combined with additional space(s) for up to 125,815 SF of adjacent space
- Natural Light
- Mostly Open Floor Plan Layout
- 10 Private Offices
- Elevator Access
Full floor available with an open plan ready for customization, conference rooms, several offices, break areas, restrooms, and elevator exposure.
- Fully Built-Out as Standard Office
- Fits 67 - 213 People
- 3 Conference Rooms
- Elevator Access
- Natural Light
- Open Floor Plan Layout
- 6 Private Offices
- Can be combined with additional space(s) for up to 125,815 SF of adjacent space
- Private Restrooms
Full floor available with an open plan ready for customization, conference rooms, several offices, break areas, restrooms, and elevator exposure.
- Fully Built-Out as Standard Office
- Fits 67 - 213 People
- 3 Conference Rooms
- Elevator Access
- Natural Light
- Mostly Open Floor Plan Layout
- 6 Private Offices
- Can be combined with additional space(s) for up to 125,815 SF of adjacent space
- Private Restrooms
Full floor available with an open plan ready for customization, conference rooms, several offices, break areas, restrooms, and elevator exposure.
- Fully Built-Out as Standard Office
- Fits 67 - 213 People
- 3 Conference Rooms
- Elevator Access
- Natural Light
- Mostly Open Floor Plan Layout
- 6 Private Offices
- Can be combined with additional space(s) for up to 125,815 SF of adjacent space
- Private Restrooms
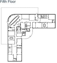
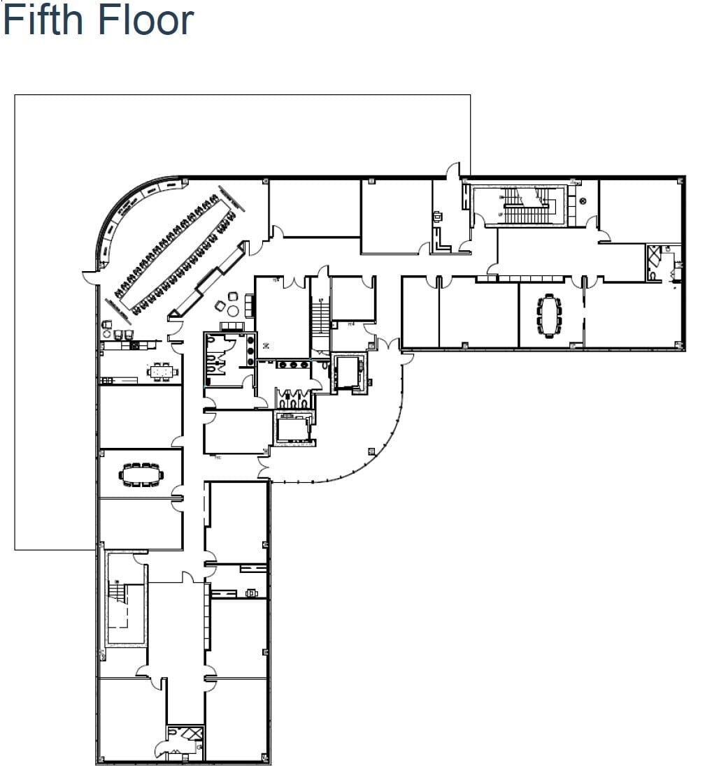
L-shaped suite with an office intensive layout featuring an expansive conference center, smaller meeting rooms, spacious private offices, break areas, and restrooms.
- Fully Built-Out as Standard Office
- Fits 36 - 113 People
- Can be combined with additional space(s) for up to 125,815 SF of adjacent space
- Natural Light
- Office intensive layout
- Conference Rooms
- Private Restrooms
| Space | Size | Term | Rental Rate | Space Use | Build-Out | Available |
| 1st Floor | 2,608-32,045 SF | Negotiable | Upon Request Upon Request Upon Request Upon Request | Office | Full Build-Out | Now |
| 2nd Floor | 26,585 SF | Negotiable | Upon Request Upon Request Upon Request Upon Request | Office | Full Build-Out | Now |
| 3rd Floor | 26,585 SF | Negotiable | Upon Request Upon Request Upon Request Upon Request | Office | Full Build-Out | Now |
| 4th Floor | 26,585 SF | Negotiable | Upon Request Upon Request Upon Request Upon Request | Office | Full Build-Out | Now |
| 5th Floor | 14,015 SF | Negotiable | Upon Request Upon Request Upon Request Upon Request | Office | Full Build-Out | Now |
1st Floor
| Size |
| 2,608-32,045 SF |
| Term |
| Negotiable |
| Rental Rate |
| Upon Request Upon Request Upon Request Upon Request |
| Space Use |
| Office |
| Build-Out |
| Full Build-Out |
| Available |
| Now |
2nd Floor
| Size |
| 26,585 SF |
| Term |
| Negotiable |
| Rental Rate |
| Upon Request Upon Request Upon Request Upon Request |
| Space Use |
| Office |
| Build-Out |
| Full Build-Out |
| Available |
| Now |
3rd Floor
| Size |
| 26,585 SF |
| Term |
| Negotiable |
| Rental Rate |
| Upon Request Upon Request Upon Request Upon Request |
| Space Use |
| Office |
| Build-Out |
| Full Build-Out |
| Available |
| Now |
4th Floor
| Size |
| 26,585 SF |
| Term |
| Negotiable |
| Rental Rate |
| Upon Request Upon Request Upon Request Upon Request |
| Space Use |
| Office |
| Build-Out |
| Full Build-Out |
| Available |
| Now |
5th Floor
| Size |
| 14,015 SF |
| Term |
| Negotiable |
| Rental Rate |
| Upon Request Upon Request Upon Request Upon Request |
| Space Use |
| Office |
| Build-Out |
| Full Build-Out |
| Available |
| Now |
1st Floor
| Size | 2,608-32,045 SF |
| Term | Negotiable |
| Rental Rate | Upon Request |
| Space Use | Office |
| Build-Out | Full Build-Out |
| Available | Now |
Full floor that can be divided into Suite 1A at 2,608 square feet and Suite 1B at 13,739 square feet, or leased as a whole. It has a wide open space for workstations, versatile rooms, restrooms, and lobby exposure.
- Fully Built-Out as Standard Office
- Mostly Open Floor Plan Layout
- Fits 7 - 257 People
- 10 Private Offices
- Can be combined with additional space(s) for up to 125,815 SF of adjacent space
- Elevator Access
- Natural Light
2nd Floor
| Size | 26,585 SF |
| Term | Negotiable |
| Rental Rate | Upon Request |
| Space Use | Office |
| Build-Out | Full Build-Out |
| Available | Now |
Full floor available with an open plan ready for customization, conference rooms, several offices, break areas, restrooms, and elevator exposure.
- Fully Built-Out as Standard Office
- Open Floor Plan Layout
- Fits 67 - 213 People
- 6 Private Offices
- 3 Conference Rooms
- Can be combined with additional space(s) for up to 125,815 SF of adjacent space
- Elevator Access
- Private Restrooms
- Natural Light
3rd Floor
| Size | 26,585 SF |
| Term | Negotiable |
| Rental Rate | Upon Request |
| Space Use | Office |
| Build-Out | Full Build-Out |
| Available | Now |
Full floor available with an open plan ready for customization, conference rooms, several offices, break areas, restrooms, and elevator exposure.
- Fully Built-Out as Standard Office
- Mostly Open Floor Plan Layout
- Fits 67 - 213 People
- 6 Private Offices
- 3 Conference Rooms
- Can be combined with additional space(s) for up to 125,815 SF of adjacent space
- Elevator Access
- Private Restrooms
- Natural Light
4th Floor
| Size | 26,585 SF |
| Term | Negotiable |
| Rental Rate | Upon Request |
| Space Use | Office |
| Build-Out | Full Build-Out |
| Available | Now |
Full floor available with an open plan ready for customization, conference rooms, several offices, break areas, restrooms, and elevator exposure.
- Fully Built-Out as Standard Office
- Mostly Open Floor Plan Layout
- Fits 67 - 213 People
- 6 Private Offices
- 3 Conference Rooms
- Can be combined with additional space(s) for up to 125,815 SF of adjacent space
- Elevator Access
- Private Restrooms
- Natural Light
5th Floor
| Size | 14,015 SF |
| Term | Negotiable |
| Rental Rate | Upon Request |
| Space Use | Office |
| Build-Out | Full Build-Out |
| Available | Now |
L-shaped suite with an office intensive layout featuring an expansive conference center, smaller meeting rooms, spacious private offices, break areas, and restrooms.
- Fully Built-Out as Standard Office
- Office intensive layout
- Fits 36 - 113 People
- Conference Rooms
- Can be combined with additional space(s) for up to 125,815 SF of adjacent space
- Private Restrooms
- Natural Light
Matterport 3D Tours
Property Overview
One Alpha Place is situated in Bristol, Virginia, on a 31.42-acre campus and was constructed in 2011 as the headquarters of Alpha Natural Resources now available for office users to establish a presence in this multifaceted market. This LEED Silver-certified Class A building comprises 130,000 square feet spread across five stories. It features executive offices, meeting rooms, workstations, two auditorium-style training rooms, a helipad, and a fully equipped state-of-the-art boardroom. It also includes backup generators for redundant power and sufficient power to host data center operations on site. One Alpha Place’s curved glass line and floor-to-ceiling windows flood the spaces with natural light, offering breathtaking views. Employees can enjoy a touch of nature from the adjacent walking and biking trails within Bristol’s Sugar Hollow Park. Additionally, building signage and naming rights are available for businesses to make their mark in the Tri-Cities region. Strategically situated in the southeastern United States, Bristol, Tennessee, and Virginia, is a twin city located directly on the Tennessee-Virginia state line. Bristol is part of the metropolitan statistical area, which includes Bristol, Johnson City, and Kingsport, commonly referred to as the Tri-Cities. Located at 201 Resting Tree Drive, One Alpha Place, is decidedly positioned to maximize access throughout the area, with Interstate 81 just five minutes away, providing links to population centers like Roanoke and Knoxville. This connectivity has fostered a diverse economy, with major office tenants including Eastman Chemical Company, Holston Medical Group, and the Bank of Tennessee. Industrial-related industries have numerous partnership opportunities with significant distribution and manufacturing operations from companies such as UPM Pharmaceuticals, Taylor Brands, Ferguson, Phoenix Logistics, FedEx Ground, and others in the area.
- Conferencing Facility
- Signage
- Reception
- Backup Power / Generators
Property Facts
Sustainability
Sustainability
LEED Certification Developed by the U.S. Green Building Council (USGBC), the Leadership in Energy and Environmental Design (LEED) is a green building certification program focused on the design, construction, operation, and maintenance of green buildings, homes, and neighborhoods, which aims to help building owners and operators be environmentally responsible and use resources efficiently. LEED certification is a globally recognized symbol of sustainability achievement and leadership. To achieve LEED certification, a project earns points by adhering to prerequisites and credits that address carbon, energy, water, waste, transportation, materials, health and indoor environmental quality. Projects go through a verification and review process and are awarded points that correspond to a level of LEED certification: Platinum (80+ points) Gold (60-79 points) Silver (50-59 points) Certified (40-49 points)
Marketing Brochure
Nearby Amenities
Hotels |
|
|---|---|
| Quality Inn |
65 rooms
5 min drive
|
| Courtyard |
175 rooms
7 min drive
|
| Hilton Garden Inn |
104 rooms
7 min drive
|
| Delta Hotel |
226 rooms
8 min drive
|
| Tribute Portfolio |
70 rooms
13 min drive
|
Leasing Agent
Leasing Agent
Fred McClellan, CCIM, Principal Broker
BUSINESS EXPERIENCE:
Callebs Realty, March, 2008 – present
Hillbilly Foods, July 1986 – June 2009
Good Luck Beverage, October 1984 - July 1986
Self-Serv Food Markets, July 1980 – October 1984
Wise County National Bank - June 1976 – July 1980
PROFESSIONAL SERVICE:
Bristol TN VA Association of Realtors, 2013 –
BoD, 2013 - 2017, President, 2016
TN Realtors
BoD, 2015 - 2016, Commercial Forms Committee, 2016 – 2018
VA Realtors, Legislative Delegate, 2010 – present,
Public Policy Committee, 2017 - present
VA Realtors BoD, 2024
TN VA Regional MLS, BoD, 2011 - 2012
About the Owner
Presented by
One Alpha Place | 201 Resting Tree Dr
Hmm, there seems to have been an error sending your message. Please try again.
Thanks! Your message was sent.











