Log In/Sign Up
Your email has been sent.
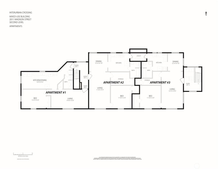
2011 Madison St 7,629 SF 100% Leased Retail Building Everett, WA 98203 $1,355,284 CAD ($177.65 CAD/SF) 4.04% Cap Rate



Property Facts
Sale Type
Investment
Property Type
Retail
Property Subtype
Storefront Retail/Residential
Building Size
7,629 SF
Building Class
C
Year Built
1947
Price
$1,355,284 CAD
Price Per SF
$177.65 CAD
Cap Rate
4.04%
NOI
$54,808 CAD
Percent Leased
100%
Tenancy
Multiple
Building Height
2 Stories
Slab To Slab
10’
Building FAR
0.29
Lot Size
0.61 AC
Zoning
NB
Parking
25 Spaces (3.28 Spaces per 1,000 SF Leased)
Frontage
Amenities
- Bus Line
Moderately walkable
60/100
Very drivable
80/100
Limited public transit
30/100
Fairly bikeable
40/100
Nearby Major Retailers
Property Taxes
| Parcel Number | 005447-005-013-00 | Improvements Assessment | $501,823 CAD |
| Land Assessment | $1,039,462 CAD | Total Assessment | $1,541,285 CAD |
Property Taxes
Parcel Number
005447-005-013-00
Land Assessment
$1,039,462 CAD
Improvements Assessment
$501,823 CAD
Total Assessment
$1,541,285 CAD
1 of 22
Videos
Matterport 3D Exterior
Matterport 3D Tour
Photos
Street View
Street
Map
Presented by
2011 Madison St
Already a member? Log In
Hmm, there seems to have been an error sending your message. Please try again.
Thanks! Your message was sent.
