Log In/Sign Up
Your email has been sent.
Investment Highlights
- Located within Midtown Sacramento near abundant amenities and major civic destinations
- On-site parking complemented by a detached carriage house providing additional utility
- Fully sprinklered property offering operational convenience for professional users
- Ideal environment for an owner-user seeking a signature professional settin
- Multi-level layout including a finished basement supporting versatile workspace needs
Executive Summary
Cushman & Wakefield is pleased to offer for sale a one of-a-kind
office building located at 2510 H Street in Midtown Sacramento.
This property presents a rare opportunity to acquire a distinctive professional office asset in the heart of Midtown Sacramento, one of the city’s most sought-after cultural and business districts. Built in 1904 and thoughtfully converted for modern office use, this three-story Colonial-style structure offers a blend of architectural character and functional workspace that appeals to law practices, advocacy groups, associations, creative firms, and boutique professional users. Its location places the property within close proximity to dining, parks, entertainment, and the broader Capitol employment base, creating a highly desirable environment for employees and visitors alike.
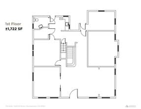
The building features private perimeter offices, a main-level conference room, and a finished basement that extends usability for storage, workrooms, or specialty operations. On-site surface parking and a detached garage provide excellent convenience in an area where parking is often limited, reinforcing the property’s competitive appeal. The site spans a generous ±0.24 acre parcel, offering an attractive footprint within Midtown’s charming grid. The asset is fully sprinklered and well-positioned for an owner looking to secure a long-term, strategically located headquarters with additional revenue support from two existing first-floor tenants delivering in-place income. The seller currently occupies the building and will vacate upon close of escrow, providing a clean transition for a new user.
Surrounded by tree-lined streets and close to Capitol Park, the John C. Fremont Park area, and key arterials including H Street, J Street, 16th Street, and 20th Street, the property offers both visibility and connectivity within one of Sacramento’s most walkable submarkets. This rare Midtown opportunity delivers historic charm, intrinsic character, and strategic functionality suited for a wide range of professional users seeking ownership in a high-demand district.
office building located at 2510 H Street in Midtown Sacramento.
This property presents a rare opportunity to acquire a distinctive professional office asset in the heart of Midtown Sacramento, one of the city’s most sought-after cultural and business districts. Built in 1904 and thoughtfully converted for modern office use, this three-story Colonial-style structure offers a blend of architectural character and functional workspace that appeals to law practices, advocacy groups, associations, creative firms, and boutique professional users. Its location places the property within close proximity to dining, parks, entertainment, and the broader Capitol employment base, creating a highly desirable environment for employees and visitors alike.
The building features private perimeter offices, a main-level conference room, and a finished basement that extends usability for storage, workrooms, or specialty operations. On-site surface parking and a detached garage provide excellent convenience in an area where parking is often limited, reinforcing the property’s competitive appeal. The site spans a generous ±0.24 acre parcel, offering an attractive footprint within Midtown’s charming grid. The asset is fully sprinklered and well-positioned for an owner looking to secure a long-term, strategically located headquarters with additional revenue support from two existing first-floor tenants delivering in-place income. The seller currently occupies the building and will vacate upon close of escrow, providing a clean transition for a new user.
Surrounded by tree-lined streets and close to Capitol Park, the John C. Fremont Park area, and key arterials including H Street, J Street, 16th Street, and 20th Street, the property offers both visibility and connectivity within one of Sacramento’s most walkable submarkets. This rare Midtown opportunity delivers historic charm, intrinsic character, and strategic functionality suited for a wide range of professional users seeking ownership in a high-demand district.
Property Facts
Sale Type
Investment
Property Type
Office
Building Size
6,100 SF
Building Class
C
Year Built
1908
Price
$1,924,944 CAD
Price Per SF
$315.56 CAD
Percent Leased
76%
Tenancy
Multiple
Building Height
3 Stories
Typical Floor Size
3,050 SF
Slab To Slab
9’
Building FAR
0.58
Lot Size
0.24 AC
Opportunity Zone
Yes
Zoning
RO - Residential-Office
Parking
13 Spaces (2.13 Spaces per 1,000 SF Leased)
Amenities
- Central Heating
- Hardwood Floors
- Air Conditioning
Space Availability
- Space
- Size
- Space Use
- Build-Out
- Available
Small Private office for $600 a month.
Finished space with sairwell access, open-plan suite with natural light. Includes a sink and one private office.
| Space | Size | Space Use | Build-Out | Available |
| 1st Fl-Ste A | 146 SF | Office | Full Build-Out | Now |
| 3rd Fl-Ste 300 | 1,308 SF | Office | Full Build-Out | Now |
1st Fl-Ste A
| Size |
| 146 SF |
| Space Use |
| Office |
| Build-Out |
| Full Build-Out |
| Available |
| Now |
3rd Fl-Ste 300
| Size |
| 1,308 SF |
| Space Use |
| Office |
| Build-Out |
| Full Build-Out |
| Available |
| Now |
1 of 1
Videos
Matterport 3D Exterior
Matterport 3D Tour
Photos
Street View
Street
Map
1st Fl-Ste A
| Size | 146 SF |
| Space Use | Office |
| Build-Out | Full Build-Out |
| Available | Now |
Small Private office for $600 a month.
1 of 2
Videos
Matterport 3D Exterior
Matterport 3D Tour
Photos
Street View
Street
Map
3rd Fl-Ste 300
| Size | 1,308 SF |
| Space Use | Office |
| Build-Out | Full Build-Out |
| Available | Now |
Finished space with sairwell access, open-plan suite with natural light. Includes a sink and one private office.
1 1
Exceptionally walkable
90/100
Moderately drivable
70/100
Some public transit
50/100
Very bikeable
80/100
Property Taxes
| Parcel Number | 003-0176-019 | Improvements Assessment | $1,019,606 CAD |
| Land Assessment | $352,306 CAD | Total Assessment | $1,371,912 CAD |
Property Taxes
Parcel Number
003-0176-019
Land Assessment
$352,306 CAD
Improvements Assessment
$1,019,606 CAD
Total Assessment
$1,371,912 CAD
1 of 8
Videos
Matterport 3D Exterior
Matterport 3D Tour
Photos
Street View
Street
Map
1 of 1
Presented by
2015 H St
Already a member? Log In
Hmm, there seems to have been an error sending your message. Please try again.
Thanks! Your message was sent.








