Log In/Sign Up
Your email has been sent.
2016 Rowe Loop 13 Acres of Commercial Land Offered at $4,916,376 CAD in Pflugerville, TX 78660



Investment Highlights
- Entitlements in Place: Completed and approved site plan with all city and utility requirements satisfied.
- Utilities Ready: Water, sewer, and electricity are available and ready for connection.
- Desirable Surroundings: Located in a high-demand growth area near schools, parks, and shopping—perfect for a new residential community.
- Prime Location: Ideally positioned near major employers, retail centers, and entertainment hubs with convenient access to TX-130, SH-45, and I-35.
- Flexible Design Potential: Entitlements allow for single-family homes with optional in-law suites or ADUs on each lot, catering to a variety of buyer
- Investment-Ready: All approvals secured, minimizing uncertainty and streamlining the development process.
Executive Summary
A premier development opportunity awaits in the rapidly growing North Austin–Pflugerville corridor. Situated just minutes from TX-130, this 13-acre tract offers a fully entitled residential subdivision with approved site plans—presenting a rare turnkey investment for builders, developers, or investors seeking a ready-to-go project in one of Central Texas’s most active markets. With entitlements and infrastructure already in place, this property represents a truly rare opportunity to deliver a new residential neighborhood in one of Austin’s most dynamic submarkets. Its prime location, thoughtful planning, and full city approvals make it an exceptional offering for developers looking to capitalize on Pflugerville’s continued growth and strong housing demand.
Property Facts
| Price | $4,916,376 CAD | Property Subtype | Commercial |
| Sale Type | Investment | Proposed Use | |
| No. Lots | 1 | Total Lot Size | 13.00 AC |
| Property Type | Land | ||
| Zoning | No Zoning - No Zoning | ||
| Price | $4,916,376 CAD |
| Sale Type | Investment |
| No. Lots | 1 |
| Property Type | Land |
| Property Subtype | Commercial |
| Proposed Use | |
| Total Lot Size | 13.00 AC |
| Zoning | No Zoning - No Zoning |
1 Lot Available
Lot
| Price | $4,916,376 CAD | Lot Size | 13.00 AC |
| Price Per AC | $378,182.76 CAD |
| Price | $4,916,376 CAD |
| Price Per AC | $378,182.76 CAD |
| Lot Size | 13.00 AC |
Prime Residential Development Opportunity – North Austin / Pflugerville.
Description
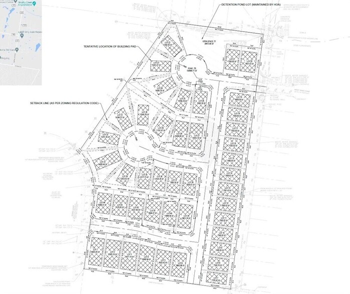
Spanning approximately 13 acres, the property is zoned SF-R and fully entitled for 44 lots (46 homes) with lot sizes ranging from 7,500 to 15,000 square feet. All required city entitlements and approvals are in place, including water service agreements and utility connections, ensuring a smooth path from acquisition to development. Highlights:
1 1
Somewhat walkable
30/100
Very drivable
80/100
Fairly bikeable
40/100
1 of 8
Videos
Matterport 3D Exterior
Matterport 3D Tour
Photos
Street View
Street
Map
1 of 1
Presented by
Caleb Home Sales
2016 Rowe Loop
Already a member? Log In
Hmm, there seems to have been an error sending your message. Please try again.
Thanks! Your message was sent.
