Log In/Sign Up
Your email has been sent.
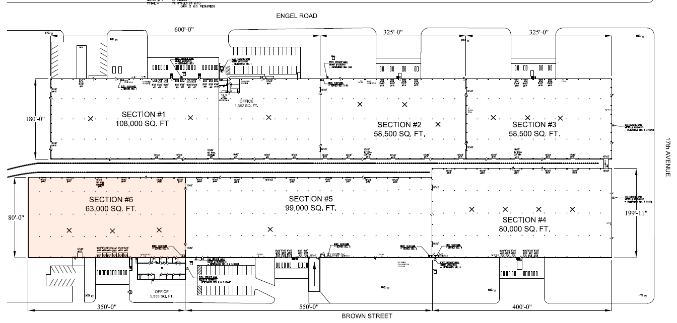
WOW Logistics 2020 Brown St 59,615 SF of Industrial Space Available in Wisconsin Rapids, WI 54495


Features
Drive In Bays
2
Exterior Dock Doors
15
Standard Parking Spaces
24
All Available Space(1)
Display Rental Rate as
- Space
- Size
- Term
- Rental Rate
- Space Use
- Build-Out
- Available
There are six rail access doors and Clear Height: 19’ Eave, 26’ – 6” Peak
- 1 Drive Bay
- 6 Loading Docks
| Space | Size | Term | Rental Rate | Space Use | Build-Out | Available |
| 1st Floor | 59,615 SF | Negotiable | Upon Request Upon Request Upon Request Upon Request | Industrial | Full Build-Out | 30 Days |
1st Floor
| Size |
| 59,615 SF |
| Term |
| Negotiable |
| Rental Rate |
| Upon Request Upon Request Upon Request Upon Request |
| Space Use |
| Industrial |
| Build-Out |
| Full Build-Out |
| Available |
| 30 Days |
1 of 3
Videos
Matterport 3D Exterior
Matterport 3D Tour
Photos
Street View
Street
Map
1st Floor
| Size | 59,615 SF |
| Term | Negotiable |
| Rental Rate | Upon Request |
| Space Use | Industrial |
| Build-Out | Full Build-Out |
| Available | 30 Days |
There are six rail access doors and Clear Height: 19’ Eave, 26’ – 6” Peak
- 1 Drive Bay
- 6 Loading Docks
Warehouse Facility Facts
Building Size
242,000 SF
Lot Size
5.56 AC
Year Built
1991
Zoning
M1 - General Industrial
1 1
Somewhat walkable
20/100
Exceptionally drivable
100/100
Fairly bikeable
40/100
1 of 3
Videos
Matterport 3D Exterior
Matterport 3D Tour
Photos
Street View
Street
Map
1 of 1
Presented by
WOW Logistics | 2020 Brown St
Already a member? Log In
Hmm, there seems to have been an error sending your message. Please try again.
Thanks! Your message was sent.



