Your email has been sent.
Highlights
- 2021 K Street is an eight-story medical office building in Washington, DC’s Golden Triangle District with recent renovations.
- Convenient location within walking distance of ample hotels, essential stores, dozens of restaurants, and two metro stations.
- Sufficient infrastructure for lab equipment, advanced imaging, dental work, outpatient surgery, and much more.
- New ownership provides on-site management and engineering with more improvements on the way to enhance tenant and patient experiences.
All Available Spaces(15)
Display Rental Rate as
- Space
- Size
- Term
- Rental Rate
- Space Use
- Build-Out
- Available
Built-out former restaurant space featuring expansive retail frontage along K Street with direct access. The layout offers strong potential for conversion to medical use, with excellent visibility for patient access and branding. Prominent signage opportunities available- well suited for a variety of healthcare or specialty medical users. Total first floor potential availability of 8,954 rsf .
Contact broker for more details. Total first floor contiguous availability of 8,954.
- Fits 6 - 20 People
Total first floor contiguous availability of 8,954.
- Fits 9 - 26 People
Former Endoscopy Center Space - Terrace level with tenant amenity space. Fully built out - move in ready with minor cosmetic updates.
- Rate includes utilities, building services and property expenses
- Fits 9 - 28 People
Terrace-level space on the same floor as the amenity center. Contact broker for more information.
- Fully Built-Out as Standard Office
- Fits 2 - 6 People
- Office intensive layout
Terrace-level space on the same floor as the amenity center. Contact broker for more information.
- Fits 7 - 21 People
Open-plan suite ready for new configurations. Contact broker for more information.
- Fits 3 - 10 People
Suite 308 is a 1,357-square-foot, fully built-out medical Suite for lease on the third floor. The highly efficient and flexible layout provides four spacious exam rooms, a doctor's office, an ADA-compliant restroom, a nurses' station, a waiting room, a reception area, and storage.
- Fits 4 - 11 People
- Turnkey Space
Suite 315 is a modern conversion of a second-generation medical layout. The 3,400-square-foot unit boasts six exam rooms with sinks, one central procedure room, a shared doctor’s office, an ADA-compliant in-suite restroom, and plenty of storage.
- Fits 9 - 28 People
- Private Restrooms
- Wheelchair Accessible
- Laboratory
- Secure Storage
- Turnkey Space
Comprises seven offices/exam rooms, a kitchen, and open areas at the core for flexible configurations. Contact broker for more information.
- Partially Built-Out as Standard Medical Space
- 7 Private Offices
- Fits 11 - 33 People
Efficient suite with great circulation featuring six large treatment rooms, a reception area, private restrooms, two physicians offices, a kitchen, and a large area for meetings or consultations.
- Fits 9 - 27 People
- 1 Conference Room
- Kitchen
- Wheelchair Accessible
- 2 Private Offices
- Laboratory
- Private Restrooms
Office-intensive suite with two reception rooms, 12 private offices that can be used as exam rooms, a waiting area, a bathroom, and a vanity room that could host lab space.
- Fits 7 - 21 People
- Reception Area
- 12 Private Offices
- Private Restrooms
This expansive medical suite features a strong mix of exam/consult rooms, large provider offices, and central administrative areas arranged along two wide corridors for efficient patient circulation. The layout includes a spacious kitchen/breakroom, multiple storage rooms, and flexible mid-suite rooms suitable for procedure or specialty use. Generous hallway access connects all zones, while varied room sizes support multi-provider operations and team-based workflows.
- Fits 12 - 37 People
- Reception Area
- Private Restrooms
- 3 Private Offices
- Kitchen
General medical build-out. Contact broker for more information.
- Fits 15 - 48 People
- Can be combined with additional space(s) for up to 11,122 SF of adjacent space
This suite delivers a highly efficient, exam-heavy medical layout anchored by a large central clinical area with excellent visibility and circulation. Multiple exam/consult rooms line the primary corridors, creating smooth patient flow across both wings of the space. The plan includes dedicated provider offices, a kitchen/breakroom, internal storage rooms, and strategically placed staff access points that support operational efficiency.
- Partially Built-Out as Standard Medical Space
- Fits 13 - 41 People
- Mostly Open Floor Plan Layout
- Can be combined with additional space(s) for up to 11,122 SF of adjacent space
| Space | Size | Term | Rental Rate | Space Use | Build-Out | Available |
| 1st Floor, Ste 100 | 3,340 SF | Negotiable | Upon Request Upon Request Upon Request Upon Request | Medical | - | Now |
| 1st Floor, Ste 101 | 2,379 SF | Negotiable | Upon Request Upon Request Upon Request Upon Request | Office | - | Now |
| 1st Floor, Ste 104 | 3,235 SF | Negotiable | Upon Request Upon Request Upon Request Upon Request | Office/Medical | - | Now |
| 1st Floor, Ste T-110 | 3,475 SF | Negotiable | Upon Request Upon Request Upon Request Upon Request | Office/Medical | - | Now |
| 1st Floor, Ste T-116 | 653 SF | Negotiable | Upon Request Upon Request Upon Request Upon Request | Office/Medical | Full Build-Out | Now |
| 1st Floor, Ste T-120A | 2,531 SF | Negotiable | Upon Request Upon Request Upon Request Upon Request | Office/Medical | - | Now |
| 2nd Floor, Ste 204 | 1,188 SF | Negotiable | Upon Request Upon Request Upon Request Upon Request | Office/Medical | - | Now |
| 3rd Floor, Ste 308 | 1,357 SF | 3-10 Years | Upon Request Upon Request Upon Request Upon Request | Office/Medical | Spec Suite | Now |
| 3rd Floor, Ste 315 | 3,400 SF | 3-10 Years | Upon Request Upon Request Upon Request Upon Request | Office/Medical | Spec Suite | Now |
| 4th Floor, Ste 408 | 4,076 SF | 3-10 Years | Upon Request Upon Request Upon Request Upon Request | Office/Medical | Partial Build-Out | Now |
| 4th Floor, Ste 420 | 3,331 SF | 3-10 Years | Upon Request Upon Request Upon Request Upon Request | Office/Medical | - | Now |
| 5th Floor, Ste 502 | 2,552 SF | Negotiable | Upon Request Upon Request Upon Request Upon Request | Office/Medical | - | Now |
| 5th Floor, Ste 516 | 4,560 SF | Negotiable | Upon Request Upon Request Upon Request Upon Request | Office/Medical | - | Now |
| 7th Floor, Ste 701 | 5,997 SF | Negotiable | Upon Request Upon Request Upon Request Upon Request | Office/Medical | - | Now |
| 7th Floor, Ste 715 | 5,125 SF | 3-10 Years | Upon Request Upon Request Upon Request Upon Request | Office/Medical | Partial Build-Out | Now |
1st Floor, Ste 100
| Size |
| 3,340 SF |
| Term |
| Negotiable |
| Rental Rate |
| Upon Request Upon Request Upon Request Upon Request |
| Space Use |
| Medical |
| Build-Out |
| - |
| Available |
| Now |
1st Floor, Ste 101
| Size |
| 2,379 SF |
| Term |
| Negotiable |
| Rental Rate |
| Upon Request Upon Request Upon Request Upon Request |
| Space Use |
| Office |
| Build-Out |
| - |
| Available |
| Now |
1st Floor, Ste 104
| Size |
| 3,235 SF |
| Term |
| Negotiable |
| Rental Rate |
| Upon Request Upon Request Upon Request Upon Request |
| Space Use |
| Office/Medical |
| Build-Out |
| - |
| Available |
| Now |
1st Floor, Ste T-110
| Size |
| 3,475 SF |
| Term |
| Negotiable |
| Rental Rate |
| Upon Request Upon Request Upon Request Upon Request |
| Space Use |
| Office/Medical |
| Build-Out |
| - |
| Available |
| Now |
1st Floor, Ste T-116
| Size |
| 653 SF |
| Term |
| Negotiable |
| Rental Rate |
| Upon Request Upon Request Upon Request Upon Request |
| Space Use |
| Office/Medical |
| Build-Out |
| Full Build-Out |
| Available |
| Now |
1st Floor, Ste T-120A
| Size |
| 2,531 SF |
| Term |
| Negotiable |
| Rental Rate |
| Upon Request Upon Request Upon Request Upon Request |
| Space Use |
| Office/Medical |
| Build-Out |
| - |
| Available |
| Now |
2nd Floor, Ste 204
| Size |
| 1,188 SF |
| Term |
| Negotiable |
| Rental Rate |
| Upon Request Upon Request Upon Request Upon Request |
| Space Use |
| Office/Medical |
| Build-Out |
| - |
| Available |
| Now |
3rd Floor, Ste 308
| Size |
| 1,357 SF |
| Term |
| 3-10 Years |
| Rental Rate |
| Upon Request Upon Request Upon Request Upon Request |
| Space Use |
| Office/Medical |
| Build-Out |
| Spec Suite |
| Available |
| Now |
3rd Floor, Ste 315
| Size |
| 3,400 SF |
| Term |
| 3-10 Years |
| Rental Rate |
| Upon Request Upon Request Upon Request Upon Request |
| Space Use |
| Office/Medical |
| Build-Out |
| Spec Suite |
| Available |
| Now |
4th Floor, Ste 408
| Size |
| 4,076 SF |
| Term |
| 3-10 Years |
| Rental Rate |
| Upon Request Upon Request Upon Request Upon Request |
| Space Use |
| Office/Medical |
| Build-Out |
| Partial Build-Out |
| Available |
| Now |
4th Floor, Ste 420
| Size |
| 3,331 SF |
| Term |
| 3-10 Years |
| Rental Rate |
| Upon Request Upon Request Upon Request Upon Request |
| Space Use |
| Office/Medical |
| Build-Out |
| - |
| Available |
| Now |
5th Floor, Ste 502
| Size |
| 2,552 SF |
| Term |
| Negotiable |
| Rental Rate |
| Upon Request Upon Request Upon Request Upon Request |
| Space Use |
| Office/Medical |
| Build-Out |
| - |
| Available |
| Now |
5th Floor, Ste 516
| Size |
| 4,560 SF |
| Term |
| Negotiable |
| Rental Rate |
| Upon Request Upon Request Upon Request Upon Request |
| Space Use |
| Office/Medical |
| Build-Out |
| - |
| Available |
| Now |
7th Floor, Ste 701
| Size |
| 5,997 SF |
| Term |
| Negotiable |
| Rental Rate |
| Upon Request Upon Request Upon Request Upon Request |
| Space Use |
| Office/Medical |
| Build-Out |
| - |
| Available |
| Now |
7th Floor, Ste 715
| Size |
| 5,125 SF |
| Term |
| 3-10 Years |
| Rental Rate |
| Upon Request Upon Request Upon Request Upon Request |
| Space Use |
| Office/Medical |
| Build-Out |
| Partial Build-Out |
| Available |
| Now |
1st Floor, Ste 100
| Size | 3,340 SF |
| Term | Negotiable |
| Rental Rate | Upon Request |
| Space Use | Medical |
| Build-Out | - |
| Available | Now |
Built-out former restaurant space featuring expansive retail frontage along K Street with direct access. The layout offers strong potential for conversion to medical use, with excellent visibility for patient access and branding. Prominent signage opportunities available- well suited for a variety of healthcare or specialty medical users. Total first floor potential availability of 8,954 rsf .
1st Floor, Ste 101
| Size | 2,379 SF |
| Term | Negotiable |
| Rental Rate | Upon Request |
| Space Use | Office |
| Build-Out | - |
| Available | Now |
Contact broker for more details. Total first floor contiguous availability of 8,954.
- Fits 6 - 20 People
1st Floor, Ste 104
| Size | 3,235 SF |
| Term | Negotiable |
| Rental Rate | Upon Request |
| Space Use | Office/Medical |
| Build-Out | - |
| Available | Now |
Total first floor contiguous availability of 8,954.
- Fits 9 - 26 People
1st Floor, Ste T-110
| Size | 3,475 SF |
| Term | Negotiable |
| Rental Rate | Upon Request |
| Space Use | Office/Medical |
| Build-Out | - |
| Available | Now |
Former Endoscopy Center Space - Terrace level with tenant amenity space. Fully built out - move in ready with minor cosmetic updates.
- Rate includes utilities, building services and property expenses
- Fits 9 - 28 People
1st Floor, Ste T-116
| Size | 653 SF |
| Term | Negotiable |
| Rental Rate | Upon Request |
| Space Use | Office/Medical |
| Build-Out | Full Build-Out |
| Available | Now |
Terrace-level space on the same floor as the amenity center. Contact broker for more information.
- Fully Built-Out as Standard Office
- Office intensive layout
- Fits 2 - 6 People
1st Floor, Ste T-120A
| Size | 2,531 SF |
| Term | Negotiable |
| Rental Rate | Upon Request |
| Space Use | Office/Medical |
| Build-Out | - |
| Available | Now |
Terrace-level space on the same floor as the amenity center. Contact broker for more information.
- Fits 7 - 21 People
2nd Floor, Ste 204
| Size | 1,188 SF |
| Term | Negotiable |
| Rental Rate | Upon Request |
| Space Use | Office/Medical |
| Build-Out | - |
| Available | Now |
Open-plan suite ready for new configurations. Contact broker for more information.
- Fits 3 - 10 People
3rd Floor, Ste 308
| Size | 1,357 SF |
| Term | 3-10 Years |
| Rental Rate | Upon Request |
| Space Use | Office/Medical |
| Build-Out | Spec Suite |
| Available | Now |
Suite 308 is a 1,357-square-foot, fully built-out medical Suite for lease on the third floor. The highly efficient and flexible layout provides four spacious exam rooms, a doctor's office, an ADA-compliant restroom, a nurses' station, a waiting room, a reception area, and storage.
- Fits 4 - 11 People
- Turnkey Space
3rd Floor, Ste 315
| Size | 3,400 SF |
| Term | 3-10 Years |
| Rental Rate | Upon Request |
| Space Use | Office/Medical |
| Build-Out | Spec Suite |
| Available | Now |
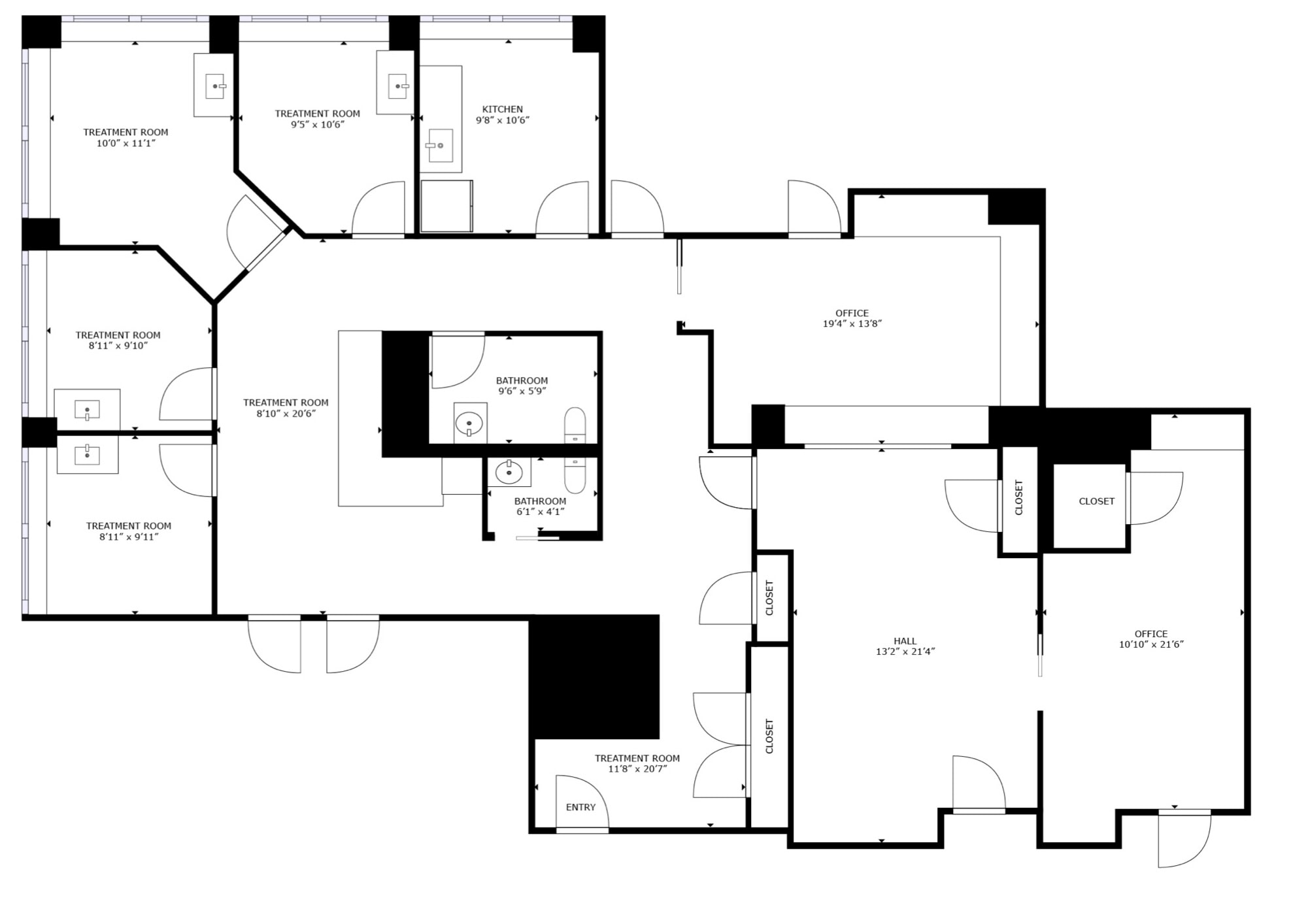
Suite 315 is a modern conversion of a second-generation medical layout. The 3,400-square-foot unit boasts six exam rooms with sinks, one central procedure room, a shared doctor’s office, an ADA-compliant in-suite restroom, and plenty of storage.
- Fits 9 - 28 People
- Laboratory
- Private Restrooms
- Secure Storage
- Wheelchair Accessible
- Turnkey Space
4th Floor, Ste 408
| Size | 4,076 SF |
| Term | 3-10 Years |
| Rental Rate | Upon Request |
| Space Use | Office/Medical |
| Build-Out | Partial Build-Out |
| Available | Now |
Comprises seven offices/exam rooms, a kitchen, and open areas at the core for flexible configurations. Contact broker for more information.
- Partially Built-Out as Standard Medical Space
- Fits 11 - 33 People
- 7 Private Offices
4th Floor, Ste 420
| Size | 3,331 SF |
| Term | 3-10 Years |
| Rental Rate | Upon Request |
| Space Use | Office/Medical |
| Build-Out | - |
| Available | Now |
Efficient suite with great circulation featuring six large treatment rooms, a reception area, private restrooms, two physicians offices, a kitchen, and a large area for meetings or consultations.
- Fits 9 - 27 People
- 2 Private Offices
- 1 Conference Room
- Laboratory
- Kitchen
- Private Restrooms
- Wheelchair Accessible
5th Floor, Ste 502
| Size | 2,552 SF |
| Term | Negotiable |
| Rental Rate | Upon Request |
| Space Use | Office/Medical |
| Build-Out | - |
| Available | Now |
Office-intensive suite with two reception rooms, 12 private offices that can be used as exam rooms, a waiting area, a bathroom, and a vanity room that could host lab space.
- Fits 7 - 21 People
- 12 Private Offices
- Reception Area
- Private Restrooms
5th Floor, Ste 516
| Size | 4,560 SF |
| Term | Negotiable |
| Rental Rate | Upon Request |
| Space Use | Office/Medical |
| Build-Out | - |
| Available | Now |
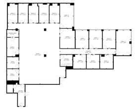
This expansive medical suite features a strong mix of exam/consult rooms, large provider offices, and central administrative areas arranged along two wide corridors for efficient patient circulation. The layout includes a spacious kitchen/breakroom, multiple storage rooms, and flexible mid-suite rooms suitable for procedure or specialty use. Generous hallway access connects all zones, while varied room sizes support multi-provider operations and team-based workflows.
- Fits 12 - 37 People
- 3 Private Offices
- Reception Area
- Kitchen
- Private Restrooms
7th Floor, Ste 701
| Size | 5,997 SF |
| Term | Negotiable |
| Rental Rate | Upon Request |
| Space Use | Office/Medical |
| Build-Out | - |
| Available | Now |
General medical build-out. Contact broker for more information.
- Fits 15 - 48 People
- Can be combined with additional space(s) for up to 11,122 SF of adjacent space
7th Floor, Ste 715
| Size | 5,125 SF |
| Term | 3-10 Years |
| Rental Rate | Upon Request |
| Space Use | Office/Medical |
| Build-Out | Partial Build-Out |
| Available | Now |
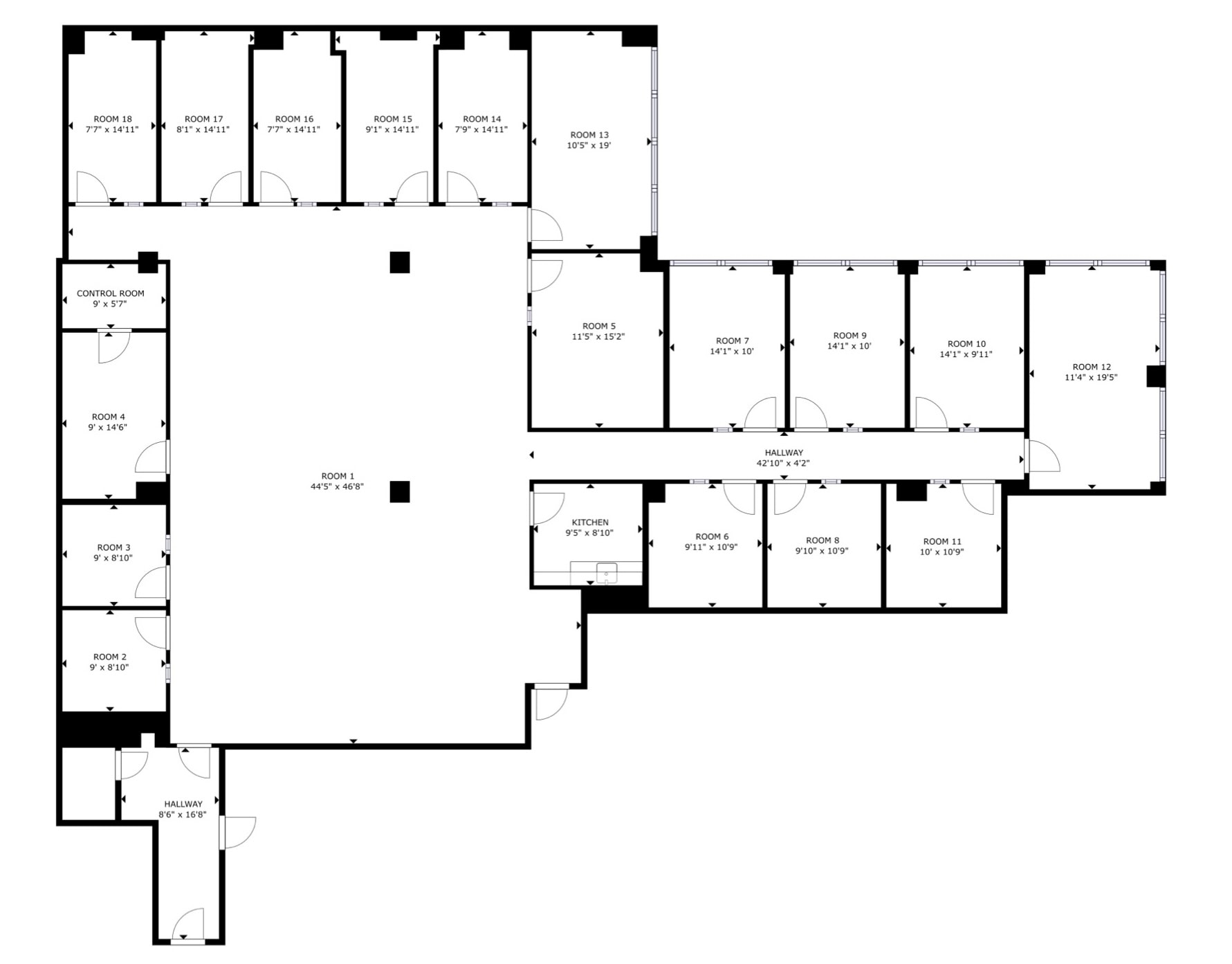
This suite delivers a highly efficient, exam-heavy medical layout anchored by a large central clinical area with excellent visibility and circulation. Multiple exam/consult rooms line the primary corridors, creating smooth patient flow across both wings of the space. The plan includes dedicated provider offices, a kitchen/breakroom, internal storage rooms, and strategically placed staff access points that support operational efficiency.
- Partially Built-Out as Standard Medical Space
- Mostly Open Floor Plan Layout
- Fits 13 - 41 People
- Can be combined with additional space(s) for up to 11,122 SF of adjacent space
Property Overview
2021 K Street NW offers an extraordinary combination of visibility and connectivity in the core of Washington, D.C.’s Central Business District. Positioned on K Street in the Golden Triangle, it sits just three blocks from George Washington University Hospital and minutes from MedStar Georgetown, creating a strong referral network and patient base. Ideal for specialties such as primary care, dermatology, dental, lab testing, outpatient surgery, physical therapy, and concierge medicine, these suites offer flexibility for a wide range of healthcare providers. Blue, Red, and Orange Metro lines are within an eight-minute walk, and Reagan National Airport is only a 13-minute drive, ensuring seamless regional access. The surrounding area boasts a dense daytime population, vibrant dining options, and cultural landmarks such as Dupont Circle, the White House, and the Kennedy Center. With new ownership and capital improvements underway, the property is poised to meet rising demand for premium medical space in one of the nation’s most dynamic submarkets.
- Bio-Tech/ Lab Space
- Property Manager on Site
- Restaurant
- Reception
Property Facts
Select Tenants
- Floor
- Tenant Name
- Industry
- 8th
- Children's Pediatricians and Associates
- Health Care and Social Assistance
- 3rd
- DC Endodontic Center
- Health Care and Social Assistance
- 6th
- Quest Diagnostics
- Health Care and Social Assistance
- 2nd
- The Neurology Center
- Health Care and Social Assistance
- 5th
- West End Dental
- Health Care and Social Assistance
Presented by
2021 K St NW
Hmm, there seems to have been an error sending your message. Please try again.
Thanks! Your message was sent.



















