Your email has been sent.
Investment Highlights
- Prime Location.
- Signage.
Executive Summary
This space could easily be converted to a retail use, including food and beverage operations.
1 Unit Available
Unit 101
| Unit Size | 3,944 SF | Condo Use | Office |
| Price | $1,986,079 CAD | Sale Type | Investment or Owner User |
| Price Per SF | $503.57 CAD | No. Parking Spaces | 6 |
| Unit Size | 3,944 SF |
| Price | $1,986,079 CAD |
| Price Per SF | $503.57 CAD |
| Condo Use | Office |
| Sale Type | Investment or Owner User |
| No. Parking Spaces | 6 |
Sale Notes
SVN | Real Estate Associates as the exclusive listing agent, is pleased to offer for sale or lease Suite 101 at 204 Rigsbee Avenue in downtown Durham, NC.
This area continues to experience an incredible transformation, with projects both under construction and planned to further expand its base of residential, retail, office, and life science spaces.
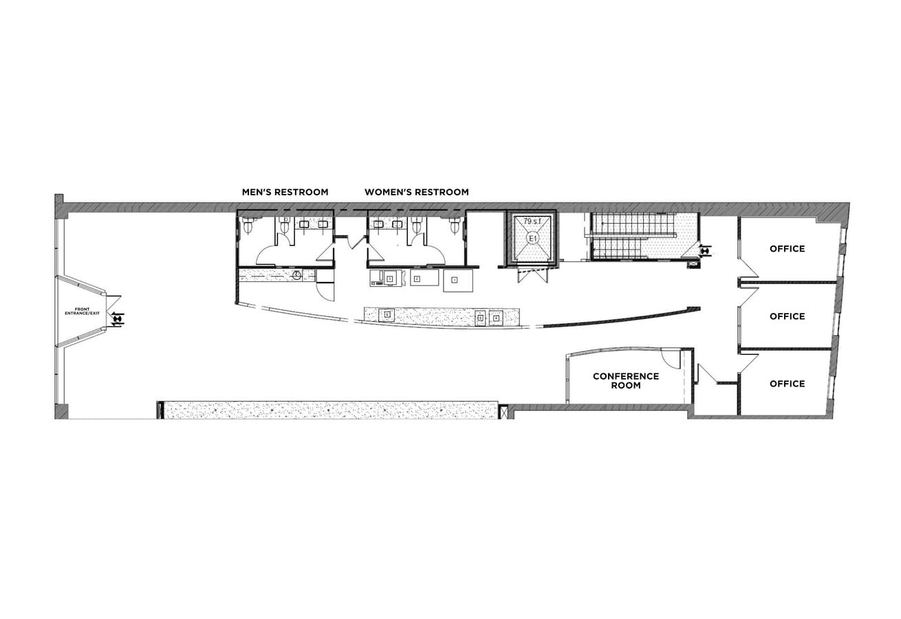
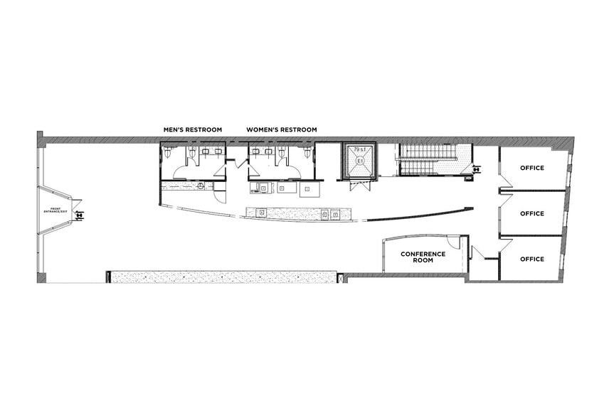
Suite 101 is a versatile, street-level commercial condo unit, currently built out as an open, creative office. With an ideal storefront façade, easy access to parking, and two means of egress, this space could easily be converted to a retail use, including food and beverage operations. This prime location, adjacent to some of Durham's most popular restaurants and cafes, provides excellent visibility and customer traffic.
Suite 101
Drive-In Basement Garage
Interior Photo
Interior Photo
Interior Photo
Interior Photo
Interior Photo
Interior Photo
Interior Photo
Interior Photo
Interior Photo
Interior Photo
Interior Photo
Interior Photo
Interior Photo
Interior Photo
Interior Photo
Interior Photo
Interior Photo
Interior Photo
Interior Photo
Interior Photo
Property Facts
| Total Building Size | 11,768 SF | Typical Floor Size | 3,994 SF |
| Property Type | Office (Condo) | Year Built | 1938 |
| Property Subtype | Office/Residential | Lot Size | 0.10 AC |
| Building Class | C | Parking Ratio | 0.68/1,000 SF |
| Floors | 2 | ||
| Zoning | DD-C - Downtown Durham Commercial | ||
| Total Building Size | 11,768 SF |
| Property Type | Office (Condo) |
| Property Subtype | Office/Residential |
| Building Class | C |
| Floors | 2 |
| Typical Floor Size | 3,994 SF |
| Year Built | 1938 |
| Lot Size | 0.10 AC |
| Parking Ratio | 0.68/1,000 SF |
| Zoning | DD-C - Downtown Durham Commercial |
Amenities
- Signage
Presented by
204 Rigsbee Ave
Hmm, there seems to have been an error sending your message. Please try again.
Thanks! Your message was sent.




