Log In/Sign Up
Your email has been sent.
Highlights
- Over 4,000 units planned or under construction in the immediate area.
- Prime location close to Downtown in the Warehouse District.
All Available Space(1)
Display Rental Rate as
- Space
- Size
- Term
- Rental Rate
- Space Use
- Condition
- Available
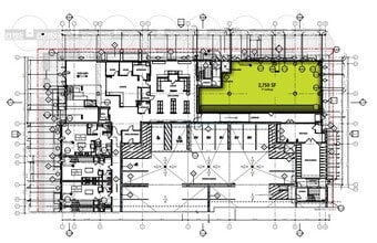
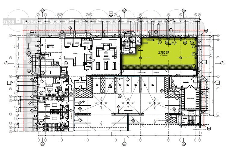
Perfect for restaurant use, other uses supported.
- Highly Desirable End Cap Space
- Private Restrooms
- Space is in Excellent Condition
- Corner Space
| Space | Size | Term | Rental Rate | Space Use | Condition | Available |
| 1st Floor | 2,750 SF | Negotiable | Upon Request Upon Request Upon Request Upon Request | Retail | Shell Space | Now |
1st Floor
| Size |
| 2,750 SF |
| Term |
| Negotiable |
| Rental Rate |
| Upon Request Upon Request Upon Request Upon Request |
| Space Use |
| Retail |
| Condition |
| Shell Space |
| Available |
| Now |
1 of 1
Videos
Matterport 3D Exterior
Matterport 3D Tour
Photos
Street View
Street
Map
1st Floor
| Size | 2,750 SF |
| Term | Negotiable |
| Rental Rate | Upon Request |
| Space Use | Retail |
| Condition | Shell Space |
| Available | Now |
Perfect for restaurant use, other uses supported.
- Highly Desirable End Cap Space
- Space is in Excellent Condition
- Private Restrooms
- Corner Space
Property Facts
| Total Space Available | 2,750 SF | Apartment Style | Mid-Rise |
| No. Units | 206 | Building Size | 210,000 SF |
| Property Type | Multifamily | Year Built | 2025 |
| Property Subtype | Apartment |
| Total Space Available | 2,750 SF |
| No. Units | 206 |
| Property Type | Multifamily |
| Property Subtype | Apartment |
| Apartment Style | Mid-Rise |
| Building Size | 210,000 SF |
| Year Built | 2025 |
About the Property
New construction upscale apartment complex with first floor retail.
Walk Score®
Very Walkable (88)
Bike Score®
Biker's Paradise (99)
Nearby Major Retailers
1 of 5
Videos
Matterport 3D Exterior
Matterport 3D Tour
Photos
Street View
Street
Map
Presented by
LUMA | 205 S 500 W
Already a member? Log In
Hmm, there seems to have been an error sending your message. Please try again.
Thanks! Your message was sent.
Your message has been sent!
Activate your LoopNet account now to track properties, get real-time alerts, save time on future inquiries, and more.






