Your email has been sent.
206 Oakland - 206 Oakland Street 15.87 Acres of Commercial Land Offered at $8,106,670 CAD in Manchester, CT 06042



Investment Highlights
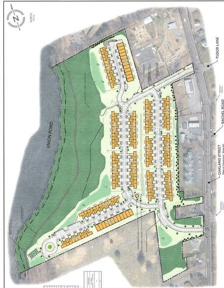
- 100% approved project - 148 Townhomes
- All public utilities, versatile unit sizes 1300-2000 sq ft, Official unit count as per plans 45-2Bed units, 90-3Bed units, and 13-4Bed units
- Beautiful setting on union pond. Walking trails, pickle ball court
- Location close to highways and all amenities
- OSTA approved
- All units have garages
Executive Summary
Data Room Click Here to Access
Property Facts
1 Lot Available
Lot
| Price | $8,106,670 CAD | Lot Size | 15.87 AC |
| Price Per AC | $510,817.28 CAD |
| Price | $8,106,670 CAD |
| Price Per AC | $510,817.28 CAD |
| Lot Size | 15.87 AC |
Rolling with 1000ft of Union pond frontage. 2 curb cuts.
Description
Inventory is at record lows and demand is there. 65% of Manchester market is under contract currently. This 148 unit Approved townhome/condo project is ready to build. Location is absolutely perfect being situated on Union Pond and close to highway access, Buckland hills mall, Evergreen Walk shops, and all major conveniences. The site is situated down off the street and community to have access to walking trails connecting to park and over 1000ft of pond Frontage. The townhome units are all between 1300-2000 sq ft, have 1 car garages, 2-4 bedrooms, and very spacious layouts. WALKOUT UNIT - 1300sq ft/2bd layout or 1680sq ft with attic. BUILT IN GARAGE UNIT- 1568sq ft 3 bd with 2 floors only. SLAB ON GRADE UNITS- 1402sq ft/2bd layout or 1817sq ft with walk up attic. Project has all public utilities. Great project ready for development. Inquire for more info/price.
Property Taxes
| Parcel Number | MANC-000073-004260-000206 | Improvements Assessment | $0 CAD |
| Land Assessment | $185,123 CAD | Total Assessment | $185,123 CAD |
Property Taxes
Presented by
206 Oakland - 206 Oakland Street
Hmm, there seems to have been an error sending your message. Please try again.
Thanks! Your message was sent.

