Log In/Sign Up
Your email has been sent.
2080 Placentia Ave 8,283 SF Industrial Building Costa Mesa, CA 92627 $7,944,318 CAD ($959.11 CAD/SF)



Investment Highlights
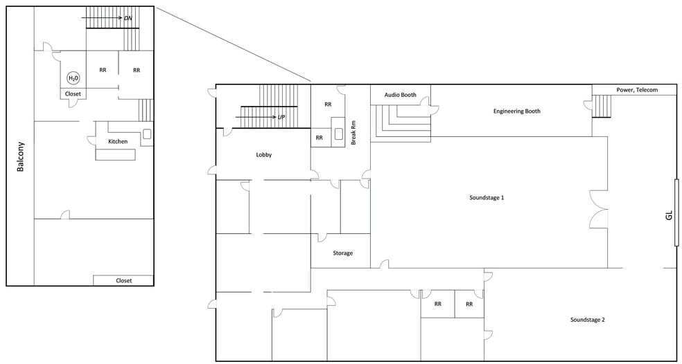
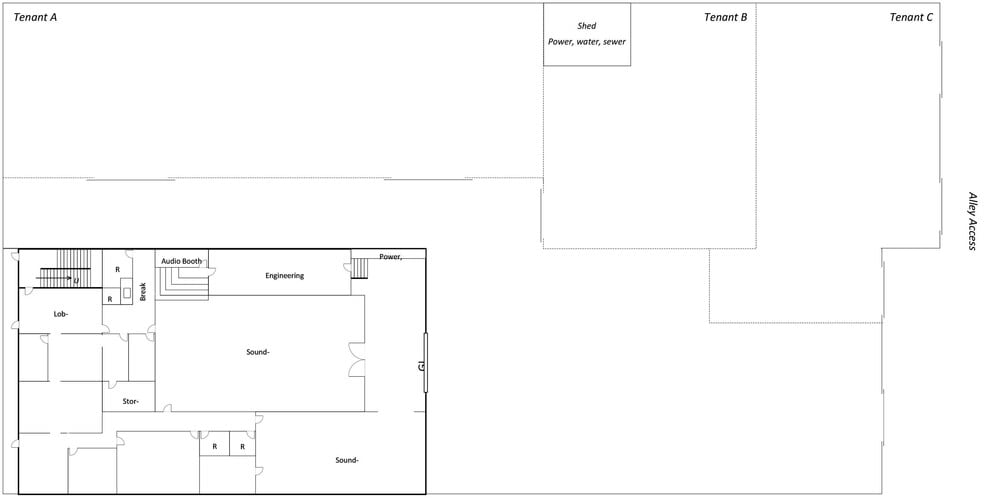
- Two-parcel industrial property with flexible layout and additional outbuilding
- 100% HVAC warehouse -equipped with natural gas service
- 2nd parcel (2086 Placentia) has 600 SF 'out' building (not in SF) with power, water, and sewer connections
- Large yard area and rear alley access for operational efficiency
- Tenants currently on month-to-month lease, offering potential for owner-user or redevelopment
- High visibility street frontage
Executive Summary
This offering presents a rare opportunity to acquire two contiguous industrial parcels totaling approximately 0.8 acres in the highly desirable Costa Mesa market. The property features a ±8,283 SF main building complemented by a ±600 SF outbuilding, providing flexible space for a variety of industrial uses. The site includes a large yard and rear alley access, enhancing operational efficiency for storage, loading, and distribution.
The building offers a two-story office component of ±3,200 SF, 16-foot clearance, and 400-amp power across four panels. Additional features include 100% HVAC, natural gas service, and convenient access from 16th Street. The property is zoned General Industrial (MG), allowing for a wide range of industrial and creative applications. With a tenant currently on a month-to-month basis, this asset is well-suited for an owner-user seeking immediate occupancy or an investor looking for redevelopment potential in a strong infill location.
Positioned near major transportation routes and within minutes of coastal communities, this property combines functionality with long-term upside in one of Orange County’s most dynamic industrial corridors.
The building offers a two-story office component of ±3,200 SF, 16-foot clearance, and 400-amp power across four panels. Additional features include 100% HVAC, natural gas service, and convenient access from 16th Street. The property is zoned General Industrial (MG), allowing for a wide range of industrial and creative applications. With a tenant currently on a month-to-month basis, this asset is well-suited for an owner-user seeking immediate occupancy or an investor looking for redevelopment potential in a strong infill location.
Positioned near major transportation routes and within minutes of coastal communities, this property combines functionality with long-term upside in one of Orange County’s most dynamic industrial corridors.
Taxes & Operating Expenses (Actual - 2026) Click Here to Access |
Annual (CAD) | Annual Per SF (CAD) |
|---|---|---|
| Taxes |
$99,999
|
$9.99
|
| Operating Expenses |
-
|
-
|
| Total Expenses |
$99,999
|
$9.99
|
Taxes & Operating Expenses (Actual - 2026) Click Here to Access
| Taxes (CAD) | |
|---|---|
| Annual | $99,999 |
| Annual Per SF | $9.99 |
| Operating Expenses (CAD) | |
|---|---|
| Annual | - |
| Annual Per SF | - |
| Total Expenses (CAD) | |
|---|---|
| Annual | $99,999 |
| Annual Per SF | $9.99 |
Property Facts
Amenities
- Fenced Lot
- Air Conditioning
Utilities
- Lighting
- Gas - Natural
- Water - City
- Sewer - City
1 1
Moderately walkable
60/100
Exceptionally drivable
90/100
Limited public transit
30/100
Moderately bikeable
70/100
Property Taxes
| Parcel Numbers | Total Assessment | $597,621 CAD (2025) | |
| Land Assessment | $168,611 CAD (2025) | Annual Taxes | -$1 CAD ($0.00 CAD/SF) |
| Improvements Assessment | $429,010 CAD (2025) | Tax Year | 2026 |
Property Taxes
Parcel Numbers
Land Assessment
$168,611 CAD (2025)
Improvements Assessment
$429,010 CAD (2025)
Total Assessment
$597,621 CAD (2025)
Annual Taxes
-$1 CAD ($0.00 CAD/SF)
Tax Year
2026
1 of 4
Videos
Matterport 3D Exterior
Matterport 3D Tour
Photos
Street View
Street
Map
1 of 1
Presented by
2080 Placentia Ave
Already a member? Log In
Hmm, there seems to have been an error sending your message. Please try again.
Thanks! Your message was sent.
