Your email has been sent.
The Pledge of Allegiance Bldg 209 Columbus Ave 1,504 - 52,682 SF of Space Available in Boston, MA 02116



Highlights
- 24/7 Staffed Security
- 14' high ceilings on every floor
- Onsite Building Engineers
- Excellent natural light with four sides of windows.
- Efficient floor plates with cast iron column construction
All Available Spaces(7)
Display Rental Rate as
- Space
- Size
- Term
- Rental Rate
- Space Use
- Build-Out
- Available
Dramatic showroom space formerly occupied by Mitchell Gold. First floor ceiling height of 13 feet. Open internal staircase leading to lower level, both floors are elevator / lift accessible. Dedicated entrance on the corner of Berkeley Street and Columbus Avenue.
- Can be combined with additional space(s) for up to 12,491 SF of adjacent space
Dramatic showroom space formerly occupied by Mitchell Gold. First floor ceiling height of 13 feet. Open internal staircase leading to lower level, both floors are elevator / lift accessible. Dedicated entrance on the corner of Berkeley Street and Columbus Avenue.
- Can be combined with additional space(s) for up to 12,491 SF of adjacent space
- 3rd Floor
- 8,924 SF
- Negotiable
- Upon Request Upon Request Upon Request Upon Request
- Office
- -
- Now
Excellent opportunity for a variety of uses including physical therapist, medical aesthetics, spa, chiropractor and personal fitness studio. Zoned for medical / office. This suite features five treatment rooms, two sinks, 14’ high ceilings and hardwood floors.
- Fully Built-Out as Standard Office
- Space is in Excellent Condition
Unique space with large open bar / kitchen area. High ceilings and hardwood floors.
- Listed rate may not include certain utilities, building services and property expenses
- Mostly Open Floor Plan Layout
- 1 Conference Room
- Corner Space
- 13' high ceilings
- Fully Built-Out as Standard Office
- 4 Private Offices
- Finished Ceilings: 13’
- Exposed Ceiling
Unique opportunity for tenants seeking a full floor presence in the Back Bay. Full floor avaiablity with 14'-16' high ceilings and over 20 skylights and four sides of window.
- Listed rate may not include certain utilities, building services and property expenses
- Open Floor Plan Layout
- Partially Demolished Space
- Partially Built-Out as Standard Office
- Finished Ceilings: 14’ - 16’
- Full Floor
| Space | Size | Term | Rental Rate | Space Use | Build-Out | Available |
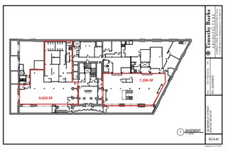
| Lower Level | 6,730 SF | Negotiable | Upon Request Upon Request Upon Request Upon Request | Retail | - | Now |
| 1st Floor | 5,761 SF | Negotiable | Upon Request Upon Request Upon Request Upon Request | Retail | - | Now |
| 3rd Floor | 2,608 SF | Negotiable | Upon Request Upon Request Upon Request Upon Request | Office | - | Now |
| 3rd Floor | 8,924 SF | Negotiable | Upon Request Upon Request Upon Request Upon Request | Office | - | Now |
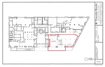
| 4th Floor | 1,504 SF | Negotiable | Upon Request Upon Request Upon Request Upon Request | Office | Full Build-Out | Now |
| 4th Floor | 3,054 SF | Negotiable | Upon Request Upon Request Upon Request Upon Request | Office | Full Build-Out | 2026-12-01 |
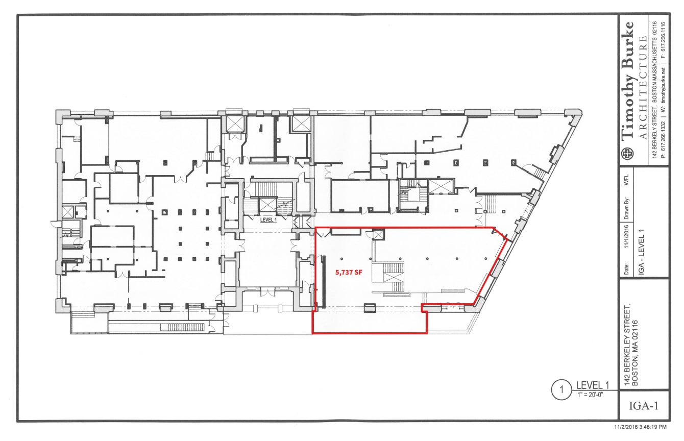
| 5th Floor | 8,844-24,101 SF | Negotiable | Upon Request Upon Request Upon Request Upon Request | Office | Partial Build-Out | Now |
Lower Level
| Size |
| 6,730 SF |
| Term |
| Negotiable |
| Rental Rate |
| Upon Request Upon Request Upon Request Upon Request |
| Space Use |
| Retail |
| Build-Out |
| - |
| Available |
| Now |
1st Floor
| Size |
| 5,761 SF |
| Term |
| Negotiable |
| Rental Rate |
| Upon Request Upon Request Upon Request Upon Request |
| Space Use |
| Retail |
| Build-Out |
| - |
| Available |
| Now |
3rd Floor
| Size |
| 2,608 SF |
| Term |
| Negotiable |
| Rental Rate |
| Upon Request Upon Request Upon Request Upon Request |
| Space Use |
| Office |
| Build-Out |
| - |
| Available |
| Now |
3rd Floor
| Size |
| 8,924 SF |
| Term |
| Negotiable |
| Rental Rate |
| Upon Request Upon Request Upon Request Upon Request |
| Space Use |
| Office |
| Build-Out |
| - |
| Available |
| Now |
4th Floor
| Size |
| 1,504 SF |
| Term |
| Negotiable |
| Rental Rate |
| Upon Request Upon Request Upon Request Upon Request |
| Space Use |
| Office |
| Build-Out |
| Full Build-Out |
| Available |
| Now |
4th Floor
| Size |
| 3,054 SF |
| Term |
| Negotiable |
| Rental Rate |
| Upon Request Upon Request Upon Request Upon Request |
| Space Use |
| Office |
| Build-Out |
| Full Build-Out |
| Available |
| 2026-12-01 |
5th Floor
| Size |
| 8,844-24,101 SF |
| Term |
| Negotiable |
| Rental Rate |
| Upon Request Upon Request Upon Request Upon Request |
| Space Use |
| Office |
| Build-Out |
| Partial Build-Out |
| Available |
| Now |
Lower Level
| Size | 6,730 SF |
| Term | Negotiable |
| Rental Rate | Upon Request |
| Space Use | Retail |
| Build-Out | - |
| Available | Now |
Dramatic showroom space formerly occupied by Mitchell Gold. First floor ceiling height of 13 feet. Open internal staircase leading to lower level, both floors are elevator / lift accessible. Dedicated entrance on the corner of Berkeley Street and Columbus Avenue.
- Can be combined with additional space(s) for up to 12,491 SF of adjacent space
1st Floor
| Size | 5,761 SF |
| Term | Negotiable |
| Rental Rate | Upon Request |
| Space Use | Retail |
| Build-Out | - |
| Available | Now |
Dramatic showroom space formerly occupied by Mitchell Gold. First floor ceiling height of 13 feet. Open internal staircase leading to lower level, both floors are elevator / lift accessible. Dedicated entrance on the corner of Berkeley Street and Columbus Avenue.
- Can be combined with additional space(s) for up to 12,491 SF of adjacent space
3rd Floor
| Size | 2,608 SF |
| Term | Negotiable |
| Rental Rate | Upon Request |
| Space Use | Office |
| Build-Out | - |
| Available | Now |
4th Floor
| Size | 1,504 SF |
| Term | Negotiable |
| Rental Rate | Upon Request |
| Space Use | Office |
| Build-Out | Full Build-Out |
| Available | Now |
Excellent opportunity for a variety of uses including physical therapist, medical aesthetics, spa, chiropractor and personal fitness studio. Zoned for medical / office. This suite features five treatment rooms, two sinks, 14’ high ceilings and hardwood floors.
- Fully Built-Out as Standard Office
- Space is in Excellent Condition
4th Floor
| Size | 3,054 SF |
| Term | Negotiable |
| Rental Rate | Upon Request |
| Space Use | Office |
| Build-Out | Full Build-Out |
| Available | 2026-12-01 |
Unique space with large open bar / kitchen area. High ceilings and hardwood floors.
- Listed rate may not include certain utilities, building services and property expenses
- Fully Built-Out as Standard Office
- Mostly Open Floor Plan Layout
- 4 Private Offices
- 1 Conference Room
- Finished Ceilings: 13’
- Corner Space
- Exposed Ceiling
- 13' high ceilings
5th Floor
| Size | 8,844-24,101 SF |
| Term | Negotiable |
| Rental Rate | Upon Request |
| Space Use | Office |
| Build-Out | Partial Build-Out |
| Available | Now |
Unique opportunity for tenants seeking a full floor presence in the Back Bay. Full floor avaiablity with 14'-16' high ceilings and over 20 skylights and four sides of window.
- Listed rate may not include certain utilities, building services and property expenses
- Partially Built-Out as Standard Office
- Open Floor Plan Layout
- Finished Ceilings: 14’ - 16’
- Partially Demolished Space
- Full Floor
Property Overview
The Pledge has completed major building renovations including both lobbies, common areas, bathrooms and bicycle storage. Two 150 ton cooling units in 2016 New main elevator cab and mechanicals. Truly unique building in Boston's Back Bay located two blocks from Back Bay MBTA Station.
- 24 Hour Access
- Commuter Rail
- Metro/Subway
- Bicycle Storage
Property Facts
Presented by
The Pledge of Allegiance Bldg | 209 Columbus Ave
Hmm, there seems to have been an error sending your message. Please try again.
Thanks! Your message was sent.










