Log In/Sign Up
Your email has been sent.
Bridge Centers Building 20971 E Smoky Hill Rd 300 - 5,352 SF of Space Available in Aurora, CO 80015



Highlights
- Lots of parking, secure building, great common area, elevator, etc.
All Available Spaces(3)
Display Rental Rate as
- Space
- Size
- Term
- Rental Rate
- Space Use
- Build-Out
- Available
Small office right of main lobby area on first floor.
- Rate includes utilities, building services and property expenses
- Open Floor Plan Layout
- Space is in Excellent Condition
- Fully Carpeted
- Closed Circuit Television Monitoring (CCTV)
- Drop Ceilings
- Emergency Lighting
- Fully Built-Out as Standard Office
- Finished Ceilings: 8’
- Central Air and Heating
- Security System
- High Ceilings
- After Hours HVAC Available
- Open-Plan
- Lease rate does not include utilities, property expenses or building services
- Mostly Open Floor Plan Layout
- Laboratory
- Central Air and Heating
- Private Restrooms
- Fully Carpeted
- Closed Circuit Television Monitoring (CCTV)
- Corner Space
- Secure Storage
- Emergency Lighting
- Wheelchair Accessible
- Fully Built-Out as Dental Office Space
- Space is in Excellent Condition
- Reception Area
- Elevator Access
- Print/Copy Room
- Security System
- Plug & Play
- Drop Ceilings
- After Hours HVAC Available
- Smoke Detector
- 6 Private Offices
- Central Air and Heating
- Wi-Fi Connectivity
- Fully Carpeted
- Closed Circuit Television Monitoring (CCTV)
- High Ceilings
- Natural Light
- Bicycle Storage
- Atrium
- Reception Area
- Elevator Access
- Balcony
- Security System
- Corner Space
- Drop Ceilings
- After Hours HVAC Available
- Emergency Lighting
| Space | Size | Term | Rental Rate | Space Use | Build-Out | Available |
| 1st Floor, Ste 110 | 300 SF | 1-5 Years | $27.28 CAD/SF/YR $2.27 CAD/SF/MO $8,185 CAD/YR $682.12 CAD/MO | Office | Full Build-Out | Now |
| 2nd Floor, Ste 200 | 3,500 SF | Negotiable | $27.28 CAD/SF/YR $2.27 CAD/SF/MO $95,497 CAD/YR $7,958 CAD/MO | Medical | Full Build-Out | Now |
| 2nd Floor, Ste 203 | 1,552 SF | Negotiable | Upon Request Upon Request Upon Request Upon Request | Office/Medical | - | 2026-05-01 |
1st Floor, Ste 110
| Size |
| 300 SF |
| Term |
| 1-5 Years |
| Rental Rate |
| $27.28 CAD/SF/YR $2.27 CAD/SF/MO $8,185 CAD/YR $682.12 CAD/MO |
| Space Use |
| Office |
| Build-Out |
| Full Build-Out |
| Available |
| Now |
2nd Floor, Ste 200
| Size |
| 3,500 SF |
| Term |
| Negotiable |
| Rental Rate |
| $27.28 CAD/SF/YR $2.27 CAD/SF/MO $95,497 CAD/YR $7,958 CAD/MO |
| Space Use |
| Medical |
| Build-Out |
| Full Build-Out |
| Available |
| Now |
2nd Floor, Ste 203
| Size |
| 1,552 SF |
| Term |
| Negotiable |
| Rental Rate |
| Upon Request Upon Request Upon Request Upon Request |
| Space Use |
| Office/Medical |
| Build-Out |
| - |
| Available |
| 2026-05-01 |
1 of 3
Videos
Matterport 3D Exterior
Matterport 3D Tour
Photos
Street View
Street
Map
1st Floor, Ste 110
| Size | 300 SF |
| Term | 1-5 Years |
| Rental Rate | $27.28 CAD/SF/YR |
| Space Use | Office |
| Build-Out | Full Build-Out |
| Available | Now |
Small office right of main lobby area on first floor.
- Rate includes utilities, building services and property expenses
- Fully Built-Out as Standard Office
- Open Floor Plan Layout
- Finished Ceilings: 8’
- Space is in Excellent Condition
- Central Air and Heating
- Fully Carpeted
- Security System
- Closed Circuit Television Monitoring (CCTV)
- High Ceilings
- Drop Ceilings
- After Hours HVAC Available
- Emergency Lighting
- Open-Plan
1 of 36
Videos
Matterport 3D Exterior
Matterport 3D Tour
Photos
Street View
Street
Map
2nd Floor, Ste 200
| Size | 3,500 SF |
| Term | Negotiable |
| Rental Rate | $27.28 CAD/SF/YR |
| Space Use | Medical |
| Build-Out | Full Build-Out |
| Available | Now |
- Lease rate does not include utilities, property expenses or building services
- Fully Built-Out as Dental Office Space
- Mostly Open Floor Plan Layout
- Space is in Excellent Condition
- Laboratory
- Reception Area
- Central Air and Heating
- Elevator Access
- Private Restrooms
- Print/Copy Room
- Fully Carpeted
- Security System
- Closed Circuit Television Monitoring (CCTV)
- Plug & Play
- Corner Space
- Drop Ceilings
- Secure Storage
- After Hours HVAC Available
- Emergency Lighting
- Smoke Detector
- Wheelchair Accessible
1 of 1
Videos
Matterport 3D Exterior
Matterport 3D Tour
Photos
Street View
Street
Map
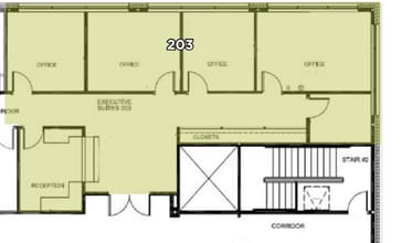
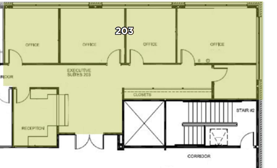
2nd Floor, Ste 203
| Size | 1,552 SF |
| Term | Negotiable |
| Rental Rate | Upon Request |
| Space Use | Office/Medical |
| Build-Out | - |
| Available | 2026-05-01 |
- 6 Private Offices
- Reception Area
- Central Air and Heating
- Elevator Access
- Wi-Fi Connectivity
- Balcony
- Fully Carpeted
- Security System
- Closed Circuit Television Monitoring (CCTV)
- Corner Space
- High Ceilings
- Drop Ceilings
- Natural Light
- After Hours HVAC Available
- Bicycle Storage
- Emergency Lighting
- Atrium
Property Overview
Newer office / medical building with large atrium / lobby, elevator, common area and several great office / medical suites.
- Food Service
- Signage
Property Facts
Building Type
Office
Year Built
2001
Building Height
2 Stories
Building Size
23,460 SF
Building Class
B
Typical Floor Size
12,500 SF
Unfinished Ceiling Height
14’
Parking
97 Surface Parking Spaces
1 1
Fairly walkable
40/100
Very drivable
80/100
Limited public transit
30/100
Moderately bikeable
60/100
1 of 7
Videos
Matterport 3D Exterior
Matterport 3D Tour
Photos
Street View
Street
Map
1 of 1
Presented by
Benjamin Borgers
Bridge Centers Building | 20971 E Smoky Hill Rd
Already a member? Log In
Hmm, there seems to have been an error sending your message. Please try again.
Thanks! Your message was sent.








