Your email has been sent.
The Grove - Bldg C 2100 Manchester Rd 123 - 18,756 SF of Office Space Available in Wheaton, IL 60187



Highlights
- Common areas recent revovated.
All Available Spaces(6)
Display Rental Rate as
- Space
- Size
- Term
- Rental Rate
- Space Use
- Build-Out
- Available
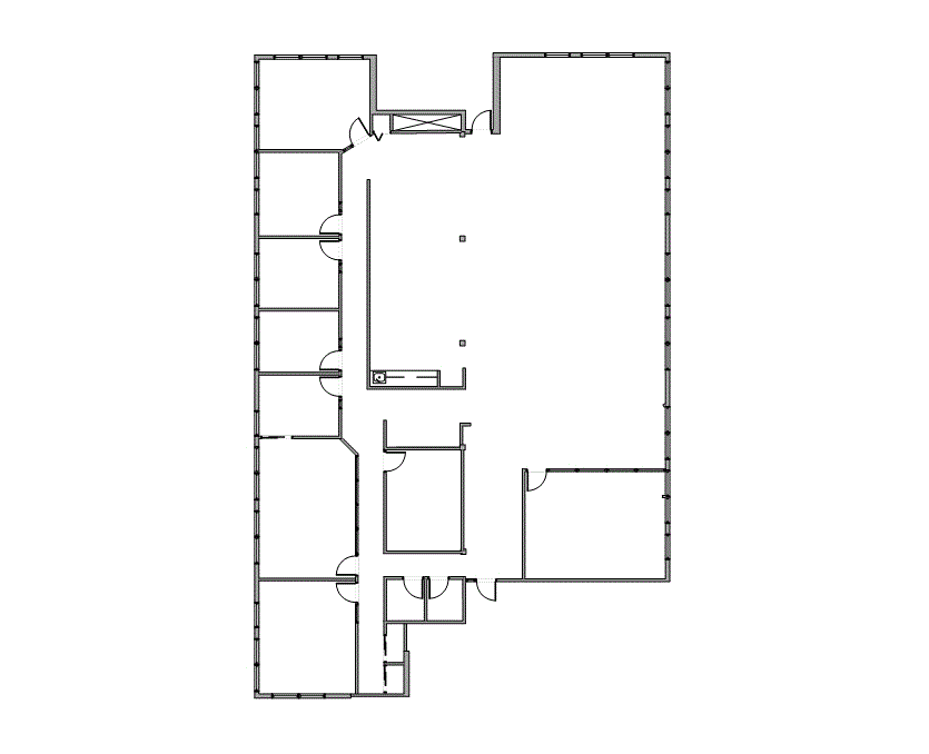
Window Reception Area, 03 Window Offices, 06 Interior Offices, 1 Window Conference Room, 1 Window Break Area, Sink, 1 Closets, Corner Location
- Listed lease rate plus proportional share of electrical cost
- Mostly Open Floor Plan Layout
- 9 Private Offices
- 9 Workstations
- Fully Built-Out as Standard Office
- Fits 8 - 25 People
- 1 Conference Room
- Space is in Excellent Condition
Reception Area, 17 Window Offices, 4 Interior Offices, 1 Bullpen, Open Area, Kitchen, Sink, Work Area, File Or Storage Area, 1 Closets, Corner Location
- Listed lease rate plus proportional share of electrical cost
- Fits 22 - 68 People
- 2 Conference Rooms
- Reception Area
- Fully Built-Out as Standard Office
- 1 Private Office
- 1 Workstation
- Corner Space
Interior office includes shared waiting areas, conference rooms, huddle rooms, lounge, coffee bar, and WiFi.
- Listed lease rate plus proportional share of electrical cost
- Fits 1 Person
- 2 Conference Rooms
- Fully Built-Out as Standard Office
- 1 Private Office
- Space is in Excellent Condition
Window office includes shared waiting areas, conference rooms, huddle rooms, lounge, coffee bar, and WiFi.
- Listed lease rate plus proportional share of electrical cost
- Fits 1 - 2 People
- 2 Conference Rooms
- Fully Built-Out as Standard Office
- 1 Private Office
- Space is in Excellent Condition
Reception, 2 Window Offices, & 1 Bullpen
- Listed lease rate plus proportional share of electrical cost
- Mostly Open Floor Plan Layout
- 8 Private Offices
- 8 Workstations
- Fully Built-Out as Standard Office
- Fits 2 - 6 People
- 2 Conference Rooms
Second Floor Suite With Large Wood Floor Reception Area, 7 Window Offices, 1 Interior Office/Work Room, 3 Closets, Kitchen w/Sink, 1 Large Conference Rooms, 2 Entrances
- Listed lease rate plus proportional share of electrical cost
- Mostly Open Floor Plan Layout
- 8 Private Offices
- 8 Workstations
- Fully Built-Out as Standard Office
- Fits 16 - 50 People
- 2 Conference Rooms
| Space | Size | Term | Rental Rate | Space Use | Build-Out | Available |
| 1st Floor, Ste 1410 | 3,098 SF | Negotiable | $23.30 CAD/SF/YR $1.94 CAD/SF/MO $72,174 CAD/YR $6,015 CAD/MO | Office | Full Build-Out | Now |
| 1st Floor, Ste 1510 | 8,466 SF | 1-3 Years | $23.30 CAD/SF/YR $1.94 CAD/SF/MO $197,232 CAD/YR $16,436 CAD/MO | Office | Full Build-Out | Now |
| 1st Floor, Ste 1621 | 123 SF | Negotiable | $23.30 CAD/SF/YR $1.94 CAD/SF/MO $2,866 CAD/YR $238.79 CAD/MO | Office | Full Build-Out | Now |
| 1st Floor, Ste 1628 | 245 SF | Negotiable | $23.30 CAD/SF/YR $1.94 CAD/SF/MO $5,708 CAD/YR $475.65 CAD/MO | Office | Full Build-Out | Now |
| 2nd Floor, Ste 1720 | 686 SF | Negotiable | $23.30 CAD/SF/YR $1.94 CAD/SF/MO $15,982 CAD/YR $1,332 CAD/MO | Office | Full Build-Out | Now |
| 2nd Floor, Ste 1750 | 6,138 SF | Negotiable | $23.30 CAD/SF/YR $1.94 CAD/SF/MO $142,997 CAD/YR $11,916 CAD/MO | Office | Full Build-Out | Now |
1st Floor, Ste 1410
| Size |
| 3,098 SF |
| Term |
| Negotiable |
| Rental Rate |
| $23.30 CAD/SF/YR $1.94 CAD/SF/MO $72,174 CAD/YR $6,015 CAD/MO |
| Space Use |
| Office |
| Build-Out |
| Full Build-Out |
| Available |
| Now |
1st Floor, Ste 1510
| Size |
| 8,466 SF |
| Term |
| 1-3 Years |
| Rental Rate |
| $23.30 CAD/SF/YR $1.94 CAD/SF/MO $197,232 CAD/YR $16,436 CAD/MO |
| Space Use |
| Office |
| Build-Out |
| Full Build-Out |
| Available |
| Now |
1st Floor, Ste 1621
| Size |
| 123 SF |
| Term |
| Negotiable |
| Rental Rate |
| $23.30 CAD/SF/YR $1.94 CAD/SF/MO $2,866 CAD/YR $238.79 CAD/MO |
| Space Use |
| Office |
| Build-Out |
| Full Build-Out |
| Available |
| Now |
1st Floor, Ste 1628
| Size |
| 245 SF |
| Term |
| Negotiable |
| Rental Rate |
| $23.30 CAD/SF/YR $1.94 CAD/SF/MO $5,708 CAD/YR $475.65 CAD/MO |
| Space Use |
| Office |
| Build-Out |
| Full Build-Out |
| Available |
| Now |
2nd Floor, Ste 1720
| Size |
| 686 SF |
| Term |
| Negotiable |
| Rental Rate |
| $23.30 CAD/SF/YR $1.94 CAD/SF/MO $15,982 CAD/YR $1,332 CAD/MO |
| Space Use |
| Office |
| Build-Out |
| Full Build-Out |
| Available |
| Now |
2nd Floor, Ste 1750
| Size |
| 6,138 SF |
| Term |
| Negotiable |
| Rental Rate |
| $23.30 CAD/SF/YR $1.94 CAD/SF/MO $142,997 CAD/YR $11,916 CAD/MO |
| Space Use |
| Office |
| Build-Out |
| Full Build-Out |
| Available |
| Now |
1st Floor, Ste 1410
| Size | 3,098 SF |
| Term | Negotiable |
| Rental Rate | $23.30 CAD/SF/YR |
| Space Use | Office |
| Build-Out | Full Build-Out |
| Available | Now |
Window Reception Area, 03 Window Offices, 06 Interior Offices, 1 Window Conference Room, 1 Window Break Area, Sink, 1 Closets, Corner Location
- Listed lease rate plus proportional share of electrical cost
- Fully Built-Out as Standard Office
- Mostly Open Floor Plan Layout
- Fits 8 - 25 People
- 9 Private Offices
- 1 Conference Room
- 9 Workstations
- Space is in Excellent Condition
1st Floor, Ste 1510
| Size | 8,466 SF |
| Term | 1-3 Years |
| Rental Rate | $23.30 CAD/SF/YR |
| Space Use | Office |
| Build-Out | Full Build-Out |
| Available | Now |
Reception Area, 17 Window Offices, 4 Interior Offices, 1 Bullpen, Open Area, Kitchen, Sink, Work Area, File Or Storage Area, 1 Closets, Corner Location
- Listed lease rate plus proportional share of electrical cost
- Fully Built-Out as Standard Office
- Fits 22 - 68 People
- 1 Private Office
- 2 Conference Rooms
- 1 Workstation
- Reception Area
- Corner Space
1st Floor, Ste 1621
| Size | 123 SF |
| Term | Negotiable |
| Rental Rate | $23.30 CAD/SF/YR |
| Space Use | Office |
| Build-Out | Full Build-Out |
| Available | Now |
Interior office includes shared waiting areas, conference rooms, huddle rooms, lounge, coffee bar, and WiFi.
- Listed lease rate plus proportional share of electrical cost
- Fully Built-Out as Standard Office
- Fits 1 Person
- 1 Private Office
- 2 Conference Rooms
- Space is in Excellent Condition
1st Floor, Ste 1628
| Size | 245 SF |
| Term | Negotiable |
| Rental Rate | $23.30 CAD/SF/YR |
| Space Use | Office |
| Build-Out | Full Build-Out |
| Available | Now |
Window office includes shared waiting areas, conference rooms, huddle rooms, lounge, coffee bar, and WiFi.
- Listed lease rate plus proportional share of electrical cost
- Fully Built-Out as Standard Office
- Fits 1 - 2 People
- 1 Private Office
- 2 Conference Rooms
- Space is in Excellent Condition
2nd Floor, Ste 1720
| Size | 686 SF |
| Term | Negotiable |
| Rental Rate | $23.30 CAD/SF/YR |
| Space Use | Office |
| Build-Out | Full Build-Out |
| Available | Now |
Reception, 2 Window Offices, & 1 Bullpen
- Listed lease rate plus proportional share of electrical cost
- Fully Built-Out as Standard Office
- Mostly Open Floor Plan Layout
- Fits 2 - 6 People
- 8 Private Offices
- 2 Conference Rooms
- 8 Workstations
2nd Floor, Ste 1750
| Size | 6,138 SF |
| Term | Negotiable |
| Rental Rate | $23.30 CAD/SF/YR |
| Space Use | Office |
| Build-Out | Full Build-Out |
| Available | Now |
Second Floor Suite With Large Wood Floor Reception Area, 7 Window Offices, 1 Interior Office/Work Room, 3 Closets, Kitchen w/Sink, 1 Large Conference Rooms, 2 Entrances
- Listed lease rate plus proportional share of electrical cost
- Fully Built-Out as Standard Office
- Mostly Open Floor Plan Layout
- Fits 16 - 50 People
- 8 Private Offices
- 2 Conference Rooms
- 8 Workstations
Property Overview
Attractive, contemporary, low-rise brick buildings with recently renovated common areas.
- Conferencing Facility
- Property Manager on Site
- Signage
Property Facts
Presented by
The Grove - Bldg C | 2100 Manchester Rd
Hmm, there seems to have been an error sending your message. Please try again.
Thanks! Your message was sent.












