Your email has been sent.
Corporate Office Park @ Dulles Town Center 21000 Atlantic Blvd 9,372 SF of 4-Star Office Space Available in Dulles Town Center, VA 20166



Sublease Highlights
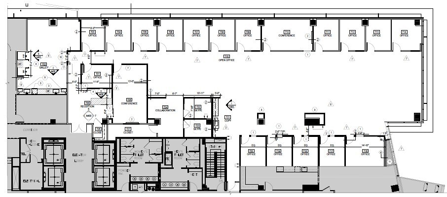
- Suite 750 includes reception area, conference rooms, breakroom, offices and large open area for cubicles
- Building amenities include fitness center, conference center, and tenant lounge with a Monumental Markets kiosk
- Convenient access to Routes 28 and 7, the Dulles Toll Road and Washington Dulles International Airport (IAD)
- Furniture available
- Located adjacent to Dulles Town Center with a myriad of shopping and dining choices
- Furniture available
All Available Space(1)
Display Rental Rate as
- Space
- Size
- Term
- Rental Rate
- Space Use
- Build-Out
- Available
Suite 750 includes reception area, conference rooms, breakroom, offices and large open area for cubicles Building amenities include fitness center, conference center, and tenant lounge with a Monumental Markets kiosk Located adjacent to Dulles Town Center with a myriad of shopping and dining choices Convenient access to Routes 28 and 7, the Dulles Toll Road and Washington Dulles International Airport (IAD) Furniture available
- Sublease space available from current tenant
- Reception Area, Conference Rooms, Breakroom
- Furniture Available
- Adjacent to Dulles Town Center
- Rate includes utilities, building services and property expenses
- Offices and Large Open Area for Cubicles
- Fitness Center, Conference Center, Tenant Lounge
- Access to Routes 28 & 7, Dulles Toll Road & IAD
| Space | Size | Term | Rental Rate | Space Use | Build-Out | Available |
| 7th Floor, Ste 750 | 9,372 SF | Oct 2033 | Upon Request Upon Request Upon Request Upon Request | Office | - | Now |
7th Floor, Ste 750
| Size |
| 9,372 SF |
| Term |
| Oct 2033 |
| Rental Rate |
| Upon Request Upon Request Upon Request Upon Request |
| Space Use |
| Office |
| Build-Out |
| - |
| Available |
| Now |
7th Floor, Ste 750
| Size | 9,372 SF |
| Term | Oct 2033 |
| Rental Rate | Upon Request |
| Space Use | Office |
| Build-Out | - |
| Available | Now |
Suite 750 includes reception area, conference rooms, breakroom, offices and large open area for cubicles Building amenities include fitness center, conference center, and tenant lounge with a Monumental Markets kiosk Located adjacent to Dulles Town Center with a myriad of shopping and dining choices Convenient access to Routes 28 and 7, the Dulles Toll Road and Washington Dulles International Airport (IAD) Furniture available
- Sublease space available from current tenant
- Rate includes utilities, building services and property expenses
- Reception Area, Conference Rooms, Breakroom
- Offices and Large Open Area for Cubicles
- Furniture Available
- Fitness Center, Conference Center, Tenant Lounge
- Adjacent to Dulles Town Center
- Access to Routes 28 & 7, Dulles Toll Road & IAD
Property Overview
Suite 750 includes reception area, conference rooms, breakroom, offices and large open area for cubicles Building amenities include fitness center, conference center, and tenant lounge with a Monumental Markets kiosk Located adjacent to Dulles Town Center with a myriad of shopping and dining choices Convenient access to Routes 28 and 7, the Dulles Toll Road and Washington Dulles International Airport (IAD) Furniture available Contact David Colvin for Lease Rates
- Fitness Center
- Food Service
- Energy Star Labeled
Property Facts
Select Tenants
- Floor
- Tenant Name
- Industry
- 4th
- Alpha Corporation
- Professional, Scientific, and Technical Services
- 3rd
- Antra, Inc.
- Information
- 7th
- Cynet
- Manufacturing
- 7th
- Cynet Systems Inc
- Administrative and Support Services
- 7th
- Integral Financial Group Llc
- Finance and Insurance
- 6th
- Sallie Mae
- Finance and Insurance
- 7th
- SOFIE
- Professional, Scientific, and Technical Services
- Multiple
- Southland Industries, Inc
- Administrative and Support Services
- 7th
- Techwish
- Professional, Scientific, and Technical Services
Presented by
Corporate Office Park @ Dulles Town Center | 21000 Atlantic Blvd
Hmm, there seems to have been an error sending your message. Please try again.
Thanks! Your message was sent.




