Log In/Sign Up
Your email has been sent.
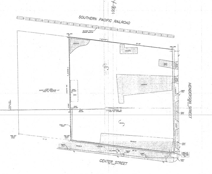
2102 Center - 2102 Center 0.92 Acres of Commercial Land in Houston, TX 77007



Investment Highlights
- Prime location in the heart of the Washington Corridor
- Clean Environmental & Survey Available
- 0.92AC Total
Executive Summary
This development opportunity is centrally located just minutes from downtown in the heart of the Washington Corridor & Sawyer Heights area. Prime location for mixed-use or retail development.
Offering Summary:
This property totals 0.92AC, in the heart of the Washington Corridor & Sawyer Heights, is a prime location for mixed-use, multifamily, or retail development.
Property Highlights:
0.92AC Total (39,936 SF)
5 curb-cuts
City of Houston Utilities
Clean Phase 1 Environmental & Survey Available
Offering Summary:
This property totals 0.92AC, in the heart of the Washington Corridor & Sawyer Heights, is a prime location for mixed-use, multifamily, or retail development.
Property Highlights:
0.92AC Total (39,936 SF)
5 curb-cuts
City of Houston Utilities
Clean Phase 1 Environmental & Survey Available
Property Facts
1 Lot Available
Lot
| Lot Size | 0.92 AC |
| Lot Size | 0.92 AC |
This development opportunity is centrally located just minutes from downtown in the heart of the Washington Corridor & Sawyer Heights area. Prime location for mixed-use or retail development.
Description
This development opportunity is centrally located just minutes from downtown in the heart of the Washington Corridor & Sawyer Heights area. Prime location for mixed-us or retail development.
1 1
Moderately walkable
70/100
Moderately drivable
70/100
Good public transit
60/100
Moderately bikeable
70/100
Property Taxes
| Parcel Number | 0051870000001 | Improvements Assessment | $0 CAD |
| Land Assessment | $5,211,784 CAD | Total Assessment | $5,211,784 CAD |
Property Taxes
Parcel Number
0051870000001
Land Assessment
$5,211,784 CAD
Improvements Assessment
$0 CAD
Total Assessment
$5,211,784 CAD
1 of 6
Videos
Matterport 3D Exterior
Matterport 3D Tour
Photos
Street View
Street
Map
1 of 1
Presented by
2102 Center - 2102 Center
Already a member? Log In
Hmm, there seems to have been an error sending your message. Please try again.
Thanks! Your message was sent.
