Your email has been sent.
Windsong Office Park Austin, TX 78704 1,571 - 4,551 SF of Office Space Available



Park Highlights
- Abundant Natural Light: Every office features exterior windows, and the third floor includes skylights that fill spaces with soft, natural light.
- Modern and Functional Design: Each suite is equipped with fiber-optic internet, private restrooms, a break area or kitchenette, and a reception space.
- Professional Presentation: Prominent building signage and directory listing enhance visibility and brand recognition.
- Comfort and Convenience: Individually controlled HVAC systems allow each suite to maintain its ideal temperature year-round.
- 24/7 Secure Access: Tenants enjoy around-the-clock entry.
- Outdoor Appeal: The beautifully landscaped garden courtyard and private balconies offer peaceful spaces for breaks or informal meetings.
Park Facts
All Available Spaces(2)
Display Rental Rate as
- Space
- Size
- Term
- Rental Rate
- Space Use
- Build-Out
- Available
Suite 24 offers a bright, functional main-floor workspace designed for professionals seeking quality and convenience. The suite features seven spacious, picture-windowed offices, a welcoming reception/waiting area, a private restroom, and a workroom/break area complete with an under-counter refrigerator and microwave, ideal for team comfort. Enjoy tenant-controlled 24-hour HVAC, hardwood floors, and high-speed fiber internet available through Google Fiber for seamless connectivity. Located directly in front of the main building walkway, the suite provides excellent accessibility and visibility, enhanced by prominent building signage. (For added flexibility, Offices 2 and 3 can be combined to create a large conference room tailored to your business needs.)
- Lease rate does not include utilities, property expenses or building services
- Fits 4 - 13 People
- Finished Ceilings: 10’
- Central Air and Heating
- Wi-Fi Connectivity
- Private Restrooms
- Bicycle Storage
- Energy Performance Rating - B
- Smoke Detector
- Reception/Waiting Area
- Workroom/Breakroom with Fridge and Microwave
- High-Speed Google Fiber Available
- Fully Built-Out as Standard Office
- 7 Private Offices
- Space is in Excellent Condition
- Reception Area
- Print/Copy Room
- Natural Light
- Accent Lighting
- Hardwood Floors
- 7 Offices w/ Natural Light & Windows
- Private Restroom
- 24-Hour, Tenant-Controlled HVAC
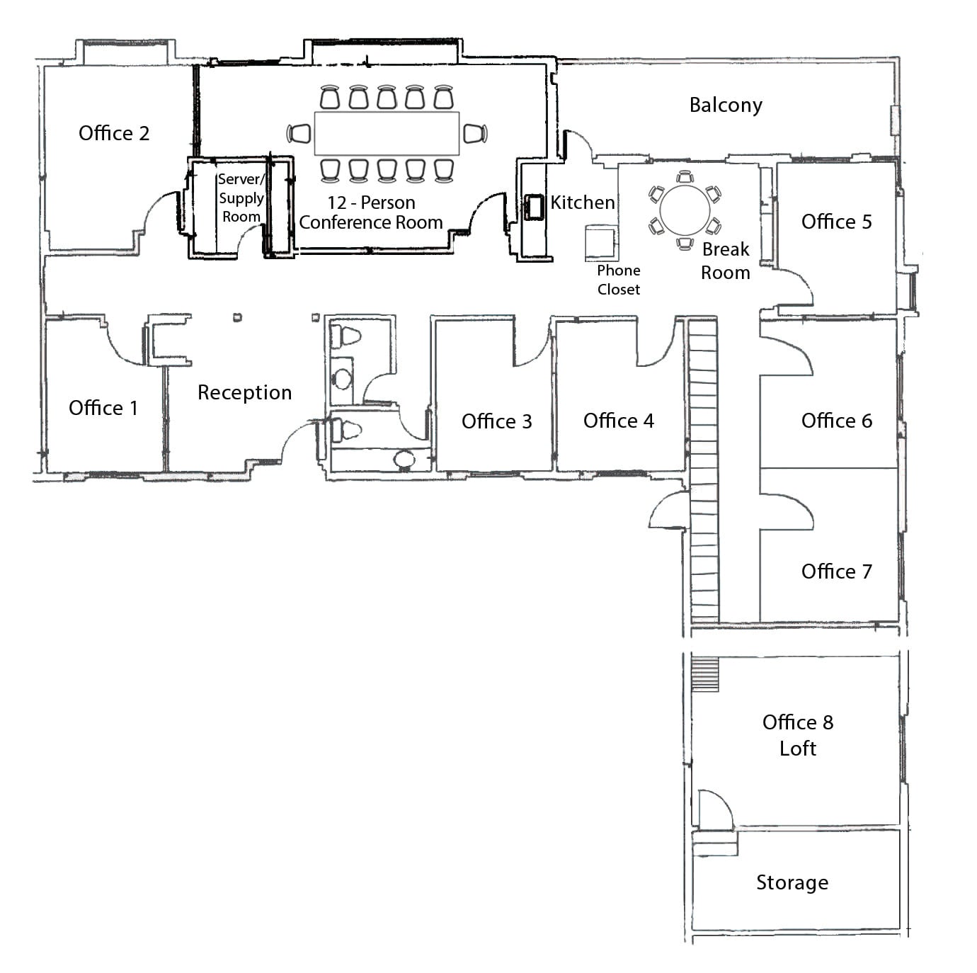
This distinctive two-level suite offers a refined blend of functionality and architectural character rarely found in the market. The main floor features nine window-lined private offices, while a spacious loft office on the second floor provides an elevated and inspiring workspace. Premium finishes throughout include soaring vaulted ceilings and skylights that bathe the space in natural light. Additional amenities include a 12-person conference room, a fully appointed kitchen, two private restrooms, a dedicated server room, three storage areas, a professional reception area, a breakroom, and an expansive private outdoor balcony — ideal for client entertaining or team gatherings. (Could divide the conference room into two additional offices).
- Lease rate does not include utilities, property expenses or building services
- Fits 11 - 24 People
- 1 Workstation
- Central Air and Heating
- Wi-Fi Connectivity
- Balcony
- High Ceilings
- Distinctive two-level suite with modern design
- Vaulted ceilings and skylights add natural light
- Reception area with ample built-in storage
- Fully Built-Out as Standard Office
- 10 Private Offices
- Space is in Excellent Condition
- Reception Area
- Print/Copy Room
- Private Restrooms
- Natural Light
- Eight private offices including loft office
- Kitchen, restrooms, and dedicated server room
- Private balcony for clients or team events
| Space | Size | Term | Rental Rate | Space Use | Build-Out | Available |
| 2nd Floor, Ste 24 | 1,571 SF | 3-5 Years | $25.99 CAD/SF/YR $2.17 CAD/SF/MO $40,829 CAD/YR $3,402 CAD/MO | Office | Full Build-Out | Now |
| 3rd Floor, Ste 33 | 2,980 SF | 3-5 Years | $27.36 CAD/SF/YR $2.28 CAD/SF/MO $81,523 CAD/YR $6,794 CAD/MO | Office | Full Build-Out | 2027-01-01 |
2111 Dickson Dr - 2nd Floor - Ste 24
2111 Dickson Dr - 3rd Floor - Ste 33
2111 Dickson Dr - 2nd Floor - Ste 24
| Size | 1,571 SF |
| Term | 3-5 Years |
| Rental Rate | $25.99 CAD/SF/YR |
| Space Use | Office |
| Build-Out | Full Build-Out |
| Available | Now |
Suite 24 offers a bright, functional main-floor workspace designed for professionals seeking quality and convenience. The suite features seven spacious, picture-windowed offices, a welcoming reception/waiting area, a private restroom, and a workroom/break area complete with an under-counter refrigerator and microwave, ideal for team comfort. Enjoy tenant-controlled 24-hour HVAC, hardwood floors, and high-speed fiber internet available through Google Fiber for seamless connectivity. Located directly in front of the main building walkway, the suite provides excellent accessibility and visibility, enhanced by prominent building signage. (For added flexibility, Offices 2 and 3 can be combined to create a large conference room tailored to your business needs.)
- Lease rate does not include utilities, property expenses or building services
- Fully Built-Out as Standard Office
- Fits 4 - 13 People
- 7 Private Offices
- Finished Ceilings: 10’
- Space is in Excellent Condition
- Central Air and Heating
- Reception Area
- Wi-Fi Connectivity
- Print/Copy Room
- Private Restrooms
- Natural Light
- Bicycle Storage
- Accent Lighting
- Energy Performance Rating - B
- Hardwood Floors
- Smoke Detector
- 7 Offices w/ Natural Light & Windows
- Reception/Waiting Area
- Private Restroom
- Workroom/Breakroom with Fridge and Microwave
- 24-Hour, Tenant-Controlled HVAC
- High-Speed Google Fiber Available
2111 Dickson Dr - 3rd Floor - Ste 33
| Size | 2,980 SF |
| Term | 3-5 Years |
| Rental Rate | $27.36 CAD/SF/YR |
| Space Use | Office |
| Build-Out | Full Build-Out |
| Available | 2027-01-01 |
This distinctive two-level suite offers a refined blend of functionality and architectural character rarely found in the market. The main floor features nine window-lined private offices, while a spacious loft office on the second floor provides an elevated and inspiring workspace. Premium finishes throughout include soaring vaulted ceilings and skylights that bathe the space in natural light. Additional amenities include a 12-person conference room, a fully appointed kitchen, two private restrooms, a dedicated server room, three storage areas, a professional reception area, a breakroom, and an expansive private outdoor balcony — ideal for client entertaining or team gatherings. (Could divide the conference room into two additional offices).
- Lease rate does not include utilities, property expenses or building services
- Fully Built-Out as Standard Office
- Fits 11 - 24 People
- 10 Private Offices
- 1 Workstation
- Space is in Excellent Condition
- Central Air and Heating
- Reception Area
- Wi-Fi Connectivity
- Print/Copy Room
- Balcony
- Private Restrooms
- High Ceilings
- Natural Light
- Distinctive two-level suite with modern design
- Eight private offices including loft office
- Vaulted ceilings and skylights add natural light
- Kitchen, restrooms, and dedicated server room
- Reception area with ample built-in storage
- Private balcony for clients or team events
Park Overview
Windsong Office Park — Premier Office Space for Lease in Central Austin. Nestled in the heart of South Austin, Windsong Office Park offers a distinctive blend of professional sophistication and neighborhood charm. This well-maintained, multi-story office property provides flexible suite options designed to meet the needs of modern businesses—from creative startups to established firms looking for an inspiring workspace. Conveniently located near South Lamar Boulevard and Menchaca in Austin’s 78704 zip code, Windsong Office Park offers quick access to downtown Austin, Mopac Expressway (Loop 1), and Highway 71. Several Capital Metro bus routes service the nearby South Lamar corridor, providing simple, citywide connectivity for employees and visitors. Windsong Office Park is surrounded by some of Austin’s favorite dining and retail spots. Just a short walk away, tenants can enjoy local staples like Matt’s El Rancho, Kerbey Lane Café, Grata Pizza, Papalote Taco House, Wholly Cow Burger, and Hattie B’s Hot Chicken. The area also features convenient stops like Walgreens, Randalls Grocery, and several CapMetro bus routes along South Lamar, making daily commutes and errands effortless. From the serene garden courtyard to the abundance of natural light, Windsong Office Park was designed for productivity, comfort, and connection. Whether hosting clients, leading team meetings, or focusing on a creative project, this thoughtfully designed environment supports a balanced and professional atmosphere in one of Austin’s most desirable business districts.
- 24 Hour Access
- Courtyard
- Signage
- Skylights
- Tenant Controlled HVAC
- Air Conditioning
- Balcony
- Fiber Optic Internet
Presented by
Windsong Office Park
Windsong Office Park | Austin, TX 78704
Hmm, there seems to have been an error sending your message. Please try again.
Thanks! Your message was sent.






