Your email has been sent.
212 W Superior St 1,895 - 40,193 SF of Office Space Available in Chicago, IL 60654

All Available Spaces(7)
Display Rental Rate as
- Space
- Size
- Term
- Rental Rate
- Space Use
- Build-Out
- Available
Office suite for lease containing a few private offices, 6 workstations, and a conferencing facility.
- Listed rate may not include certain utilities, building services and property expenses
- Mostly Open Floor Plan Layout
- 1 Conference Room
- Central Air and Heating
- Fully Built-Out as Standard Office
- 3 Private Offices
- 6 Workstations
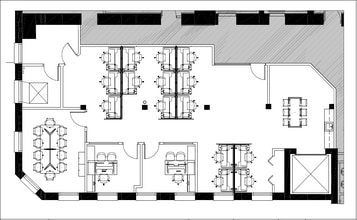
Office suite for lease featuring one dedicated private office, 2 conferencing rooms, and numerous workstations scattered across the floor.
- Listed rate may not include certain utilities, building services and property expenses
- Mostly Open Floor Plan Layout
- 2 Conference Rooms
- Fully Built-Out as Standard Office
- 1 Private Office
- 16 Workstations
- Listed rate may not include certain utilities, building services and property expenses
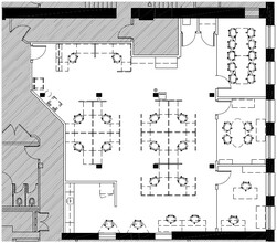
Office suite for lease containing 2 private offices, 15 workstations, and one dedicated conferencing room.
- Listed rate may not include certain utilities, building services and property expenses
- Mostly Open Floor Plan Layout
- 1 Conference Room
- Space is in Excellent Condition
- Fully Built-Out as Standard Office
- 2 Private Offices
- 15 Workstations
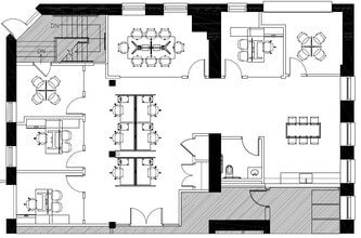
Office suite for lease containing numerous workstations, 5 private offices, and one dedicated conferencing facility.
- Listed rate may not include certain utilities, building services and property expenses
- Mostly Open Floor Plan Layout
- 1 Conference Room
- Can be combined with additional space(s) for up to 28,624 SF of adjacent space
- Fully Built-Out as Standard Office
- 5 Private Offices
- 48 Workstations
Office suite for lease containing numerous workstations, offices and conferencing facilities.
- Listed rate may not include certain utilities, building services and property expenses
- Mostly Open Floor Plan Layout
- Can be combined with additional space(s) for up to 28,624 SF of adjacent space
- Fully Built-Out as Standard Office
- Conference Rooms
Office suite for lease featuring a fairly open plan and 4 private offices.
- Listed rate may not include certain utilities, building services and property expenses
- Mostly Open Floor Plan Layout
- Fully Built-Out as Standard Office
- 4 Private Offices
| Space | Size | Term | Rental Rate | Space Use | Build-Out | Available |
| 1st Floor, Ste 130 | 2,360 SF | 1-10 Years | $38.27 CAD/SF/YR $3.19 CAD/SF/MO $90,318 CAD/YR $7,527 CAD/MO | Office | Full Build-Out | Now |
| 2nd Floor, Ste 200 | 2,925 SF | 1-10 Years | $47.84 CAD/SF/YR $3.99 CAD/SF/MO $139,926 CAD/YR $11,661 CAD/MO | Office | Full Build-Out | Now |
| 2nd Floor, Ste 201 | 1,895 SF | 1-10 Years | $49.20 CAD/SF/YR $4.10 CAD/SF/MO $93,243 CAD/YR $7,770 CAD/MO | Office | - | 2026-11-01 |
| 2nd Floor, Ste 202 | 2,060 SF | 1-10 Years | $45.10 CAD/SF/YR $3.76 CAD/SF/MO $92,915 CAD/YR $7,743 CAD/MO | Office | Full Build-Out | 2026-06-01 |
| 3rd Floor, Ste 301 | 14,312 SF | 1-10 Years | $44.42 CAD/SF/YR $3.70 CAD/SF/MO $635,753 CAD/YR $52,979 CAD/MO | Office | Full Build-Out | 2027-03-01 |
| 4th Floor, Ste 400 | 14,312 SF | 1-10 Years | $44.42 CAD/SF/YR $3.70 CAD/SF/MO $635,753 CAD/YR $52,979 CAD/MO | Office | Full Build-Out | 2027-03-01 |
| 5th Floor, Ste 500 | 2,329 SF | 1-10 Years | $50.57 CAD/SF/YR $4.21 CAD/SF/MO $117,781 CAD/YR $9,815 CAD/MO | Office | Full Build-Out | 2026-09-01 |
1st Floor, Ste 130
| Size |
| 2,360 SF |
| Term |
| 1-10 Years |
| Rental Rate |
| $38.27 CAD/SF/YR $3.19 CAD/SF/MO $90,318 CAD/YR $7,527 CAD/MO |
| Space Use |
| Office |
| Build-Out |
| Full Build-Out |
| Available |
| Now |
2nd Floor, Ste 200
| Size |
| 2,925 SF |
| Term |
| 1-10 Years |
| Rental Rate |
| $47.84 CAD/SF/YR $3.99 CAD/SF/MO $139,926 CAD/YR $11,661 CAD/MO |
| Space Use |
| Office |
| Build-Out |
| Full Build-Out |
| Available |
| Now |
2nd Floor, Ste 201
| Size |
| 1,895 SF |
| Term |
| 1-10 Years |
| Rental Rate |
| $49.20 CAD/SF/YR $4.10 CAD/SF/MO $93,243 CAD/YR $7,770 CAD/MO |
| Space Use |
| Office |
| Build-Out |
| - |
| Available |
| 2026-11-01 |
2nd Floor, Ste 202
| Size |
| 2,060 SF |
| Term |
| 1-10 Years |
| Rental Rate |
| $45.10 CAD/SF/YR $3.76 CAD/SF/MO $92,915 CAD/YR $7,743 CAD/MO |
| Space Use |
| Office |
| Build-Out |
| Full Build-Out |
| Available |
| 2026-06-01 |
3rd Floor, Ste 301
| Size |
| 14,312 SF |
| Term |
| 1-10 Years |
| Rental Rate |
| $44.42 CAD/SF/YR $3.70 CAD/SF/MO $635,753 CAD/YR $52,979 CAD/MO |
| Space Use |
| Office |
| Build-Out |
| Full Build-Out |
| Available |
| 2027-03-01 |
4th Floor, Ste 400
| Size |
| 14,312 SF |
| Term |
| 1-10 Years |
| Rental Rate |
| $44.42 CAD/SF/YR $3.70 CAD/SF/MO $635,753 CAD/YR $52,979 CAD/MO |
| Space Use |
| Office |
| Build-Out |
| Full Build-Out |
| Available |
| 2027-03-01 |
5th Floor, Ste 500
| Size |
| 2,329 SF |
| Term |
| 1-10 Years |
| Rental Rate |
| $50.57 CAD/SF/YR $4.21 CAD/SF/MO $117,781 CAD/YR $9,815 CAD/MO |
| Space Use |
| Office |
| Build-Out |
| Full Build-Out |
| Available |
| 2026-09-01 |
1st Floor, Ste 130
| Size | 2,360 SF |
| Term | 1-10 Years |
| Rental Rate | $38.27 CAD/SF/YR |
| Space Use | Office |
| Build-Out | Full Build-Out |
| Available | Now |
Office suite for lease containing a few private offices, 6 workstations, and a conferencing facility.
- Listed rate may not include certain utilities, building services and property expenses
- Fully Built-Out as Standard Office
- Mostly Open Floor Plan Layout
- 3 Private Offices
- 1 Conference Room
- 6 Workstations
- Central Air and Heating
2nd Floor, Ste 200
| Size | 2,925 SF |
| Term | 1-10 Years |
| Rental Rate | $47.84 CAD/SF/YR |
| Space Use | Office |
| Build-Out | Full Build-Out |
| Available | Now |
Office suite for lease featuring one dedicated private office, 2 conferencing rooms, and numerous workstations scattered across the floor.
- Listed rate may not include certain utilities, building services and property expenses
- Fully Built-Out as Standard Office
- Mostly Open Floor Plan Layout
- 1 Private Office
- 2 Conference Rooms
- 16 Workstations
2nd Floor, Ste 201
| Size | 1,895 SF |
| Term | 1-10 Years |
| Rental Rate | $49.20 CAD/SF/YR |
| Space Use | Office |
| Build-Out | - |
| Available | 2026-11-01 |
- Listed rate may not include certain utilities, building services and property expenses
2nd Floor, Ste 202
| Size | 2,060 SF |
| Term | 1-10 Years |
| Rental Rate | $45.10 CAD/SF/YR |
| Space Use | Office |
| Build-Out | Full Build-Out |
| Available | 2026-06-01 |
Office suite for lease containing 2 private offices, 15 workstations, and one dedicated conferencing room.
- Listed rate may not include certain utilities, building services and property expenses
- Fully Built-Out as Standard Office
- Mostly Open Floor Plan Layout
- 2 Private Offices
- 1 Conference Room
- 15 Workstations
- Space is in Excellent Condition
3rd Floor, Ste 301
| Size | 14,312 SF |
| Term | 1-10 Years |
| Rental Rate | $44.42 CAD/SF/YR |
| Space Use | Office |
| Build-Out | Full Build-Out |
| Available | 2027-03-01 |
Office suite for lease containing numerous workstations, 5 private offices, and one dedicated conferencing facility.
- Listed rate may not include certain utilities, building services and property expenses
- Fully Built-Out as Standard Office
- Mostly Open Floor Plan Layout
- 5 Private Offices
- 1 Conference Room
- 48 Workstations
- Can be combined with additional space(s) for up to 28,624 SF of adjacent space
4th Floor, Ste 400
| Size | 14,312 SF |
| Term | 1-10 Years |
| Rental Rate | $44.42 CAD/SF/YR |
| Space Use | Office |
| Build-Out | Full Build-Out |
| Available | 2027-03-01 |
Office suite for lease containing numerous workstations, offices and conferencing facilities.
- Listed rate may not include certain utilities, building services and property expenses
- Fully Built-Out as Standard Office
- Mostly Open Floor Plan Layout
- Conference Rooms
- Can be combined with additional space(s) for up to 28,624 SF of adjacent space
5th Floor, Ste 500
| Size | 2,329 SF |
| Term | 1-10 Years |
| Rental Rate | $50.57 CAD/SF/YR |
| Space Use | Office |
| Build-Out | Full Build-Out |
| Available | 2026-09-01 |
Office suite for lease featuring a fairly open plan and 4 private offices.
- Listed rate may not include certain utilities, building services and property expenses
- Fully Built-Out as Standard Office
- Mostly Open Floor Plan Layout
- 4 Private Offices
Property Overview
This 6-story heavy timber and brick loft office building is located in Chicago’s vibrant River North Gallery District saturated with popular restaurants and art galleries. The property’s prominent location provides tenants excellent access to CTA train and bus lines, DIVVY bicycle stations and the Kennedy Expressway.
- 24 Hour Access
- Controlled Access
- Metro/Subway
- Security System
- Energy Star Labeled
- Central Heating
- Air Conditioning
Property Facts
Presented by
212 W Superior St
Hmm, there seems to have been an error sending your message. Please try again.
Thanks! Your message was sent.




















