Your email has been sent.
Heavy Industrial Corporate Facility 2121 Holston Bend Dr 66,270 - 436,332 SF of Industrial Space Available in Mascot, TN 37806


Highlights
- Heavy industrial property ideally suited for heavy or light manufacturing, distribution, or flex space.
- High clear height and 50-foot by 50-foot column spans create a space suited for any number of end users.
- 20,000 amps of electrical power available with reinforced concrete floors make it ideal for heavy machinery.
- Turnkey opportunity with existing in-place heavy utilities, including electrical power, water supply, natural gas, and waste.
Features
All Available Spaces(3)
Display Rental Rate as
- Space
- Size
- Term
- Rental Rate
- Space Use
- Build-Out
- Available
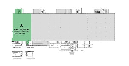
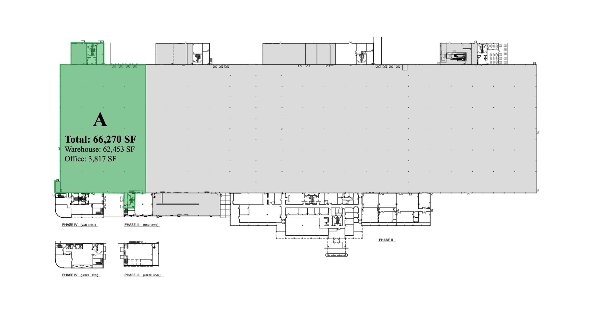
This 66,270-square-foot space offers a balance of 62,453 square feet of warehouse space and 3,817 square feet of office space. Located on the west side of the property, Section A provides an ideal setup for businesses needing both distribution and manufacturing functionality. This space has a 24-foot clear height, pallet racking, and heavy utilities, including 4,000 amps of 480-volt/3-phase power. This space could be demised in multiple ways to meet a variety of tenant needs.
- Includes 3,817 SF of dedicated office space
- Can be combined with additional space(s) for up to 436,332 SF of adjacent space
- Heavy utilities, including 4,000A of 480V power
- 2 Drive Ins
- 4 Loading Docks
- Four dock high doors and two drive-in doors
At 229,270 square feet, this is the largest section of the facility, with 179,970 square feet of warehouse space and 49,300 square feet of office space. Its mix of 24 feet and 51 feet clear heights and extensive crane infrastructure makes it ideal for heavy manufacturing or industrial operations. This space has three dock-high doors and three drive-in doors. The space also features 8,000 amps of 480-volt, 3-phase electrical power and an existing plant air system. It is heated and cooled throughout. This space could be demised in multiple ways to meet a variety of tenant needs.
- Lease rate does not include utilities, property expenses or building services
- 3 Drive Ins
- 3 Loading Docks
- Private Restrooms
- Executive office area
- Existing plant air system
- Includes 49,300 SF of dedicated office space
- Can be combined with additional space(s) for up to 436,332 SF of adjacent space
- Central Air and Heating
- Heavy utilities, including 8,000A of 480V power
- Existing high-bay cranes
Comprising 140,792 square feet in total, 130,682 square feet of warehouse space, and 10,110 square feet of office space, located on the east side of the property. It includes an on-site cafeteria and up to 10,110 square feet of office space. It is provided with heavy utilities and has 8,000 amps of 480-volt/3-phase electrical power. The space has four dock-high doors and two drive-in doors, plus additional covered and sprinklered exterior storage. This space could be demised in multiple ways to meet a variety of tenant needs.
- Lease rate does not include utilities, property expenses or building services
- 2 Drive Ins
- 4 Loading Docks
- Cafeteria space and ample office footprint
- Exterior covered and sprinklered storage area
- Includes 10,110 SF of dedicated office space
- Can be combined with additional space(s) for up to 436,332 SF of adjacent space
- Heavy utilities, including 8,000 A of 480 V power
- Four dock doors and two drive-in doors
| Space | Size | Term | Rental Rate | Space Use | Build-Out | Available |
| 1st Floor - A | 66,270 SF | 10 Years | Upon Request Upon Request Upon Request Upon Request | Industrial | - | Now |
| 1st Floor - B | 229,270 SF | Negotiable | Upon Request Upon Request Upon Request Upon Request | Industrial | Full Build-Out | Now |
| 1st Floor - C | 140,792 SF | Negotiable | Upon Request Upon Request Upon Request Upon Request | Industrial | Full Build-Out | Now |
1st Floor - A
| Size |
| 66,270 SF |
| Term |
| 10 Years |
| Rental Rate |
| Upon Request Upon Request Upon Request Upon Request |
| Space Use |
| Industrial |
| Build-Out |
| - |
| Available |
| Now |
1st Floor - B
| Size |
| 229,270 SF |
| Term |
| Negotiable |
| Rental Rate |
| Upon Request Upon Request Upon Request Upon Request |
| Space Use |
| Industrial |
| Build-Out |
| Full Build-Out |
| Available |
| Now |
1st Floor - C
| Size |
| 140,792 SF |
| Term |
| Negotiable |
| Rental Rate |
| Upon Request Upon Request Upon Request Upon Request |
| Space Use |
| Industrial |
| Build-Out |
| Full Build-Out |
| Available |
| Now |
1st Floor - A
| Size | 66,270 SF |
| Term | 10 Years |
| Rental Rate | Upon Request |
| Space Use | Industrial |
| Build-Out | - |
| Available | Now |
This 66,270-square-foot space offers a balance of 62,453 square feet of warehouse space and 3,817 square feet of office space. Located on the west side of the property, Section A provides an ideal setup for businesses needing both distribution and manufacturing functionality. This space has a 24-foot clear height, pallet racking, and heavy utilities, including 4,000 amps of 480-volt/3-phase power. This space could be demised in multiple ways to meet a variety of tenant needs.
- Includes 3,817 SF of dedicated office space
- 2 Drive Ins
- Can be combined with additional space(s) for up to 436,332 SF of adjacent space
- 4 Loading Docks
- Heavy utilities, including 4,000A of 480V power
- Four dock high doors and two drive-in doors
1st Floor - B
| Size | 229,270 SF |
| Term | Negotiable |
| Rental Rate | Upon Request |
| Space Use | Industrial |
| Build-Out | Full Build-Out |
| Available | Now |
At 229,270 square feet, this is the largest section of the facility, with 179,970 square feet of warehouse space and 49,300 square feet of office space. Its mix of 24 feet and 51 feet clear heights and extensive crane infrastructure makes it ideal for heavy manufacturing or industrial operations. This space has three dock-high doors and three drive-in doors. The space also features 8,000 amps of 480-volt, 3-phase electrical power and an existing plant air system. It is heated and cooled throughout. This space could be demised in multiple ways to meet a variety of tenant needs.
- Lease rate does not include utilities, property expenses or building services
- Includes 49,300 SF of dedicated office space
- 3 Drive Ins
- Can be combined with additional space(s) for up to 436,332 SF of adjacent space
- 3 Loading Docks
- Central Air and Heating
- Private Restrooms
- Heavy utilities, including 8,000A of 480V power
- Executive office area
- Existing high-bay cranes
- Existing plant air system
1st Floor - C
| Size | 140,792 SF |
| Term | Negotiable |
| Rental Rate | Upon Request |
| Space Use | Industrial |
| Build-Out | Full Build-Out |
| Available | Now |
Comprising 140,792 square feet in total, 130,682 square feet of warehouse space, and 10,110 square feet of office space, located on the east side of the property. It includes an on-site cafeteria and up to 10,110 square feet of office space. It is provided with heavy utilities and has 8,000 amps of 480-volt/3-phase electrical power. The space has four dock-high doors and two drive-in doors, plus additional covered and sprinklered exterior storage. This space could be demised in multiple ways to meet a variety of tenant needs.
- Lease rate does not include utilities, property expenses or building services
- Includes 10,110 SF of dedicated office space
- 2 Drive Ins
- Can be combined with additional space(s) for up to 436,332 SF of adjacent space
- 4 Loading Docks
- Heavy utilities, including 8,000 A of 480 V power
- Cafeteria space and ample office footprint
- Four dock doors and two drive-in doors
- Exterior covered and sprinklered storage area
Matterport 3D Tours
Property Overview
This 436,322 square foot heavy manufacturing and industrial facility in Knoxville's Eastbridge Business Park is designed for large-scale manufacturing and distribution. Situated on 23 acres just 14 miles from the city's downtown, the building combines robust manufacturing infrastructure with efficient logistics capabilities. The facility features 20,000A of electrical service, a robust compressed air system, and six overhead cranes ranging from 5 to 10 tons, making it well-suited for all types of manufacturing users. Warehouse space totals 367,324 square feet with a general 24-foot clear height and approximately 40,000 square feet at a 51-foot clear height. This, combined with 50-foot by 50-foot column spacing, provides ample vertical storage and flexible floor layouts. Operations are supported by 11 dock-high doors and 10 drive-in doors, ensuring smooth inbound and outbound freight movement. Office space of 69,000 SF includes an executive suite, two large cafeterias, and gym, supporting both administrative and workforce needs on site. The building is fully climate-controlled, LED-lit, and protected by a wet sprinkler system. With 368 parking spaces, the property accommodates large staffing requirements. Proximity to Interstate-40, Interstate-75, and Interstate-81 positions the site for regional and national distribution, while McGhee Tyson Airport (less than an hour away) enhances national connectivity. Combined with Tennessee’s favorable business climate, this property offers a rare opportunity to lease a high-capacity, infrastructure-rich industrial facility in one of East Tennessee’s most connected locations
Manufacturing Facility Facts
Marketing Brochure
Demographics
Regional Accessibility
Presented by
Heavy Industrial Corporate Facility | 2121 Holston Bend Dr
Hmm, there seems to have been an error sending your message. Please try again.
Thanks! Your message was sent.









