Log In/Sign Up
Your email has been sent.
All Available Space(1)
Display Rental Rate as
- Space
- Size
- Term
- Rental Rate
- Space Use
- Condition
- Available
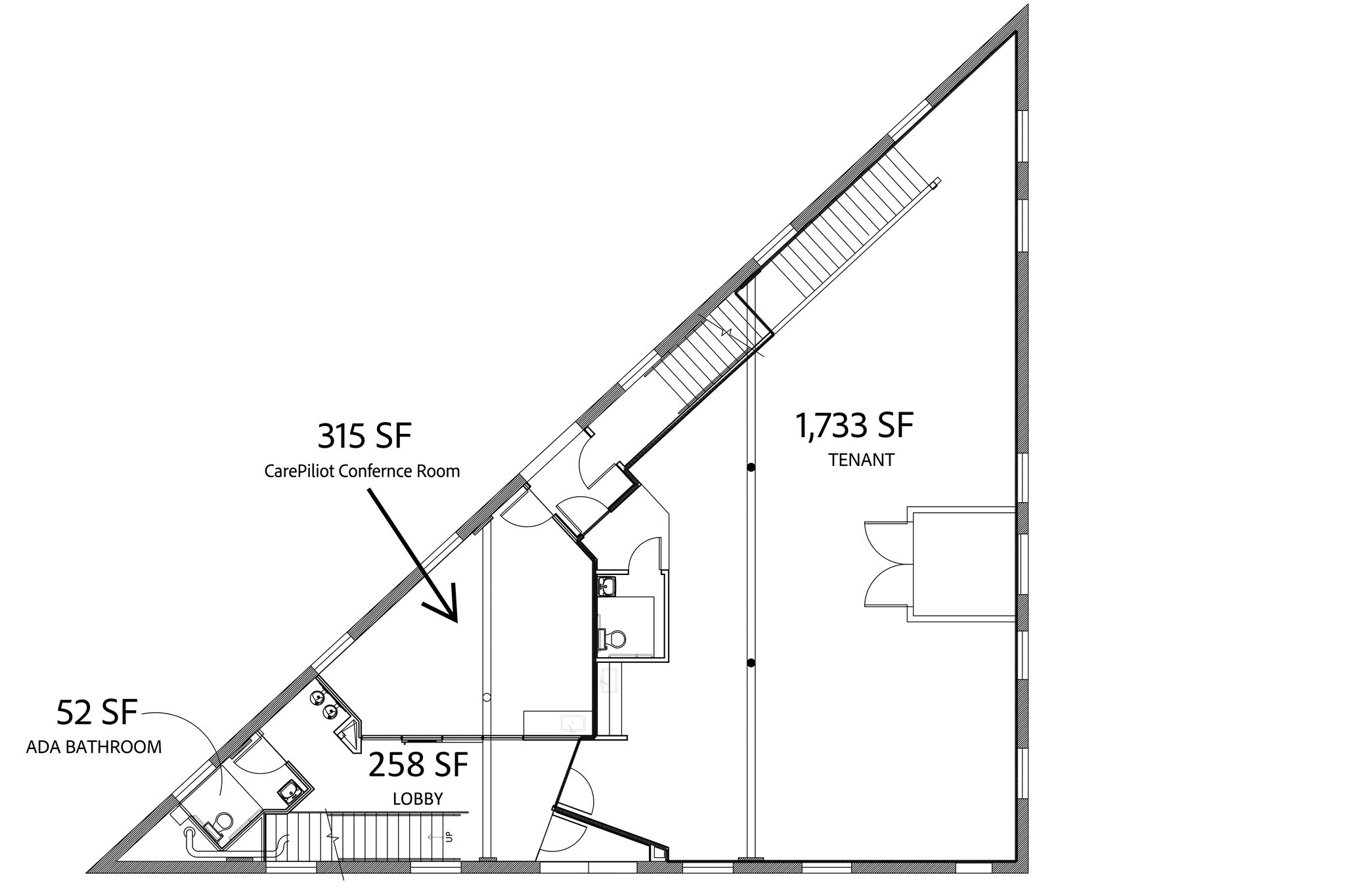
This newly renovated office space gives a nice mix of a New York loft style workplace with modern amenities. The space is a large open layout with a call room in the middle.
- Listed rate may not include certain utilities, building services and property expenses
- Mostly Open Floor Plan Layout
- Exposed Brick
- Private Restroom
- Fully Built-Out as Standard Office
- Open Layout
- Exposed ceilings
- Security System
| Space | Size | Term | Rental Rate | Space Use | Condition | Available |
| 1st Floor | 1,900 SF | Negotiable | $32.81 CAD/SF/YR $2.73 CAD/SF/MO $62,337 CAD/YR $5,195 CAD/MO | Office | Full Build-Out | 30 Days |
1st Floor
| Size |
| 1,900 SF |
| Term |
| Negotiable |
| Rental Rate |
| $32.81 CAD/SF/YR $2.73 CAD/SF/MO $62,337 CAD/YR $5,195 CAD/MO |
| Space Use |
| Office |
| Condition |
| Full Build-Out |
| Available |
| 30 Days |
1 of 1
Videos
Matterport 3D Exterior
Matterport 3D Tour
Photos
Street View
Street
Map
1st Floor
| Size | 1,900 SF |
| Term | Negotiable |
| Rental Rate | $32.81 CAD/SF/YR |
| Space Use | Office |
| Condition | Full Build-Out |
| Available | 30 Days |
This newly renovated office space gives a nice mix of a New York loft style workplace with modern amenities. The space is a large open layout with a call room in the middle.
- Listed rate may not include certain utilities, building services and property expenses
- Fully Built-Out as Standard Office
- Mostly Open Floor Plan Layout
- Open Layout
- Exposed Brick
- Exposed ceilings
- Private Restroom
- Security System
Property Facts
Building Type
Office
Year Built
2014
Building Height
2 Stories
Building Size
5,580 SF
Building Class
B
Typical Floor Size
2,790 SF
Parking
5 Surface Parking Spaces
1 1
Walk Score®
Very Walkable (86)
Bike Score®
Very Bikeable (72)
1 of 23
Videos
Matterport 3D Exterior
Matterport 3D Tour
Photos
Street View
Street
Map
1 of 1
Presented by
214 W 21st St
Already a member? Log In
Hmm, there seems to have been an error sending your message. Please try again.
Thanks! Your message was sent.





