Log In/Sign Up
Your email has been sent.
215 Mill Ln - 3.24 acres - heavy industrial zoned 3.24 Acres of Commercial Land Offered at $4,095,420 CAD in Smyrna, TN 37167



Investment Highlights
- 3.24 acres zoned heavy industrial
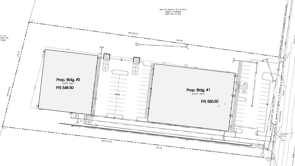
- Proposed buildings are approved for Building 1 ~ 24,420 SqFt and Building 2 ~ 16,000 SqFt with 62 parking spaces allotted
- Plans approved for two multi-tenant industrial buildings ready to begin immediate construction
- The property backs up to the railroad, is located 2 miles from the Nissan Assembly Plant, offers exceptional accessibility to both I-24 and I-840
Executive Summary
Rare opportunity to own a 3.24 acre heavy industrial zoned lot in Smyrna with plans fully approved by the city for two multi-tenant industrial buildings ready to begin immediate construction. The proposed buildings are approved for Building 1 ~ 24,420 SqFt and Building 2 ~ 16,000 SqFt with 62 parking spaces allotted. The final construction building permit set of plans contains the site plans, architectural, electrical, mechanical, landscaping, and approved sewer extension plans from Ferguson Architecture. The property backs up to the railroad, is located 2 miles from the Nissan Assembly Plant, offers exceptional accessibility to both I-24 and I-840, and is less than 30 miles to downtown Nashville.
Property Facts
1 Lot Available
Lot
| Price | $4,095,420 CAD | Lot Size | 3.24 AC |
| Price Per AC | $1,264,018.48 CAD |
| Price | $4,095,420 CAD |
| Price Per AC | $1,264,018.48 CAD |
| Lot Size | 3.24 AC |
Rare opportunity to own a 3.24 acre heavy industrial zoned lot in Smyrna with plans fully approved by the city for two multi-tenant industrial buildings ready to begin immediate construction. The proposed buildings are approved for Building 1 ~ 24,42
1 1
Property Taxes
| Parcel Number | 049-030.02-000 | Improvements Assessment | $63,063 CAD |
| Land Assessment | $34,454 CAD | Total Assessment | $97,518 CAD |
Property Taxes
Parcel Number
049-030.02-000
Land Assessment
$34,454 CAD
Improvements Assessment
$63,063 CAD
Total Assessment
$97,518 CAD
1 of 7
Videos
Matterport 3D Exterior
Matterport 3D Tour
Photos
Street View
Street
Map
1 of 1
Presented by
215 Mill Ln - 3.24 acres - heavy industrial zoned
Already a member? Log In
Hmm, there seems to have been an error sending your message. Please try again.
Thanks! Your message was sent.
Your message has been sent!
Activate your LoopNet account now to track properties, get real-time alerts, save time on future inquiries, and more.
