Your email has been sent.
Midtown Lane 215 NW A St 1,872 - 34,525 SF of 5-Star Office Space Available in Bentonville, AR 72712



Highlights
- In the Heart of Downtown Bentonville
All Available Spaces(2)
Display Rental Rate as
- Space
- Size
- Term
- Rental Rate
- Space Use
- Build-Out
- Available
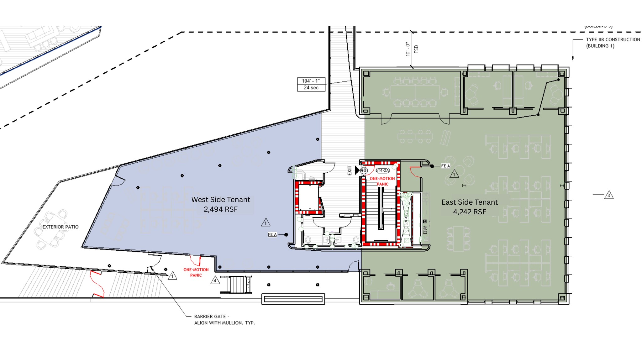
2nd floor space, ready for immediate occupancy and nicely furnished with desks and workstations. The space can be divided into two with the smaller west side containing 2,494 RSF of space and the larger east side 4,242 RSF.
- Rate includes utilities, building services and property expenses
- Conference Rooms
- Plug & Play
- Elevator Access
- Corner Space
- Open-Plan
- Open Floor Plan Layout
- High End Trophy Space
- Central Air and Heating
- Balcony
- Natural Light
4th floor space in shell condition ready for build out. Generous TI offered depending on deal terms. This space can be divided into (up to) 5 separate tenant spaces. Divisions detailed in attached floor plan. Space sizes range from 1,872 RSF to the full floor. Tenant pays internal janitorial & phone & internet.
- Rate includes utilities, building services and property expenses
- Conference Rooms
- Central Air and Heating
- Yard
- Mostly Open Floor Plan Layout
- Space is in Excellent Condition
- High Ceilings
- In the heart of Downtown Bentonville
| Space | Size | Term | Rental Rate | Space Use | Build-Out | Available |
| 2nd Floor | 2,494-7,721 SF | Negotiable | $68.75 CAD/SF/YR $5.73 CAD/SF/MO $530,803 CAD/YR $44,234 CAD/MO | Office | Spec Suite | Now |
| 4th Floor | 1,872-26,804 SF | 5 Years | $59.12 CAD/SF/YR $4.93 CAD/SF/MO $1,584,740 CAD/YR $132,062 CAD/MO | Office | Shell Space | Now |
2nd Floor
| Size |
| 2,494-7,721 SF |
| Term |
| Negotiable |
| Rental Rate |
| $68.75 CAD/SF/YR $5.73 CAD/SF/MO $530,803 CAD/YR $44,234 CAD/MO |
| Space Use |
| Office |
| Build-Out |
| Spec Suite |
| Available |
| Now |
4th Floor
| Size |
| 1,872-26,804 SF |
| Term |
| 5 Years |
| Rental Rate |
| $59.12 CAD/SF/YR $4.93 CAD/SF/MO $1,584,740 CAD/YR $132,062 CAD/MO |
| Space Use |
| Office |
| Build-Out |
| Shell Space |
| Available |
| Now |
2nd Floor
| Size | 2,494-7,721 SF |
| Term | Negotiable |
| Rental Rate | $68.75 CAD/SF/YR |
| Space Use | Office |
| Build-Out | Spec Suite |
| Available | Now |
2nd floor space, ready for immediate occupancy and nicely furnished with desks and workstations. The space can be divided into two with the smaller west side containing 2,494 RSF of space and the larger east side 4,242 RSF.
- Rate includes utilities, building services and property expenses
- Open Floor Plan Layout
- Conference Rooms
- High End Trophy Space
- Plug & Play
- Central Air and Heating
- Elevator Access
- Balcony
- Corner Space
- Natural Light
- Open-Plan
4th Floor
| Size | 1,872-26,804 SF |
| Term | 5 Years |
| Rental Rate | $59.12 CAD/SF/YR |
| Space Use | Office |
| Build-Out | Shell Space |
| Available | Now |
4th floor space in shell condition ready for build out. Generous TI offered depending on deal terms. This space can be divided into (up to) 5 separate tenant spaces. Divisions detailed in attached floor plan. Space sizes range from 1,872 RSF to the full floor. Tenant pays internal janitorial & phone & internet.
- Rate includes utilities, building services and property expenses
- Mostly Open Floor Plan Layout
- Conference Rooms
- Space is in Excellent Condition
- Central Air and Heating
- High Ceilings
- Yard
- In the heart of Downtown Bentonville
Property Overview
Welcome to Midtown Lane, Bentonville’s premier mixed-use building in the heart of downtown. This 175,000 SF property offers a true class “A” experience, evident in its bold architecture, high-end finishes, and inviting common areas. Purpose-built to complement the vibrant energy of downtown Bentonville, Midtown Lane features ground-floor retail spaces with patios and upper-floor office spaces with balconies, seamlessly blending indoor comfort with outdoor enjoyment. Surrounded by walkable restaurants, shops, and amenities, Midtown Lane is the ideal location for both retail and office use, combining world-class design with small-town charm. The property provides a professional environment where businesses can thrive, foster collaboration, and engage with the community at the highest level. Designed to support the revitalization and growth of Bentonville, Midtown Lane was purpose-built to create an elevated experience for its tenants and guests that can be felt the moment you walk on-site. This goal is achieved by offering spaces that encourage community interaction and reflect the ongoing transformation of downtown Bentonville.
- Controlled Access
- Conferencing Facility
- Restaurant
- Roof Terrace
- Central Heating
- High Ceilings
- Outdoor Seating
- Air Conditioning
- Balcony
- Smoke Detector
Property Facts
Presented by
Midtown Lane | 215 NW A St
Hmm, there seems to have been an error sending your message. Please try again.
Thanks! Your message was sent.





