Your email has been sent.
Highlights
- High Traffic Area - Positioned in a bustling hub with steady foot traffic throughout the day.
- Prominent Visibility - Large, inviting windows ensure your business is seen from afar.
- Ample Parking - Easy access for customers with (number) dedicated parking spaces.
Space Availability (2)
Display Rental Rate as
- Space
- Size
- Ceiling
- Term
- Rental Rate
- Rent Type
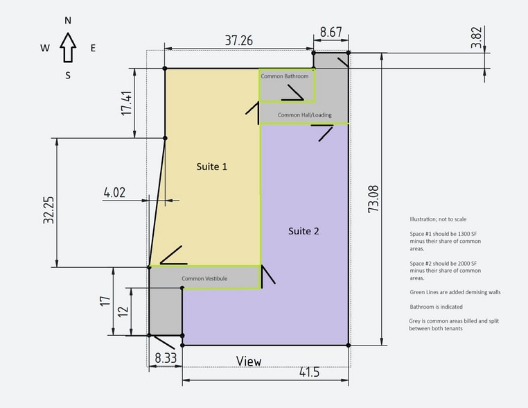
| Space | Size | Ceiling | Term | Rental Rate | Rent Type | |
| 1st Floor, Ste Suite 1 | 1,300 SF | - | Negotiable | $17.18 CAD/SF/YR $1.43 CAD/SF/MO $22,330 CAD/YR $1,861 CAD/MO | Triple Net (NNN) | |
| 1st Floor, Ste Suite 2 | 2,000 SF | 9’ | Negotiable | $17.18 CAD/SF/YR $1.43 CAD/SF/MO $34,353 CAD/YR $2,863 CAD/MO | Triple Net (NNN) |
8231 Hohman Ave - 1st Floor - Ste Suite 1
This space is currently vanilla box delivery; landlord will demise space and add common area bathroom after lease signing.
- Lease rate does not include utilities, property expenses or building services
- Fully Built-Out as Standard Retail Space
- Open Floor Plan Layout
- Open-Plan
- Accessible Entry
- Customizable Space
8231 Hohman Ave - 1st Floor - Ste Suite 2
This space is currently vanilla box delivery; landlord will demise space and add common area bathroom after lease signing.
- Lease rate does not include utilities, property expenses or building services
- Central Air and Heating
- Finished Ceilings: 9’
Rent Types
The rent amount and type that the tenant (lessee) will be responsible to pay to the landlord (lessor) throughout the lease term is negotiated prior to both parties signing a lease agreement. The rent type will vary depending upon the services provided. For example, triple net rents are typically lower than full service rents due to additional expenses the tenant is required to pay in addition to the base rent. Contact the listing broker for a full understanding of any associated costs or additional expenses for each rent type.
1. Full Service: A rental rate that includes normal building standard services as provided by the landlord within a base year rental.
2. Double Net (NN): Tenant pays for only two of the building expenses; the landlord and tenant determine the specific expenses prior to signing the lease agreement.
3. Triple Net (NNN): A lease in which the tenant is responsible for all expenses associated with their proportional share of occupancy of the building.
4. Modified Gross: Modified Gross is a general type of lease rate where typically the tenant will be responsible for their proportional share of one or more of the expenses. The landlord will pay the remaining expenses. See the below list of common Modified Gross rental rate structures: 4. Plus All Utilities: A type of Modified Gross Lease where the tenant is responsible for their proportional share of utilities in addition to the rent. 4. Plus Cleaning: A type of Modified Gross Lease where the tenant is responsible for their proportional share of cleaning in addition to the rent. 4. Plus Electric: A type of Modified Gross Lease where the tenant is responsible for their proportional share of the electrical cost in addition to the rent. 4. Plus Electric & Cleaning: A type of Modified Gross Lease where the tenant is responsible for their proportional share of the electrical and cleaning cost in addition to the rent. 4. Plus Utilities and Char: A type of Modified Gross Lease where the tenant is responsible for their proportional share of the utilities and cleaning cost in addition to the rent. 4. Industrial Gross: A type of Modified Gross lease where the tenant pays one or more of the expenses in addition to the rent. The landlord and tenant determine these prior to signing the lease agreement.
5. Tenant Electric: The landlord pays for all services and the tenant is responsible for their usage of lights and electrical outlets in the space they occupy.
6. Negotiable or Upon Request: Used when the leasing contact does not provide the rent or service type.
7. TBD: To be determined; used for buildings for which no rent or service type is known, commonly utilized when the buildings are not yet built.
Property Facts
| Total Space Available | 3,300 SF | Frontage | |
| Center Type | Strip Center | Gross Leasable Area | 14,979 SF |
| Parking | 105 Spaces | Total Land Area | 1.38 AC |
| Stores | 10 | Year Built | 1946 |
| Center Properties | 2 |
| Total Space Available | 3,300 SF |
| Center Type | Strip Center |
| Parking | 105 Spaces |
| Stores | 10 |
| Center Properties | 2 |
| Frontage | |
| Gross Leasable Area | 14,979 SF |
| Total Land Area | 1.38 AC |
| Year Built | 1946 |
About the Property
Positioned in one of Munster’s most vibrant commercial corridors, this retail space offers an exceptional opportunity for businesses seeking visibility and convenience. Located in a high-traffic area, the property benefits from steady footfall throughout the day, making it ideal for attracting walk-in customers. Large, inviting windows provide prominent street-facing visibility, ensuring your brand stands out. With multiple dedicated parking spaces and direct access from the lot into the premises, customers will enjoy seamless entry and ample parking. The landlord is committed to delivering the space in vanilla box condition, allowing tenants to customize the interior to suit their unique vision. Whether you're launching a new concept or expanding an established brand, this versatile space offers the perfect canvas to bring your retail ambitions to life.
- 24 Hour Access
- Commuter Rail
- Conferencing Facility
- Corner Lot
- Metro/Subway
- Property Manager on Site
- Pylon Sign
- Restaurant
- Signage
- Signalized Intersection
- Tenant Controlled HVAC
- Monument Signage
- Air Conditioning
Nearby Major Retailers
Presented by
Munster Plaza | 215 Ridge Rd
Hmm, there seems to have been an error sending your message. Please try again.
Thanks! Your message was sent.







