Your email has been sent.
Dominion Express Building 215 Rue Saint-Jacques 5,120 - 40,358 SF of Office Space Available in Montréal, QC H2Y 1M6



Some information has been automatically translated.
Highlights
- Convention Center, Montreal Courthouse and many restaurants and services, Generous Windows and a mix of open-concept
- Magnificently preserved and updated, located a stone's throw from Place d'Armes metro station.
- Air conditioning is provided by 3 units of 10 tons per floor. Rooftop cooler.
- Prestigious office spaces in a beautiful building.
- Baseboard heating on the exterior walls with thermostats for each tenant
- Secure Bike Room for Tenants
All Available Spaces(5)
Display Rental Rate as
- Space
- Size
- Term
- Rental Rate
- Space Use
- Build-Out
- Available
This open-plan office space of 8,034 sq. ft. (net) features a reception area, a kitchen, and 10 enclosed rooms. The rentable area is 9,378 sq. ft., which includes its proportional share of the building's common areas.
- Lease rate does not include utilities, property expenses or building services
- Mostly Open Floor Plan Layout
- 9 Private Offices
- Finished Ceilings: 8’ - 10’
- Central Air and Heating
- Corner Space
- Natural Light
- Bicycle Storage
- Common Parts WC Facilities
- Smoke Detector
- Abundant windows
- Conference room
- Fully Built-Out as Standard Office
- Fits 24 - 76 People
- 1 Conference Room
- Space In Need of Renovation
- Reception Area
- Drop Ceilings
- After Hours HVAC Available
- Basement
- Open-Plan
- Separate H/ F bathrooms upstairs
- Computer room
- Kitchen for employees
Usable area of 7,837 sq ft net Total Rental Area (BOMA measurements): rentable area 9,059 sq ft
- Lease rate does not include utilities, property expenses or building services
- Mostly Open Floor Plan Layout
- 10 Private Offices
- Finished Ceilings: 8’ - 10’
- Central Air and Heating
- Corner Space
- After Hours HVAC Available
- Open-Plan
- Abundant fenestration
- Conference room
- Fully Built-Out as Standard Office
- Fits 20 - 63 People
- 2 Conference Rooms
- Space is in Excellent Condition
- Reception Area
- Natural Light
- Bicycle Storage
- Distinct M/F bathrooms on the first floor
- Computer Room
- Kitchen for employees
- Lease rate does not include utilities, property expenses or building services
- Mostly Open Floor Plan Layout
- 4 Conference Rooms
- Space is in Excellent Condition
- Central Air and Heating
- Kitchen
- Corner Space
- Natural Light
- Bicycle Storage
- Open-Plan
- Magnificent - see photos
- Fully Built-Out as Professional Services Office
- Fits 28 - 90 People
- Finished Ceilings: 8’ - 10’
- Plug & Play
- Reception Area
- Private Restrooms
- Exposed Ceiling
- After Hours HVAC Available
- Accent Lighting
- Hardwood Floors
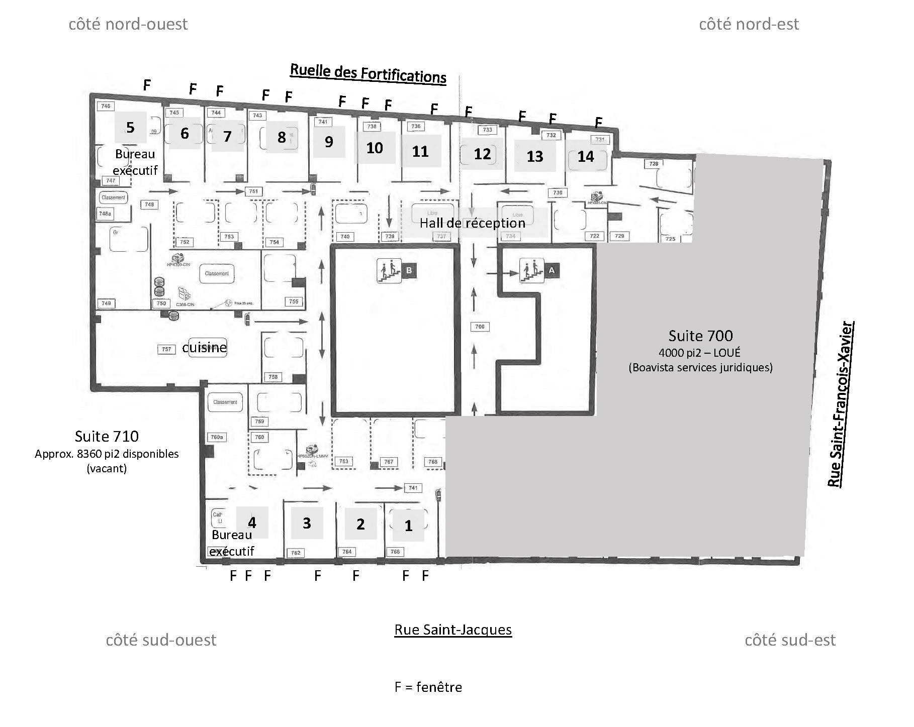
The space offers 6,869 net usable square feet, including 13 enclosed offices with windows and a conference room (#1 to 14), a cafeteria, open areas, and semi-open spaces. On the floor, there are 3 elevators, 2 stairwells, and men's/women's bathrooms. For rental and leasing purposes, the Total Rentable Area (as per BOMA standards) is 7,837 square feet.
- Lease rate does not include utilities, property expenses or building services
- Fits 21 - 67 People
- 1 Conference Room
- Space In Need of Renovation
- Reception Area
- Natural Light
- Bicycle Storage
- Large reception area with waiting room
- Other offices, meeting rooms
- 3 Elevators on the First Floor, 2 Stairwells
- Partially Built-Out as Law Office
- 14 Private Offices
- Finished Ceilings: 8’ - 10’
- Central Air and Heating
- Drop Ceilings
- After Hours HVAC Available
- Common Parts WC Facilities
- 14 closed offices with windows (#1 to 14)
- Open Areas for Workstations
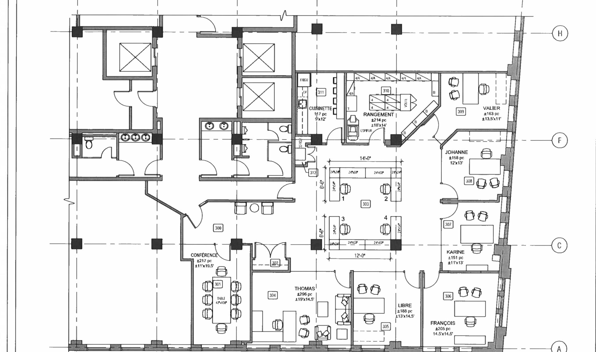
This bright office space features 12 private offices and 3 large open areas. A reception area is conveniently situated within the space to ensure guests are greeted upon arrival. Total Leasable Area (BOMA measurements): 6,000 sq. ft.
- Lease rate does not include utilities, property expenses or building services
- Finished Ceilings: 8’ - 10’
- Reception Area
- After Hours HVAC Available
- Common Parts WC Facilities
- Generous windows
- Cuisine
- Partitioned Offices
- Central Air and Heating
- Drop Ceilings
- Bicycle Storage
- Separate H/ F bathrooms upstairs
- Large conference room
| Space | Size | Term | Rental Rate | Space Use | Build-Out | Available |
| 1st Floor, Ste 100 | 9,378 SF | 5-10 Years | $18.95 CAD/SF/YR $1.58 CAD/SF/MO $177,713 CAD/YR $14,809 CAD/MO | Office | Full Build-Out | Now |
| 3rd Floor, Ste 333 | 7,837 SF | 5-10 Years | $18.95 CAD/SF/YR $1.58 CAD/SF/MO $148,511 CAD/YR $12,376 CAD/MO | Office | Full Build-Out | Now |
| 4th Floor, Ste 400 | 11,154 SF | 5-10 Years | $18.95 CAD/SF/YR $1.58 CAD/SF/MO $211,368 CAD/YR $17,614 CAD/MO | Office | Full Build-Out | Now |
| 7th Floor, Ste 710 | 6,869 SF | 5-10 Years | $18.95 CAD/SF/YR $1.58 CAD/SF/MO $130,168 CAD/YR $10,847 CAD/MO | Office | Partial Build-Out | Now |
| 11th Floor, Ste 1111 | 5,120 SF | 5-10 Years | $18.95 CAD/SF/YR $1.58 CAD/SF/MO $97,024 CAD/YR $8,085 CAD/MO | Office | Shell Space | Now |
1st Floor, Ste 100
| Size |
| 9,378 SF |
| Term |
| 5-10 Years |
| Rental Rate |
| $18.95 CAD/SF/YR $1.58 CAD/SF/MO $177,713 CAD/YR $14,809 CAD/MO |
| Space Use |
| Office |
| Build-Out |
| Full Build-Out |
| Available |
| Now |
3rd Floor, Ste 333
| Size |
| 7,837 SF |
| Term |
| 5-10 Years |
| Rental Rate |
| $18.95 CAD/SF/YR $1.58 CAD/SF/MO $148,511 CAD/YR $12,376 CAD/MO |
| Space Use |
| Office |
| Build-Out |
| Full Build-Out |
| Available |
| Now |
4th Floor, Ste 400
| Size |
| 11,154 SF |
| Term |
| 5-10 Years |
| Rental Rate |
| $18.95 CAD/SF/YR $1.58 CAD/SF/MO $211,368 CAD/YR $17,614 CAD/MO |
| Space Use |
| Office |
| Build-Out |
| Full Build-Out |
| Available |
| Now |
7th Floor, Ste 710
| Size |
| 6,869 SF |
| Term |
| 5-10 Years |
| Rental Rate |
| $18.95 CAD/SF/YR $1.58 CAD/SF/MO $130,168 CAD/YR $10,847 CAD/MO |
| Space Use |
| Office |
| Build-Out |
| Partial Build-Out |
| Available |
| Now |
11th Floor, Ste 1111
| Size |
| 5,120 SF |
| Term |
| 5-10 Years |
| Rental Rate |
| $18.95 CAD/SF/YR $1.58 CAD/SF/MO $97,024 CAD/YR $8,085 CAD/MO |
| Space Use |
| Office |
| Build-Out |
| Shell Space |
| Available |
| Now |
1st Floor, Ste 100
| Size | 9,378 SF |
| Term | 5-10 Years |
| Rental Rate | $18.95 CAD/SF/YR |
| Space Use | Office |
| Build-Out | Full Build-Out |
| Available | Now |
This open-plan office space of 8,034 sq. ft. (net) features a reception area, a kitchen, and 10 enclosed rooms. The rentable area is 9,378 sq. ft., which includes its proportional share of the building's common areas.
- Lease rate does not include utilities, property expenses or building services
- Fully Built-Out as Standard Office
- Mostly Open Floor Plan Layout
- Fits 24 - 76 People
- 9 Private Offices
- 1 Conference Room
- Finished Ceilings: 8’ - 10’
- Space In Need of Renovation
- Central Air and Heating
- Reception Area
- Corner Space
- Drop Ceilings
- Natural Light
- After Hours HVAC Available
- Bicycle Storage
- Basement
- Common Parts WC Facilities
- Open-Plan
- Smoke Detector
- Separate H/ F bathrooms upstairs
- Abundant windows
- Computer room
- Conference room
- Kitchen for employees
3rd Floor, Ste 333
| Size | 7,837 SF |
| Term | 5-10 Years |
| Rental Rate | $18.95 CAD/SF/YR |
| Space Use | Office |
| Build-Out | Full Build-Out |
| Available | Now |
Usable area of 7,837 sq ft net Total Rental Area (BOMA measurements): rentable area 9,059 sq ft
- Lease rate does not include utilities, property expenses or building services
- Fully Built-Out as Standard Office
- Mostly Open Floor Plan Layout
- Fits 20 - 63 People
- 10 Private Offices
- 2 Conference Rooms
- Finished Ceilings: 8’ - 10’
- Space is in Excellent Condition
- Central Air and Heating
- Reception Area
- Corner Space
- Natural Light
- After Hours HVAC Available
- Bicycle Storage
- Open-Plan
- Distinct M/F bathrooms on the first floor
- Abundant fenestration
- Computer Room
- Conference room
- Kitchen for employees
4th Floor, Ste 400
| Size | 11,154 SF |
| Term | 5-10 Years |
| Rental Rate | $18.95 CAD/SF/YR |
| Space Use | Office |
| Build-Out | Full Build-Out |
| Available | Now |
- Lease rate does not include utilities, property expenses or building services
- Fully Built-Out as Professional Services Office
- Mostly Open Floor Plan Layout
- Fits 28 - 90 People
- 4 Conference Rooms
- Finished Ceilings: 8’ - 10’
- Space is in Excellent Condition
- Plug & Play
- Central Air and Heating
- Reception Area
- Kitchen
- Private Restrooms
- Corner Space
- Exposed Ceiling
- Natural Light
- After Hours HVAC Available
- Bicycle Storage
- Accent Lighting
- Open-Plan
- Hardwood Floors
- Magnificent - see photos
7th Floor, Ste 710
| Size | 6,869 SF |
| Term | 5-10 Years |
| Rental Rate | $18.95 CAD/SF/YR |
| Space Use | Office |
| Build-Out | Partial Build-Out |
| Available | Now |
The space offers 6,869 net usable square feet, including 13 enclosed offices with windows and a conference room (#1 to 14), a cafeteria, open areas, and semi-open spaces. On the floor, there are 3 elevators, 2 stairwells, and men's/women's bathrooms. For rental and leasing purposes, the Total Rentable Area (as per BOMA standards) is 7,837 square feet.
- Lease rate does not include utilities, property expenses or building services
- Partially Built-Out as Law Office
- Fits 21 - 67 People
- 14 Private Offices
- 1 Conference Room
- Finished Ceilings: 8’ - 10’
- Space In Need of Renovation
- Central Air and Heating
- Reception Area
- Drop Ceilings
- Natural Light
- After Hours HVAC Available
- Bicycle Storage
- Common Parts WC Facilities
- Large reception area with waiting room
- 14 closed offices with windows (#1 to 14)
- Other offices, meeting rooms
- Open Areas for Workstations
- 3 Elevators on the First Floor, 2 Stairwells
11th Floor, Ste 1111
| Size | 5,120 SF |
| Term | 5-10 Years |
| Rental Rate | $18.95 CAD/SF/YR |
| Space Use | Office |
| Build-Out | Shell Space |
| Available | Now |
This bright office space features 12 private offices and 3 large open areas. A reception area is conveniently situated within the space to ensure guests are greeted upon arrival. Total Leasable Area (BOMA measurements): 6,000 sq. ft.
- Lease rate does not include utilities, property expenses or building services
- Partitioned Offices
- Finished Ceilings: 8’ - 10’
- Central Air and Heating
- Reception Area
- Drop Ceilings
- After Hours HVAC Available
- Bicycle Storage
- Common Parts WC Facilities
- Separate H/ F bathrooms upstairs
- Generous windows
- Large conference room
- Cuisine
Property Overview
The Dominion Express Building at 215 rue Saint-Jacques enjoys an exceptional location in Old Montreal and the Cité Internationale, a stone's throw from the metro network (Place d'Armes, Square Victoria), Palais des Congrès, World Trade Center, ICAO, Montreal Courthouse, many restaurants and the Old Port. Beautiful facades with breathtaking architectural details, impeccably preserved. Functional office layouts. Allowance for tenant improvements for any lease of at least 5 years. Indoor parking available opposite, in a building also owned by the lessor (no ratio to respect). Best deal in Old Montreal; prestige and professional address!
- Bus Line
- Metro/Subway
- Property Manager on Site
- Restaurant
- Kitchen
- Central Heating
- Common Parts WC Facilities
- Natural Light
- Open-Plan
- Partitioned Offices
- Air Conditioning
Property Facts
Presented by
Company Not Provided
Dominion Express Building | 215 Rue Saint-Jacques
Hmm, there seems to have been an error sending your message. Please try again.
Thanks! Your message was sent.











